Winchester Road, Upham, SO32

Offers in excess of
£375,000

3 Bedroom Semi-Detached House for sale in Southampton

3 2
  • MODERN FAMILY SEMI-DETACHED HOME
  • THREE BEDROOMS WITH ENSUITE TO MASTER
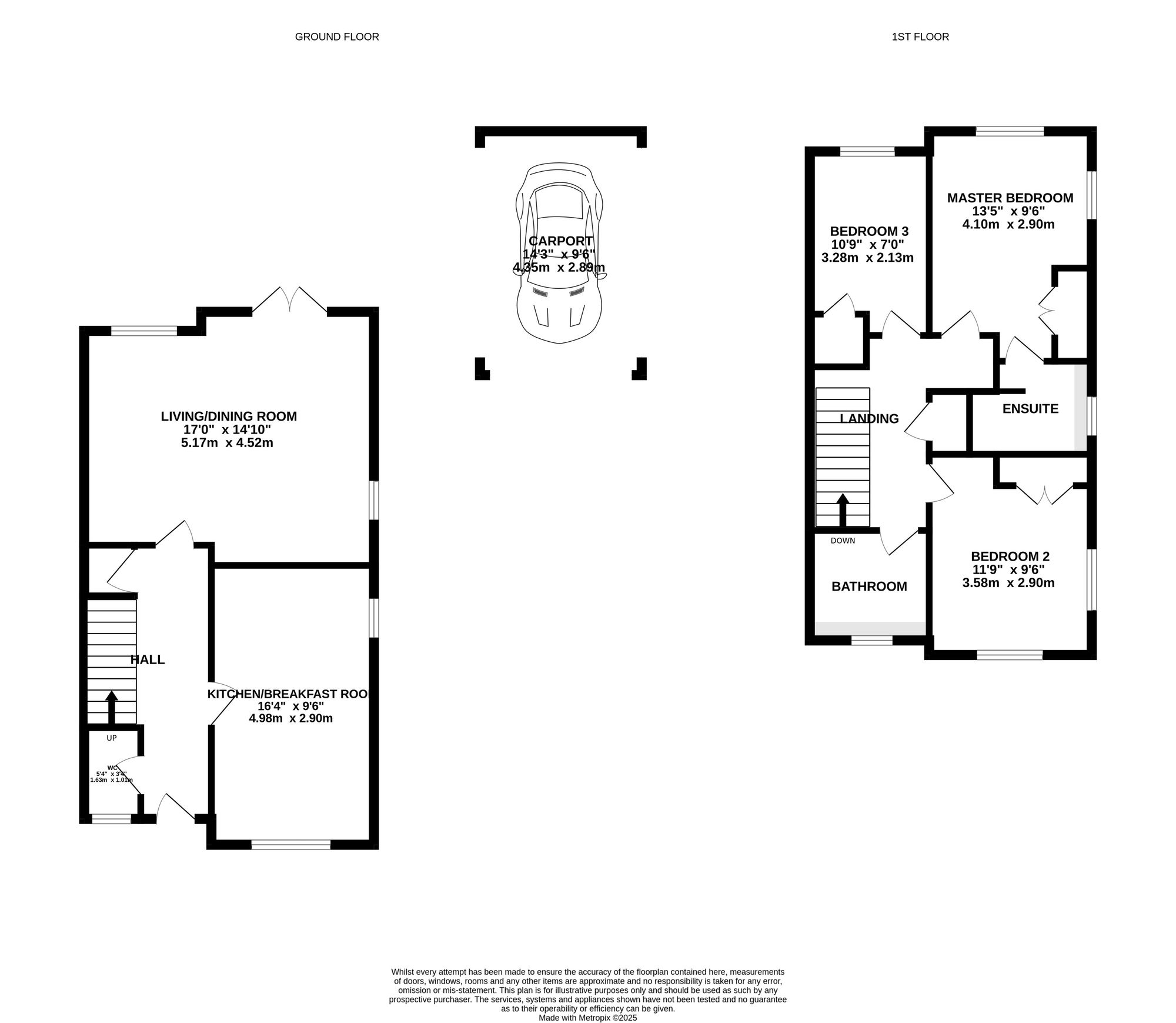
  • 17FT LIVING/DINING ROOM
  • 16FT KITCHEN/BREAKFAST ROOM
  • FAMILY BATHROOM
  • ATTRACTIVE REAR GARDEN
  • PARKING TO THE REAR
  • FREEHOLD
  • WINCHESTER COUNCIL BAND D
  • EPC RATING B

INTRODUCTION

Set on the edge of this pretty village and surrounded by lovely walks this traditionally designed modern family home comes with three well proportioned bedrooms with ensuite to the master, a spacious sitting room and beautiful kitchen/dining room. Additional benefits include an attractive, maintenance free rear garden and a carport with further parking to the side. To fully appreciate everything this lovely family home has to offer as well as its great location, an early viewing is certainly a must.

LOCATION

Steeped in history the village of Upham has a thriving community and also has a popular C of E Primary School, recreation ground, church, village hall, two pubs, a village pond and even its own football club. The village is also a favourite starting point for country walks due to it being surrounded by beautiful countryside within the South Downs National Park. Southampton Airport is only 30 minutes away with Eastleigh and Parkway main line railway stations also being with easy reach. The pretty market towns of both Bishops Waltham and Wickham are also close-by, as are all main motorway access routes, enabling direct access to the Cathedral City of Winchester, Portsmouth, Southampton, Chichester, Guildford and London.

INSIDE

The house is approached via a pathway that leads up to a covered entrance porch with double glazed front door that then takes you immediately through to the inviting entrance hall. From the hall stairs lead to the first floor, there is an understairs cupboard and door leading through to a modern cloakroom. 

The sitting room, which is a good size, bright room has double glazed windows to both the side and rear as well as French doors that lead out onto the patio. 

The heart of the house then has to be the kitchen/dining room that has window to both the front and side with the kitchen having been fitted with a modern range of wall and base units. There is also then a range of built in appliances including a NEFF electric oven with separate grill oven above, Blanco induction hob with extractor over, fridge, freezer, dishwasher and washing machine with the room also benefitting from complimentary tiling ad spotlights.

On the first floor landing there is a cupboard housing the water cylinder and access to the loft.

The master bedroom overlooks the rear garden, has fitted wardrobes and a door at one end then leads through into a modern ensuite with fitted shower, wash hand basin and low level WC, the room also has a heated towel rail, is fully tiled and has spotlights.

Bedroom two, also a double room has fitted wardrobes and overlooks the front of the property.

Bedroom three overlooks the rear of the property and also has a fitted wardrobe.

The family bathroom has a modern suite with panelled bath with shower over, wash hand basin and low level WC, heated towel rail, complimentary tiling and spotlights.

Outside, to the front of the property the garden is lawned with both hedging and attractively planted borders

OUTSIDE

Outside, to the front of the property the garden is lawned with both hedging and attractively planted borders. To the rear the garden has a sizable patio area with the rest having been shingled, making it low maintenance. A pathway then leads to a a rear gate that leads directly out into a parking area, where there is a carport with additional parking to the side.

SERVICES

Electricity, water and private drainage are connected. Please note that none of the services or appliances have been tested by White & Guard.

Fibre Broadband is available with download speeds of up to 76 Mbps and upload speeds of up to 15 Mbps. Information has been provided by the Openreach website.

Energy Efficiency Current: 83.0
Energy Efficiency Potential: 96.0

Important Information

  • This is a Freehold property.
  • This Council Tax band for this property is: D

Property Ref: a06071b6-956f-4c13-951b-7bd865c21464

Share:

Similar Properties

The Old Granary, Bank Street, SO32

2 Bedroom Apartment | Offers in excess of £375,000

A spacious and newly created two bedroom ground floor apartment occupying a prime Bishops Waltham location. Set within a...

Pine Lea, Bishops Waltham, SO32

3 Bedroom House | £375,000

Set within a select development that was originally built by local builders Mapledean. This attractive family home has b...

New Road, Bishops Waltham, SO32

3 Bedroom Semi-Detached House | Offers in excess of £375,000

Dating back to 1901 this deceptively spacious, yet beautifully presented family home has a wonderful feel throughout. On...

Beverley Gardens, Swanmore, SO32

3 Bedroom Semi-Detached House | Offers in excess of £380,000

Set in a quiet cul-de-sac in Swanmore and within easy walking distance of Swanmore Primary School this this very well pr...

High Street, Droxford, SO32

2 Bedroom End of Terrace House | Offers in excess of £380,000

A beautifully appointed two bedroom character cottage positioned in a wonderful village location within the Meon Valley....

Beaucroft Road, Waltham Chase, SO32

3 Bedroom Semi-Detached House | £390,000

Welcome to 6 Beaucroft Road, a charming and beautifully presented three-bedroom semi-detached home that perfectly blends...

White & Guard (Bishops Waltham)

Brook Street, Bishops Waltham, Hampshire, SO32 1GQ

01489 893946

How much is your home worth?

Use our short form to request a valuation of your property.

Request a Valuation

Mortgage Calculator

Amount Borrowed: £
Total Amount Repayable: £
Total Monthly Payment: £
©2025 The Guild of Property Professionals. All rights reserved. Terms and Conditions | Privacy Policy | Cookie Policy | Complaints Policy | Members Login
The Guild of Property Professionals Trading Address: 121 Park Lane, London W1K 7AG. GPEA Limited. Registered in England & Wales.  Company No: 02819824.  Registered Office Address: 2 St. Stephen's Court, St. Stephen's Road, Bournemouth, Dorset, England, BH2 6LA.  VAT Registration No: 576 8795 61
Book a Property Valuation Update Cookies Preferences