- WELL ESTABLISHED CHINESE RESTAURANT & PREMISES FOR SALE
- PROMINENT POSITION
- FIXTURES AND FITTINGS INCLUDED IN THE SALE
- Approx. 34 YEARS REMAINING ON THE LEASE
- PARKING
BUSINESS AND PREMISES FOR SALE.
Well established business currently trading as a Peking & Cantonese Restaurant, located at the end of Lord Street.
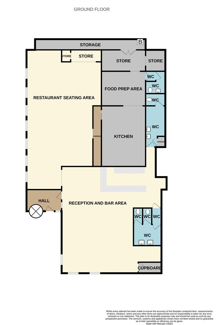
The leasehold premises comprise a ground floor bar/restaurant with various internal seating, tables and chairs, with kitchen preparation area to the rear with staff/storage rooms and WC facilities. All fixtures and fittings are included in the sale and the remaining stock will be negotiable. Net internal floor area is approximately 270 square metres (2,908 sqft).
The Lease dated 25th December 1965 currently has less than 34 years remaining.
Entrance Porch Leading To - With revolving doors
Restaurant Seating Area -
Ladies Wc -
Bar Area -
Exit To Sandown Court Flats -
Rear Restaurant Seating Area -
Kitchen -
Gents Wc -
Kitchen Storage -
Staff Wc -
Central Heating Boiler -
Property Ref: 7776452_34343658
2 Bedroom Flat | Offers Over £155,000
If you are looking for a two-bedroom apartment just a short walk away from Crosby Village, Avon Court could be the perfe...
2 Bedroom Apartment | £155,000
Welcome to this spacious sixth-floor duplex apartment set within the highly sought-after Focus Building in the heart of...
4 Bedroom End of Terrace House | £150,000
Welcome to Glenalmond Road, Wallasey - a popular location for this spacious 4-bedroom end terrace house. This property b...
3 Bedroom Terraced House | £160,000
Extended Three-Bedroom Mid-Terrace | Penrhyn Avenue, Litherland | Excellent Transport Links & Local AmenitiesBerkeley Sh...
3 Bedroom Semi-Detached House | Offers Over £160,000
Turnkey Three-Bedroom Semi-Detached Home - St Oswalds Lane, NethertonIdeal for First-Time Buyers & Young Families | Styl...
2 Bedroom Semi-Detached House | Offers Over £160,000
This IMMACULATE semi-detached house presents an excellent opportunity for both first-time buyers and those looking to do...
Berkeley Shaw Real Estate (Liverpool)
Old Haymarket, Liverpool, Merseyside, L1 6ER
Use our short form to request a valuation of your property.
Request a Valuation