Empshott Road, Southsea

£325,000
SSTC
This property listing is now SSTC

3 Bedroom Terraced House for sale in Southsea

2 3 1
  • THREE BEDROOM
  • TERRACED HOME
  • LOFT ROOM
  • SOUTH FACING GARDEN
  • PLENTY OF STORAGE
  • GREAT FIRST TIME BUY
  • LOCAL AMENITIES
  • SHORT WALK TO PARKS
  • CLOSE TO SCHOOLS
  • CALL TO VIEW

**LOVELY THREE BEDROOM FAMILY HOME WITH LOFT ROOM**

We are delighted to offer for sale this lovely terraced home in a requested part of Southsea. This family home has an abundance of space with a lovely blend of original features and modern decor that will appeal to many.

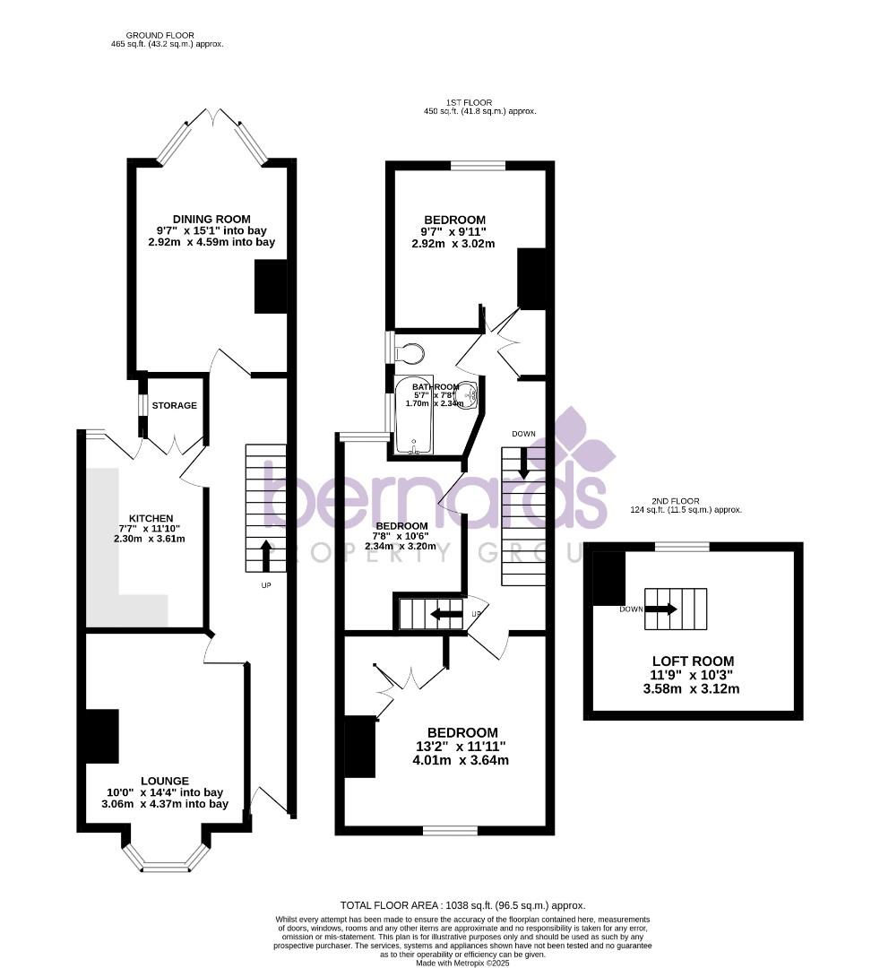
As you walk through the door you'll find a formal lounge at the front and a good size dining room to the rear with access into the south facing garden via french doors. The fitted kitchen splits the two rooms boasting a storage/ pantry cupboard.

As you make your way upstairs you'll find 3 good size bedrooms and a family bathroom. A cleverly converted loft space gives you even further space to use as you see fit.

The location is hugely popular with a small parade of shops close by coupled with Milton Park a short distance away to enjoy a dog walk or family time. The seafront is not too far away whilst there are some great schools in the vicinity as well. A great opportunity that is sure to attract many.

Anti-Money Laundering (Aml) - Bernards Estate agents have a legal obligation to complete anti-money laundering checks. The AML check should be completed in branch. Please call the office to book an AML check if you would like to make an offer on this property. Please note the AML check includes taking a copy of the two forms of identification for each purchaser. A proof of address and proof of name document is required. Please note we cannot put forward an offer without the AML check being completed

Bernards Mortgage & Protection - We have a team of advisors covering all our offices, offering a comprehensive range of mortgages from across the market and various protection products from a panel of lending insurers. Our fee is competitively priced, and we can help advise and arrange mortgages and protection for anyone, regardless of who they are buying and selling through.

If you're looking for advice on borrowing power, what interest rates you are eligible for, submitting an agreement in principle, placing the full mortgage application, and ways to protect your health, home, and income, look no further!

Council Tax Band B -

Offer Check Procedure - - If you are considering making an offer for this or any other property we are marketing, please make early contact with your local office to enable us to verify your buying position. Our Sellers expect us to report on a Buyer's proceedability whenever we submit an offer. Thank you.

Property Tenure - Freehold / Leasehold - delete as applicable

Removal Quotes - As part of our drive to assist clients with all aspects of the moving process, we have sourced a reputable removal company. Please ask a member of our sales team for further details and a quotation.

Solicitor - Choosing the right conveyancing solicitor is extremely important to ensure that you obtain an effective yet cost-efficient solution. The lure of supposedly cheaper on-line "conveyancing warehouse" style services can be very difficult to ignore but this is a route fraught with problems that we strongly urge you to avoid. A local, established and experienced conveyancer will safeguard your interests and get the job done in a timely manner. Bernards can recommend several local firms of solicitors who have the necessary local knowledge and will provide a personable service. Please ask a member of our sales team for further details.

Lounge - 3.06 x 4.37 (10'0" x 14'4") -

Kitchen - 2.30 x 3.61 (7'6" x 11'10") -

Dining Room - 2.92 x 4.59 (9'6" x 15'0") -

Bedroom One - 4.01 x 3.64 (13'1" x 11'11") -

Bedroom Two - 2.92 x 3.02 (9'6" x 9'10") -

Bedroom Three - 2.34 x 3.20 (7'8" x 10'5") -

Bathroom - 1.70 x 2.34 (5'6" x 7'8") -

Loft Room - 3.58 x 3.12 (11'8" x 10'2") -

Property Ref: 901248_34245080

Share:

Similar Properties

Grove Road South, Southsea

2 Bedroom Flat | £325,000

Phase 1 Now Fully Released and Ready for Occupation at St John's Square, Southsea. Discover beautifully designed homes i...

Grove Road South, Southsea

2 Bedroom Flat | £325,000

Phase 1 Now Fully Released and Ready for Occupation at St John's Square, Southsea. Discover beautifully designed homes i...

Kings Terrace, Southsea

2 Bedroom Penthouse | Offers in excess of £325,000

** CENTRAL SOUTHSEA APARTMENT ** LARGE ROOF TERRACE WITH PANORAMIC VIEWS **Come and view this beautifully positioned two...

Edgeware Road, Southsea

3 Bedroom Terraced House | £332,500

** FABULOUS FAMILY HOME IN REQUESTED MILTON LOCATION **We are delighted to offer for sale this wonderful home in Edgewar...

Gunwharf Quays, Portsmouth

2 Bedroom Flat | Offers in excess of £340,000

** WONDERFUL APARTMENT IN GUNWHARF QUAYS WITH FANTASTIC VIEWS **We are delighted to bring to market this fantastic apart...

Grove Road South, Southsea

2 Bedroom Flat | £350,000

Phase 1 Now Fully Released and Ready for Occupation at St John's Square, Southsea. Discover beautifully designed homes i...

Bernards Estate and Lettings Agents (Southsea)

8 Clarendon Road, Southsea, Portsmouth, PO5 2EE

02392 864974

How much is your home worth?

Use our short form to request a valuation of your property.

Request a Valuation

Mortgage Calculator

Amount Borrowed: £
Total Amount Repayable: £
Total Monthly Payment: £
©2025 The Guild of Property Professionals. All rights reserved. Terms and Conditions | Privacy Policy | Cookie Policy | Complaints Policy | Members Login
The Guild of Property Professionals Trading Address: 121 Park Lane, London W1K 7AG. GPEA Limited. Registered in England & Wales.  Company No: 02819824.  Registered Office Address: 2 St. Stephen's Court, St. Stephen's Road, Bournemouth, Dorset, England, BH2 6LA.  VAT Registration No: 576 8795 61
Book a Property Valuation Update Cookies Preferences