Barn With Planning Permission For Conversion, Holbeach Road, Spalding

£130,000
SSTC
This property listing is now SSTC

Commercial Property for sale in Spalding

LOCATION
DESCRIPTION AND LOCATION
Planning Permission has been granted on the former agricultural storage buildings off Holbeach Road, Spalding for a detached dwelling with garage with details of the Approved Planning Application is available from South Holland District Council Planning website under Reference No. H16-0465-22. The site extends to approximately 0.78 acres (0.31 hectares) as shown shaded red on the plan within these particulars.

The former agricultural storage buildings are located off Holbeach Road with the market town of Spalding being approximately 1.9 miles from the property. The Cathedral city of Peterborough is approximately 19 miles to the south with a fast train link to London Kings Cross (minimum journey time 50 minutes). Spalding also has rail connections.
What 3 Words Reference:- piper.horses.unsigned

DESCRIPTION
DETAILS OF THE PROPERTY
(All measurements taken are gross internal)
A plan showing the ‘Part of Barn’ referenced in the schedules below can be obtained via the Seller’s Agent upon request.

TENURE & POSSESSION
The property is offered freehold and with vacant possession upon completion.

NORTHERN BARNS
(including Store Rooms): Approximately 307.66 sq.m., the barns have varying structural elements and is constructed of; part steel portal frame, part brick, part asbestos and part corrugated asbestos roofing.

There is a roller shutter door located to the west end of the northern elevation.

FANHOUSE/LEAN-TO: Approximately 10.35 sq.m.

SOUTHERN WAREHOUSE: Approximately 436.37 sq.m. The Warehouse is constructed of; a steel portal frame, asbestos, grain walling and roller shutter doors to the north and south.

The Gross Internal Floor area of the Northern Barns (including Store Rooms), the Fanhouse/Lean-To and the Southern Warehouse is a combined total of approximately 754.38 sq.m.

FENCING AND HEDGES
The purchaser is required to fence the northern, eastern and part of the western boundaries with a post and three rail timber fence within three months of completion of the sale. The exact lines of the boundaries will be agreed on site with the Vendor’s Agent prior to fencing.

ACCESS AND RIGHT OF WAY
The purchaser will have a Right of Way over the driveway (within the blue shaded area) to access the extent of the property shown shaded red on the plan included in these Particulars. The Purchaser will contribute towards the maintenance of the driveway and bridge according to their share of the usage/type of vehicles accessing.

LOCAL AUTHORITIES
South Holland District Council, Priory Road, Spalding, Lincolnshire PE11 2XE CALL: 01775 761161
South Holland Internal Drainage Board, Marsh Reeves, Foxes Low Road, Holbeach,
Spalding, Lincolnshire PE12 7PA CALL: 01553 819600
Anglian Water Customer Services, PO Box 10642, Harlow, Essex, CM20 9HA CALL: 08457 919155
Lincolnshire County Council, County Offices, Newland, Lincoln LN1 1YL CALL: 01522 552222
National Grid, Vicarage Farm Road, Peterborough PE1 5TP CALL: 0800 096 3080

APPARATUS AND SERVICES
The apparatus and services in this property have not been tested by the Agents and who cannot guarantee they are in working order. Buyers should check the availability of these prior to any commitment to purchase.

ACCOMMODATION
ACCOMMODATION
The Barn comprises of adjoining elements with the northern elevation being built of varying levels of brick, corrugated cement roof sheeting and metal profile sheeting. An electric, metal roller shutter door is also located on the north side of the property. There is a concrete apron to the south and west and partially, to the north.

The southern building is of steel portal frame and corrugated asbestos construction with concrete flooring, corrugated asbestos roofing and asbestos rainwater goods. There is a concrete apron frontage to this building.

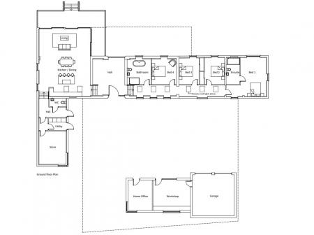
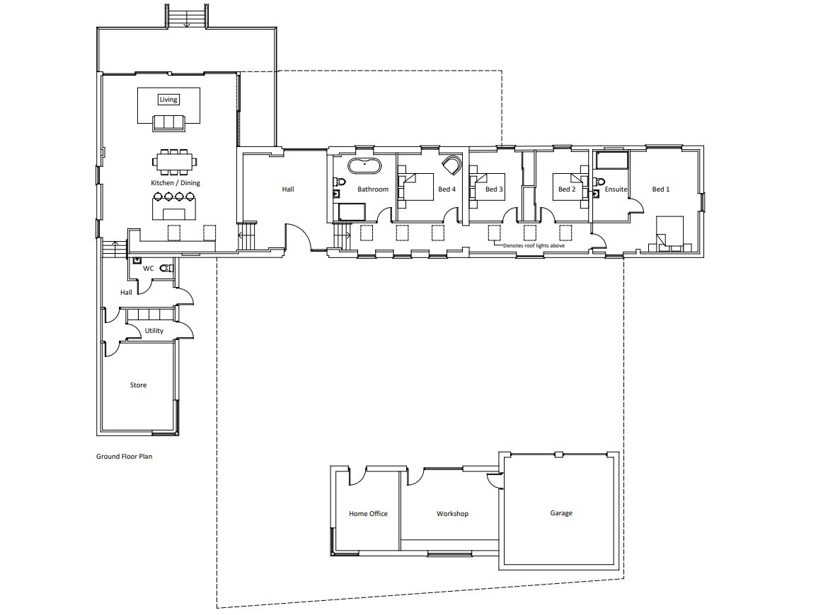
The site extends to approximately 0.78 acres (0.31 hectares), including an area of grass extending to 0.07 acres immediately off Holbeach Road. The plans of the proposed development are available from South Holland District Council’s website. These display a 4-bedroom property incorporating open plan living. This includes a kitchen diner which leads off to separate w/c, utility room and storeroom to the west wing. To the east wing of the property, there is a bathroom and four bedrooms with Bedroom No. 1 having an en-suite bathroom.

The South Holland Internal Drainage Board have a 9-metre Byelaw restriction adjacent to their drain which runs parallel with the road along Holbeach Road. The Board have the right to access the frontage of the property when required.

SERVICES
SERVICES
We have been informed by the Vendor that a three-phase electricity supply is connected to the Barns. The Purchaser(s) will need to pay for their own water supply to be installed. We believe mains water is available within or adjacent to the road but interested parties must make their own enquiries and satisfy themselves as to the availability and cost. Interested parties must make their own enquires as to the availability of all services, the practicality and cost of connection and any other matters relating to these.
We believe there is a mains gas supply in the locality however, interested parties must make their own enquires as to the availability of all services, the practicality and cost of connection and any other matters relating to these.
Arrangements for foul drainage and an installation for the new development will be the responsibility of the proposed purchaser.

PLANNING
PLANNING
The application information is available and can be downloaded from the Council’s website –
https://www.sholland.gov.uk/article/5293/Search-planning-applications

This information provides details on:
• Planning Consent
• Site Plan
• Floor Plans – Existing and Proposed
• Plan showing Elevations

Interested parties should make their own enquiries with the local Planning Authority as to whether any change of use planning consent is required for their particular use/layout.

ADDITIONAL INFORMATION REGARDING PLANNING
The plans for conversion were prepared by Robert Doughty Consultancy Ltd of 32 High Street, Helpringham,
Sleaford, Lincolnshire NG34 0RA.
Tel: 01529 421 646
Email: admin@rdc-landplan.co.uk
If you require assistance regarding any planning aspects, you are invited to contact Lewis Smith who may be able to assist you further.

VIEWING
VIEWINGS
Viewings are to be arranged by prior appointment. We make every effort to produce accurate and reliable details but if there are any particular points you would like to discuss prior to making your inspection, please contact our office. We suggest you contact us to check the availability of this property prior to travelling to the area in any case.

HEALTH & SAFETY:
All those entering on to the site should take great care both for themselves, their property and any part of the farm. Neither the Vendor nor the Agents are responsible for any injury or accident that occurs at the property

Property Ref: 101505015638

Share:

Similar Properties

Queen Street, Sutton Bridge

2 Bedroom Terraced House | £130,000

Terraced house in a side street location close to nearby amenities & bus stops offering 2 double bedrooms, 2 reception r...

Seagate Terrace, Sutton Bridge

2 Bedroom Terraced House | £130,000

2 Bedroom terraced house in a side street location close to local amenities & bus stops, lounge, open plan modern kitche...

Wargate Way, Spalding

2 Bedroom Semi-Detached House | Guide Price £130,000

Edwardian semi-detached house in pleasant non-estate village location with 2 bedrooms and 2 reception rooms. Garden and...

Bicker Road, Donington

3 Bedroom Semi-Detached House | £132,000

3 bedrooms semi-detached property situated on the edge of the village of Donington. Accommodation comprising entrance lo...

London Road, Spalding

3 Bedroom End of Terrace House | £135,000

Opportunity to buy an end terraced property in need of renovation and modernisation with the benefit of gas central heat...

Commercial Road, Spalding

2 Bedroom Semi-Detached House | £138,500

Semi-detached property situated a short walk from the town centre. Accommodation comprising lounge, kitchen, 2 double be...

Longstaff (Spalding)

5 New Road, Spalding, Lincolnshire, PE11 1BS

01775 766766

How much is your home worth?

Use our short form to request a valuation of your property.

Request a Valuation

Mortgage Calculator

Amount Borrowed: £
Total Amount Repayable: £
Total Monthly Payment: £
©2026 The Guild of Property Professionals. All rights reserved. Terms and Conditions | Privacy Policy | Cookie Policy | Complaints Policy | Members Login
The Guild of Property Professionals Trading Address: 121 Park Lane, London W1K 7AG. GPEA Limited. Registered in England & Wales.  Company No: 02819824.  Registered Office Address: 2 St. Stephen's Court, St. Stephen's Road, Bournemouth, Dorset, England, BH2 6LA.  VAT Registration No: 576 8795 61
Book a Property Valuation Update Cookies Preferences