Littlewood Mill Lane, St Mabyn, PL30

Guide Price
£515,000

3 Bedroom Bungalow for sale in St Mabyn

2 3 1
  • Detached Bungalow
  • Peaceful Rural Location
  • Remarkable Countryside Views
  • Generous Off Road Parking
  • Detached Garage
  • Self Cleaning Front Windows

A well presented 3 bedroom detached bungalow located in the peaceful North Cornwall countryside enjoying some incredible countryside views set within the desirable hamlet of Trevisquite.  Freehold.  Council Tax Band D.  EPC rating D.


 


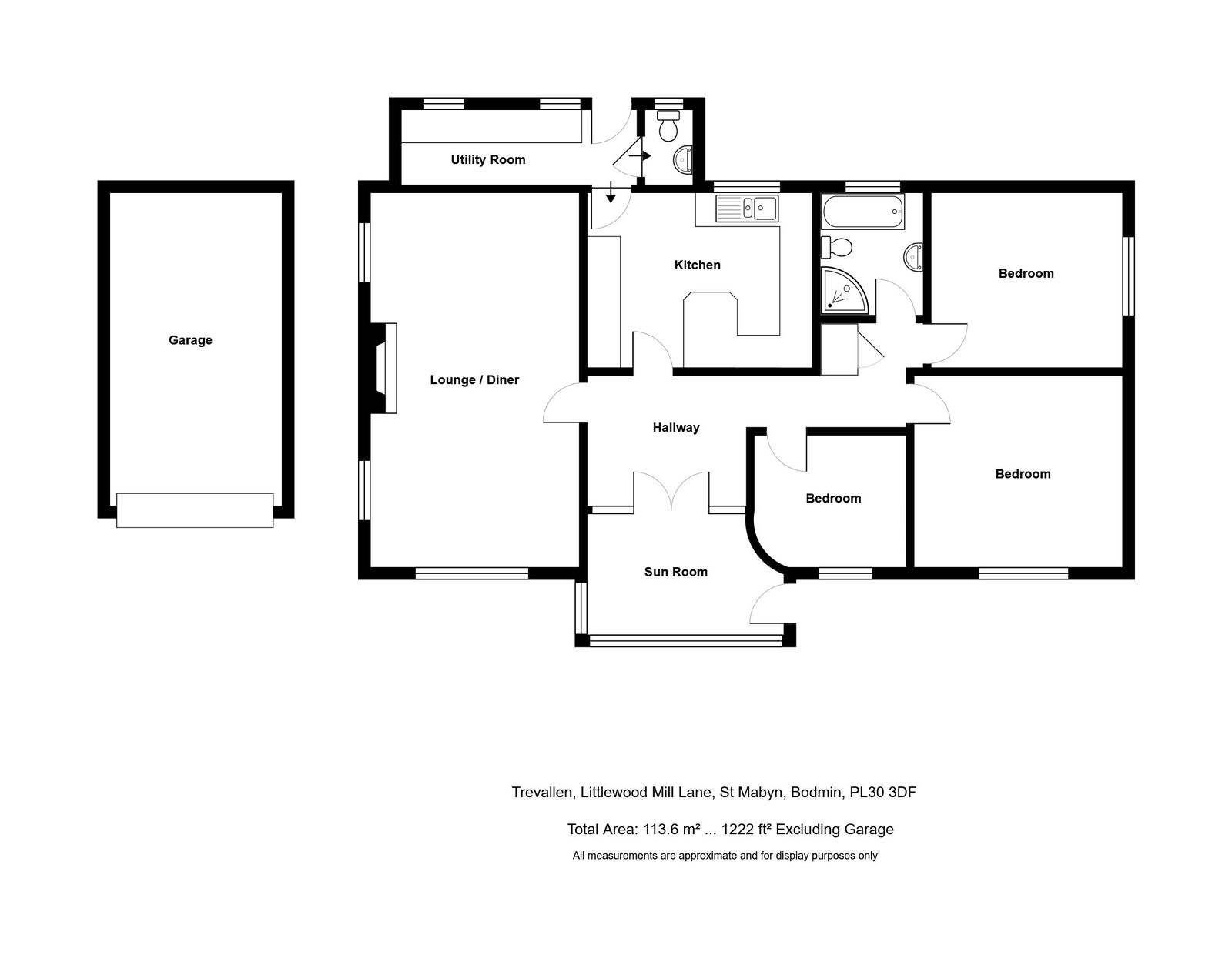
Trevallan offers an exciting opportunity to purchase this spacious 3 bedroom detached well presented bungalow located within a generous plot with detached garage and remarkable countryside views.  The property itself offers 2 reception rooms, large kitchen, utility room, 2 double bedrooms, 1 single bedroom and family bathroom with large storage options throughout.  Outside the property also benefits from a detached garage as well as plenty of off road parking and lots of lawned areas with every aspect benefitting from lovely countryside views.  


 


The accommodation comprises with all measurements being approximate:-


 


UPCV Double Glazed Front Door


Into


 


Front Porch/Reception Room 2


Benefitting from UPVC double glazed windows to front framing lovely countryside views.  Radiator.  


 


Entrance Hall


Radiator.  2 x storage cupboards.  


 


Open Plan Living Room/Dining Room - 4.1 m x 7.2 m


Generous open plan living room/dining room with 3 x UPVC double glazed windows to front and side.  2 x radiators.  Calor gas 7w fireplace with traditional surround.  Remarkable countryside views.  T.V. point.


 


Kitchen - 3.3 m x 4.4 m


Generous fully equipped kitchen with UVPC double glazed window to rear.  Sink with stainless steel tap over.  Integrated dishwasher.  Integrated Diplomat oven and grill with gas hob.  Extractor.  Integrated fridge.  Plenty of storage. Breakfast Bar.


 


Utility Room 


This room benefits from a UPVC double glazed rear door leading out to the rear garden.  2 x UPVC double glazed windows.  Worcester boiler (serviced annually).  Space and plumbing for washing machine.  Radiator.  


 


W.C.


UPVC double glazed window.  Wash hand basin.  Low level w.c.  Radiator.  


 


Bedroom 3 - 2.6 m x 3.1 m


Large single bedroom with UPVC double glazed window to front framing lovely countryside views.  Radiator.  


 


Bedroom 1 - 4.1 m x 3.7 m


A generous master bedroom with UPVC double glazed window to front framing lovely countryside views.  Radiator.  Large amount of built in storage.  T.V. point. 


 


Bedroom 2 - 3.9 m x 3.4 m 


Double bedroom with UPVC double glazed window to side.  Radiator.  Ample space for wardrobes.


 


Bathroom - 2.5 m x 2.0 m


Well presented bathroom suite comprising wash hand basin, bath, low flush w.c. and corner shower cubicle.  UPVC double glazed window and radiator.


 


Garage - 4.2 m x 6.7 m


A generous garage with electric which leads through to an additional store room to the rear. 


 


Please note that the septic tank is located within the farmers field with access permitted for servicing/emptying if applicable.  We have also been informed by the vendor that there is a path width around the side and rear of the garage for access should any maintenance be needed on the detached garage which partly runs into the farmers land behind.


 


Garden


Trevallen benefits from generous garden areas around the whole of the property with multiple potting/shrubbery areas and plenty of lawned area to the side and front.


 


Services


Oil fired central heating, mains water,  electricity, private drainage, Calor gas connected for hob and fireplace.


 


What3Words:    ///bank.galloping.seashell


 


For further information please contact our Wadebridge office.


 


 


 


 

Important Information

  • This is a Freehold property.
  • This Council Tax band for this property is: D

Property Ref: 193_1171618

Share:

Similar Properties

Inns Park, Camelford, PL32 9RX

4 Bedroom Detached House | £499,950

A stunning 4/5 bedroom detached contemporary modern home forming part of an exclusive development of only 3 other simila...

West Down Road, Delabole, PL33

5 Bedroom Detached House | £499,950

A large individual detached 4 bedroom home plus annexe which features a generous garden and enjoys glorious almost 180 d...

Westerlands Road, Wadebridge, PL27 7EU

4 Bedroom Detached House | £495,000

A rare opportunity to purchase this extremely spacious 4 bedroom split level property with flexible and adaptable living...

Middlewell Parc, Wadebridge, PL27

4 Bedroom Detached House | Guide Price £525,000

Situated in this extremely popular and private cul-de-sac location is this superb 3/4 bedroom detached split level moder...

St Cleer Drive, Wadebridge PL27

4 Bedroom Bungalow | Guide Price £525,000

A spacious gas centrally heated detached 4 bedroom, 2 en suite bungalow situated in a great corner plot location with ex...

Fore Street, Boscastle PL35

6 Bedroom Cottage | £550,000

A picturesque 6 bedroom, 4 bathroom Grade II Listed cottage enjoying a lovely sunny aspect within Boscastle village.  Fr...

Cole Rayment & White (Wadebridge)

Wadebridge, Cornwall, PL27 7DG

01208 813595

How much is your home worth?

Use our short form to request a valuation of your property.

Request a Valuation

Mortgage Calculator

Amount Borrowed: £
Total Amount Repayable: £
Total Monthly Payment: £
©2025 The Guild of Property Professionals. All rights reserved. Terms and Conditions | Privacy Policy | Cookie Policy | Complaints Policy | Members Login
The Guild of Property Professionals Trading Address: 121 Park Lane, London W1K 7AG. GPEA Limited. Registered in England & Wales.  Company No: 02819824.  Registered Office Address: 2 St. Stephen's Court, St. Stephen's Road, Bournemouth, Dorset, England, BH2 6LA.  VAT Registration No: 576 8795 61
Book a Property Valuation Update Cookies Preferences