The Square, St Teath, PL30

£300,000

3 Bedroom End of Terrace House for sale in St Teath

1 3 1
  • 3 Good Size Bedrooms
  • Kitchen/Dining Room
  • Separate Living Room
  • Large Workshop/Garage
  • Sunny Rear Garden
  • No Onward Chain
  • Spacious Bathroom
  • Oil Fired Central Heating
  • Character Cottage

A 3 bedroom character cottage located in the heart of St Teath village with pleasant and sunny rear garden.  Freehold.  Council Tax Band B.  EPC rating F.


 


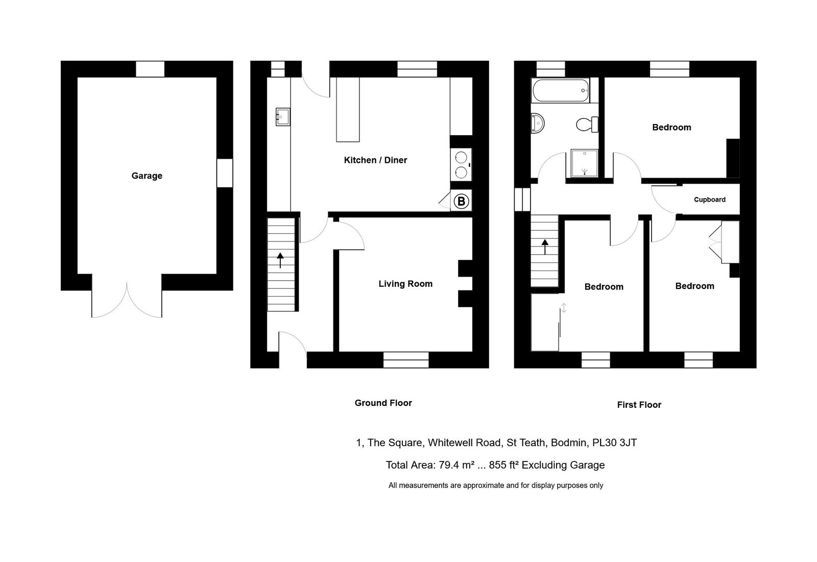
Cole Rayment & White are delighted to present 1 The Square to the open market which is a 3 good size bedroom end terrace character cottage in the heart of St Teath village within close proximity to the Post Office, local cafe, The White Heart pub and the church.  The property offers spacious living accommodation with separate living room, kitchen/dining room leading on to the sunny rear garden with large detached workshop/garage.  There is also a small area of garden to the front.  Upstairs there are 3 good size bedrooms and family bathroom with separate bath and shower and this property is available for sale with no onward chain and immediate vacant possession.


 


The accommodation comprises with all measurements being approximate:-


 


Double Glazed Entrance Door


To


 


Entrance Hall


Radiator.  Stairs to first floor.  Understairs storage cupboard.  Door to


 


Living Room - 3.6 m x 3.5 m


UPVC double glazed window to front.  Open fireplace (not in use) with surround and mantel over.  


 


Kitchen/Dining Room - 5.5 m x 3.6 m


Fitted kitchen with a good range of wall and base cupboards with draws and worktops over.  Eye level double AEG oven with AEG hob and extractor fan over.  2 double glazed UPVC double glazed windows to side.  UPVC double glazed door to rear garden.  Rayburn. 


 


Landing


UPVC double glazed window to side.  Loft hatch.  Spacious airing cupboard with built in shelving.


 


Bathroom


White suite comprising panelled bath, low level w.c. and wash hand basin.  Opaque UPVC double glazed window to rear.  Radiator.  Shower cubicle.


 


Bedroom - 3.6 m x 2.7 m


UPVC double glazed window overlooking the rear garden. 


 


Bedroom - 3.6 m x 2.1 m


UPVC double glazed window overlooking the front garden.  Built in wardrobe.


 


Bedroom - 3.69 m x 2.5 m


UPVC double glazed window overlooking the front garden and village square.  Built in wardrobe.


 


Outside


 


Garage/Workshop - 5.4 m x 3.7 m


Electricity connected.  Solid floor.  2 x windows, one to rear and one to side.  Large double doors.


 


Rear Garden


There is a lovely sunny rear garden with a seating area laid to chippings with timber fencing to 2 sides and wall to other.  Pergola patio area.  Oil tank.  Patio area immediately from kitchen/dining room.  Outside tap.


 


Front Garden


A beautiful walled garden with an area laid to lawn with nice trees, shrubs and bushes.  Gate leading to front door.  


 


Agents Note


There is a right of way across from the neighbouring cottage out to the village green.  The parking area to the left of the cottage is believed to be owned by the church.  The previous vendors had an arrangement with the church.  


 


Services


Mains water, drainage and electricity are connected to the property.


 


What3Words:  ///evening.salaried.gamer


 


For further information please contact our Wadebridge office.

Important Information

  • This is a Freehold property.
  • This Council Tax band for this property is: B

Property Ref: 193_1112946

Share:

Similar Properties

The Sidings, Pengelly, Delabole, PL33 9AX

4 Bedroom Detached House | Offers Over £300,000

A very pleasant 4 good size bedroom detached house with large garage and low maintenance rear garden.  Freehold.  Counci...

Summer Field Walk, Wadebridge PL27

3 Bedroom End of Terrace House | Guide Price £300,000

A modern 3 bedroom, one en suite end terraced house with very pleasant enclosed rear garden and parking within a short s...

Higher Whiterock, Wadebridge, PL27

2 Bedroom Terraced Bungalow | £300,000

A well presented 2 bedroom bungalow with garage and low maintenance gardens with some lovely views over the town.  Freeh...

Eddystone Court, Wadebridge, PL27

2 Bedroom Apartment | £315,000

A light and spacious 2 bedroom contemporary apartment with balconies located in the centre of town.  Leasehold.  Council...

Beechwood Drive, Camelford PL32

3 Bedroom Semi-Detached House | £315,000

A 3 bedroom semi-detached modern home with garage and generous garden in this popular modern development in Camelford. ...

Trevarner Meadow, Wadebridge, PL27

2 Bedroom Detached House | £315,000

A fantastic very spacious detached house currently arranged as a 2 bedroom but a one of a kind house on this popular dev...

Cole Rayment & White (Wadebridge)

Wadebridge, Cornwall, PL27 7DG

01208 813595

How much is your home worth?

Use our short form to request a valuation of your property.

Request a Valuation

Mortgage Calculator

Amount Borrowed: £
Total Amount Repayable: £
Total Monthly Payment: £
©2025 The Guild of Property Professionals. All rights reserved. Terms and Conditions | Privacy Policy | Cookie Policy | Complaints Policy | Members Login
The Guild of Property Professionals Trading Address: 121 Park Lane, London W1K 7AG. GPEA Limited. Registered in England & Wales.  Company No: 02819824.  Registered Office Address: 2 St. Stephen's Court, St. Stephen's Road, Bournemouth, Dorset, England, BH2 6LA.  VAT Registration No: 576 8795 61
Book a Property Valuation Update Cookies Preferences