Enson, Stafford, ST18

£980,000
SSTC
This property listing is now SSTC

5 Bedroom Detached House for sale in Stafford

5 5 4
  • Stunning open plan living kitchen with French doors making the most of the countryside views
  • Versatile space with reception rooms which can be used as sitting/dining/study/play rooms to suit your needs
  • High specification Grade ll listed property with original features complimented with contemporary features
  • Set in stunning wraparound gardens, courtyard entertaining, formal gardens, and orchard.
  • Rural location of Enson, easy access to the neighbouring village of Sandon and excellent commuter links.

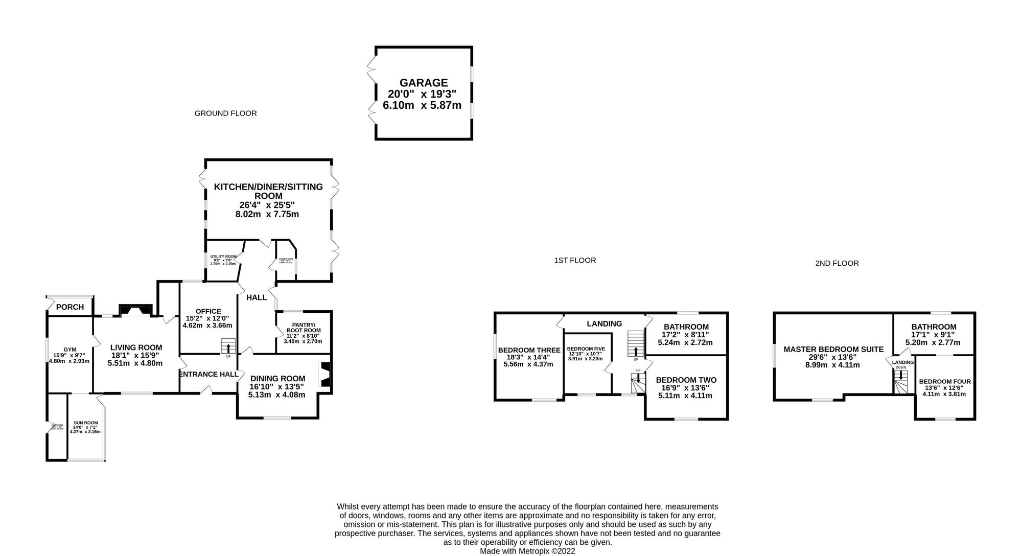
This beautiful quintessentially English Grade II listed property is available for sale after many years in the currently family ownership. Just brimming with character and having an abundance of original features! If country living is what you desire then we have the perfect property tailored just for you. As you step inside this remarkable home you are greeted by an entrance hallway with Minton tiled flooring a generous formal dining room with feature Inglenook fireplace and a living room also with feature fireplace. There are two further versatile reception rooms currently being used as a study perfect for those who work from home and the other being used a a gym and a sun room enjoy the views. The stunning extended open plan kitchen/dining/living room will surely be the hub of the home. The kitchen/dining area has a vaulted ceiling with exposed wooden beams and a feature exposed brick wall, with the re-fitted kitchen being modern but in keeping with the property with a large island unit with breakfast bar, a Belfast sink, space for a range cooker and plenty of space for a dining table and the living area has two sets of French doors making the most of the views. Add to this a useful pantry/boot room, a utility room perfect for for hiding away all the laundry and a downstairs shower room. Up the stairs you will find three bedrooms all of which are of a great size, with feature exposed ceiling beams and benefit greatly from countryside and garden views. The bathroom boasts both a freestanding double ended bath to soak away the stresses of the day as well as a separate shower for when you need to dash. Up a further set of stairs the accommodation continues, prepare to be amazed! There's a huge master bedroom suite with vaulted ceiling with exposed wooden beams with the bedroom area opening out to a luxury bathroom with freestanding roll top bath. Off the landing is the bonus of a further separate bathroom also with a freestanding bath and a twin bedroom. The grounds of the property are accessed via electric gates and a sweeping drive way takes you up to the property and to a further block paved parking area leading to the detached garage which provides plenty of storage or great for those who run a business from home. To the rear of the property is a sunny low maintenance courtyard style garden with central water feature reminiscent of sunnier climes, ideal for soaking up the sun throughout the day, just put your feet up and relax! Further generous lawns and pretty orchard wrap around the property. Situated in sleepy Enson, rural living with gorgeous countryside views yet easy access to the neighbouring village of Sandon and excellent travel links to nearby towns and cities. This five bedroom detached really does deserve to be your new home!

Energy Efficiency Current: 31.0
Energy Efficiency Potential: 65.0

Important Information

  • This is a Freehold property.
  • This Council Tax band for this property is: G

Property Ref: 9b6ddf6b-5a67-4f60-936c-1c7c57f12d54

Share:

Similar Properties

Stone Road, Tittensor, ST12

5 Bedroom Detached House | Offers Over £950,000

Generous plot, historical caves, expansive living space, purpose-built annex, double garage and playground!!! I mean, wh...

Airdale Road, Stone, ST15

4 Bedroom Detached House | £895,000

Architect design unique detached home in prime location in Stone. 4 beds, 3 baths, spacious open plan living. Beautiful...

Barlaston Old Road, Trentham, Stoke on Trent, ST4 8HJ

4 Bedroom Detached House | Offers in region of £850,000

Immaculate detached Gentleman's residence on a 0.36-acre plot in a prime location near Trentham Golf Club. Sympathetical...

Gayton, Stafford, ST18

4 Bedroom Detached House | Offers in region of £999,950

Coppice Farm: 8 acres of land, barns, 4-bed family home. Ideal for farming or country living. Good schools, accessible t...

The Blythe, Stafford, ST18

7 Bedroom Detached House | Offers in region of £1,000,000

Wow is the only word for this property! Grade II listed, converted corn mill within 11.27 acres! Character features, out...

James Du Pavey Estate Agents (Stone)

Christchurch Way, Stone, Staffordshire, ST15 8BZ

01785 814917

How much is your home worth?

Use our short form to request a valuation of your property.

Request a Valuation

Mortgage Calculator

Amount Borrowed: £
Total Amount Repayable: £
Total Monthly Payment: £
©2026 The Guild of Property Professionals. All rights reserved. Terms and Conditions | Privacy Policy | Cookie Policy | Complaints Policy | Members Login
The Guild of Property Professionals Trading Address: 121 Park Lane, London W1K 7AG. GPEA Limited. Registered in England & Wales.  Company No: 02819824.  Registered Office Address: 2 St. Stephen's Court, St. Stephen's Road, Bournemouth, Dorset, England, BH2 6LA.  VAT Registration No: 576 8795 61
Book a Property Valuation Update Cookies Preferences