Walton Bank, Eccleshall, ST21

£795,000

5 Bedroom Semi-Detached House for sale in Stafford

3 5 3
  • Charming 18th Century farmhouse, thoughtfully extended and enhanced over time, blending original period features with generous, flexible living spaces ideal for modern family life.
  • Impressive kitchen breakfast room featuring a Range Master cooker, integrated appliances, skylights, and ample dining space, perfectly complemented by a practical adjoining utility room.
  • Highly versatile layout offering multiple reception rooms, a dedicated home office, boot room, and excellent potential for annex-style living across the upper floors if required.
  • Exceptional principal bedroom suite with exposed beams, multiple skylights showcasing stunning countryside views, and a well-appointed ensuite creating a luxurious private retreat.
  • Extensive outdoor space including ample parking, mature gardens, two paddocks spanning approx 5 acres, and stabling, ideal for equestrian enthusiasts or buyers seeking a true countryside lifestyle...

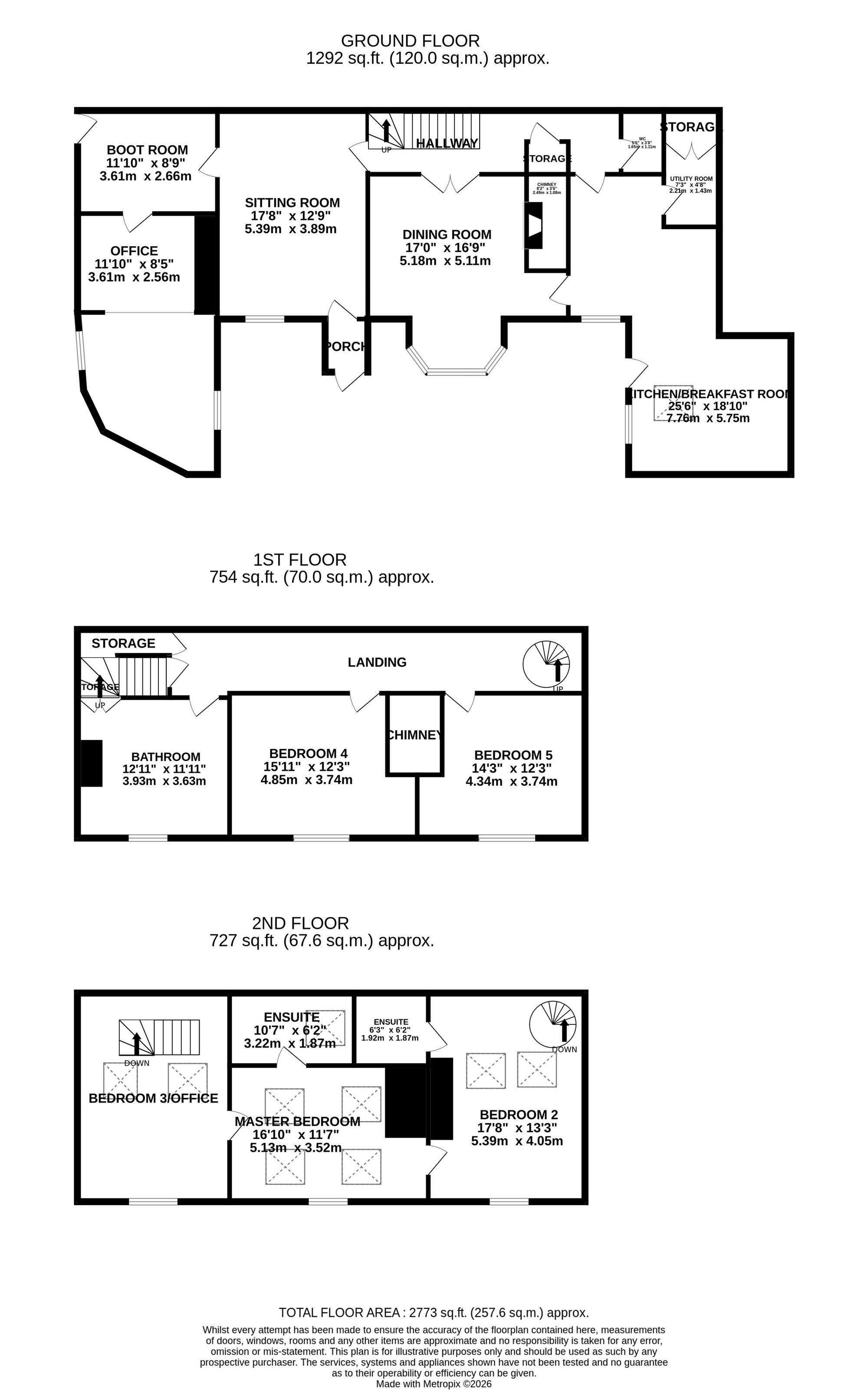
Nestled within a peaceful rural setting, yet conveniently positioned close to both Eccleshall and Stafford, this exceptional former farmhouse dating back to the mid-1700s offers a rare blend of heritage, space, and lifestyle. Once a traditional working farmhouse, the property has been lovingly and thoughtfully evolved over the years into a substantial and versatile family home, all while retaining its original charm and character. From exposed beams and inviting fireplaces to bright, flexible living spaces, every corner of this home tells a story, perfectly suited for modern family life, multi-generational living, or those simply seeking a slice of countryside tranquillity without sacrificing convenience.

At the heart of the home lies a generous kitchen breakfast room, beautifully appointed with a comprehensive range of wall, drawer, and base units complemented by ample work surfaces. A Range Master cooker takes centre stage, alongside integrated appliances including a fridge, freezer, and dishwasher. Natural light pours in through skylights and front-facing windows, while a door provides direct access outside. The breakfast area offers plenty of space for informal dining, with additional room for further refrigeration or storage if desired. A connecting utility room provides practical space for laundry appliances, further cabinetry, and a stainless steel sink.

The dining room is a truly stunning space. A beautiful bay window with built-in seating and storage enhances the room’s charm, creating a perfect setting for family meals and entertaining alike.

The sitting room exudes warmth and character, featuring exposed beams and an open fireplace ideal for cosy evenings. A front-facing window and access to the entrance porch add to its welcoming feel. From here, a door leads into a highly versatile boot room, currently used as a practical transition space but equally suited as a home office, hobby room, or additional utility area. This space connects through to a generously sized office with dual-aspect windows, offering an ideal environment for home working or creative pursuits.

The first floor landing spans the full width of the property, creating an impressive sense of space. With two staircases rising to the top floor, one at each end, the layout offers both character and flexibility. This level hosts well-proportioned bedrooms, both enjoying front-facing windows and ample space for storage. The family bathroom is particularly spacious, fitted with a four-piece suite including a bath, separate shower, WC, and vanity basin with storage.

The top floor continues to impress, offering a range of adaptable living spaces. A superb additional room, ideal as a bedroom, office, or recreation space, features skylights, exposed oak beams, and charming architectural detail, lending itself perfectly to annex-style living if required.

The principal bedroom is a standout feature, boasting multiple skylights that frame breathtaking views across rolling countryside. Exposed beams enhance the character, while a well-appointed ensuite provides a luxurious retreat with bath, separate shower, WC, and basin.

Bedroom two is equally impressive, offering its own ensuite shower room with modern fittings, rainfall shower, and skylight above. A spiral staircase provides a unique connection back to the first floor, adding further charm and individuality.

Externally, the property is set within generous grounds, offering ample parking and a well maintained rear garden, predominantly laid to lawn and enclosed by mature hedgerows and timber fencing. Two useful garden sheds add practicality, while a gated access leads to a separate paddock, ideal for those seeking outdoor space or smallholding potential.

To the front, an additional paddock includes existing stabling, making this an ideal home for equestrian enthusiasts or those wishing to keep animals. Combining countryside living with excellent access to nearby amenities, this is a rare opportunity to acquire a characterful and versatile home in an enviable location.

And finally… whether it’s morning coffee with uninterrupted countryside views, children exploring the gardens, or horses grazing peacefully in your own paddocks, this is more than just a home, it’s a lifestyle. A place where muddy boots are welcome, sunsets are savoured, and every day feels just that little bit more special.

Important Information

  • This is a Freehold property.
  • This Council Tax band for this property is: F
  • EPC Rating is F

Property Ref: 44007341-2c0b-4b03-a65d-087b907e51b2

Share:

Similar Properties

Copmere End, Stafford, ST21

4 Bedroom Detached House | Offers in excess of £790,000

This exceptional barn conversion is best enjoyed like a fine single malt, rich in character, beautifully matured and ful...

Charnes Road, Ashley, TF9

4 Bedroom Detached House | Offers in excess of £750,000

Captivating four bed detached house in picturesque Ashley village. Luxury galore with landscaped gardens, grand entrance...

Richmond Close, Weston, CW2

6 Bedroom Detached House | Offers in region of £750,000

Gated 6-bed home in Wychwood Park. Elegant & contemporary. Expansive kitchen, open plan living, 5 bedrooms on 1st floor,...

Frogmore Road, Market Drayton, TF9

6 Bedroom Detached House | Offers in excess of £799,000

Hop along to Frogmore Road and discover a beautifully presented detached home that perfectly blends elegance, comfort an...

Walls Wood, Baldwins Gate, ST5

5 Bedroom Detached House | £800,000

Birch House offers five double bedrooms, three bathrooms, versatile living spaces, stunning views, modern outdoor entert...

Sandy Lane, Baldwins Gate, ST5

4 Bedroom Detached House | £825,000

This stunning detached home radiates warmth, space and style, offering four double bedrooms, two bathrooms and glowing r...

James Du Pavey Estate Agents (Eccleshall)

Eccleshall, Staffordshire, ST21 6BH

01785 851886

How much is your home worth?

Use our short form to request a valuation of your property.

Request a Valuation

Mortgage Calculator

Amount Borrowed: £
Total Amount Repayable: £
Total Monthly Payment: £
©2026 The Guild of Property Professionals. All rights reserved. Terms and Conditions | Privacy Policy | Cookie Policy | Complaints Policy | Members Login
The Guild of Property Professionals Trading Address: 121 Park Lane, London W1K 7AG. GPEA Limited. Registered in England & Wales.  Company No: 02819824.  Registered Office Address: 2 St. Stephen's Court, St. Stephen's Road, Bournemouth, Dorset, England, BH2 6LA.  VAT Registration No: 576 8795 61
Book a Property Valuation Update Cookies Preferences