Pulteney Drive, Stafford, ST16

£185,000

Not Specified for sale in Stafford

  • Plot For Development
  • Extremely Popular Location
  • Planning Permission For A Self Build Two-Storey Five Bedroom Detached Dwelling
  • Contact Our Office For More Information
  • Owner Estimated End Value: £650,000 (dependent on internal finish & market conditions) Buyers are also advised to conduct there own research into this

Call us 9AM - 9PM -7 days a week, 365 days a year!

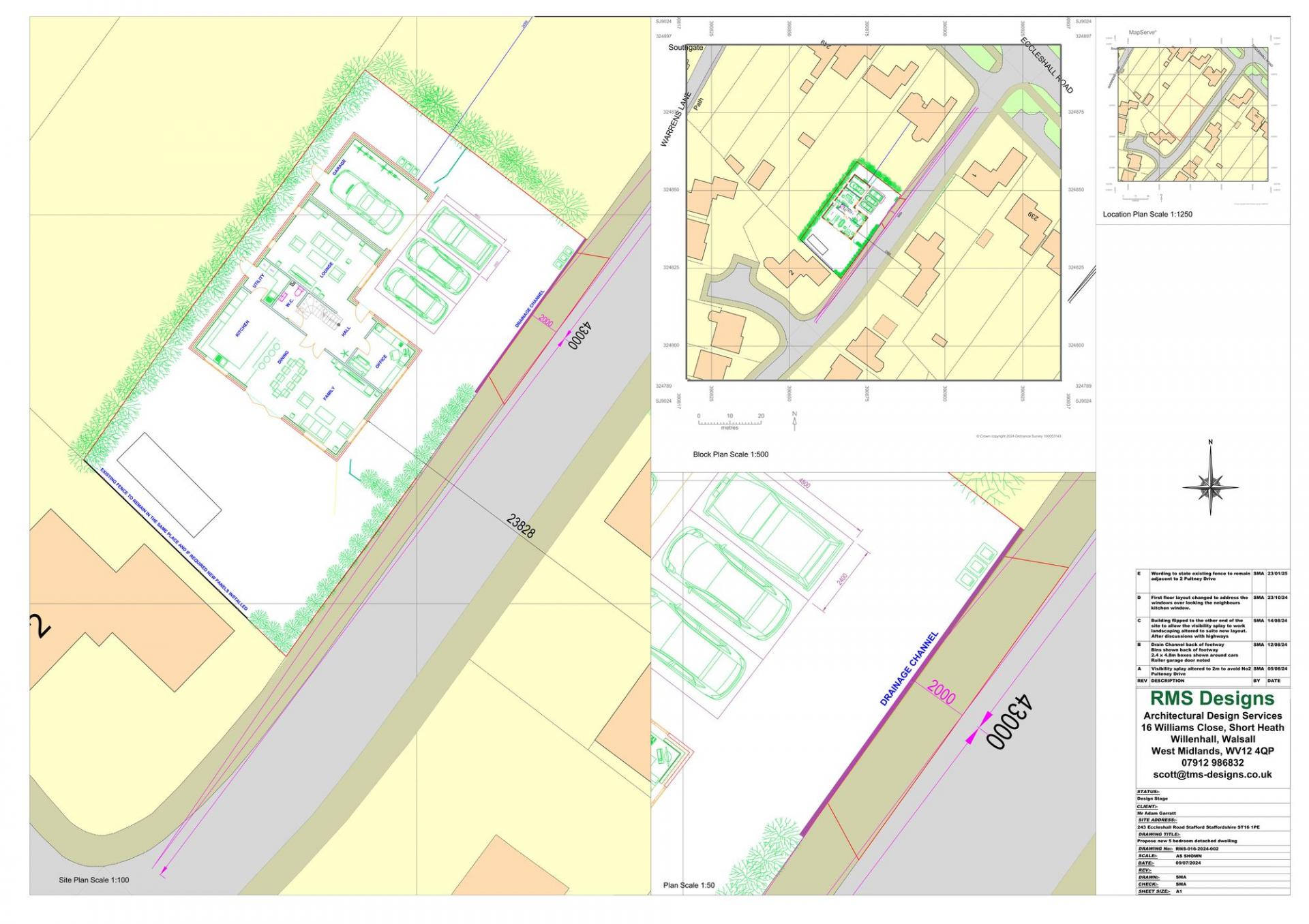
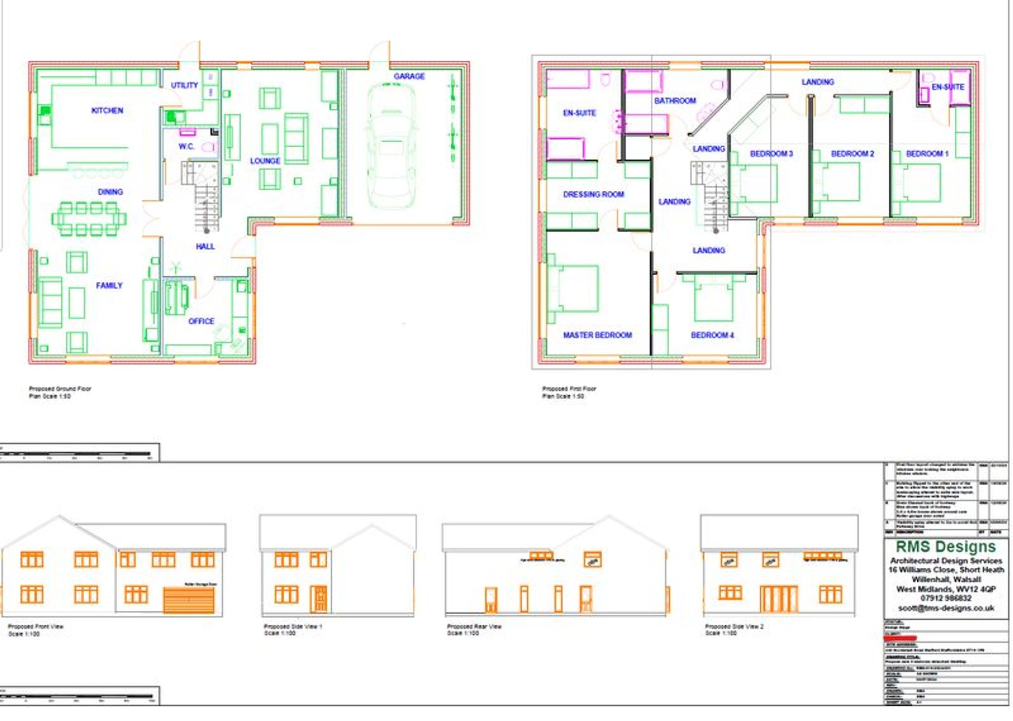
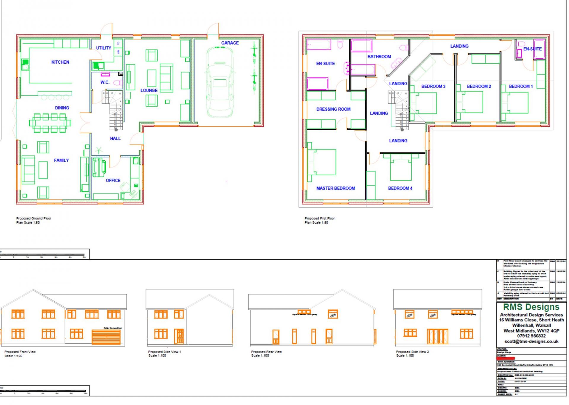
An exciting opportunity to purchase a generous plot in one of Stafford’s sought-after locations. Situated on Pulteney Drive, just off Eccleshall Road, this prime position is within easy reach of commuter routes, the mainline train station, highly regarded schools, and a wide range of local amenities. Stafford Town Centre is only a short distance away, making this the ideal spot for modern family living.

The plot benefits from full planning permission (Ref: 24/39395/FUL) for a substantial five-bedroom detached dwelling of approximately 300m², perfectly suited as a forever family home. The dropped curb is already in place, and the plot offers ample space for off-road parking. The proposed design includes a south-facing garden, with a garden shed already on site—ideal for use as a garden room or workshop.

A self-build here would give you the opportunity to design and finish the property to your exact taste and specification, while also enabling you to reclaim VAT on eligible building materials and elements (we recommend seeking advice from a financial adviser on this).

Opportunities like this in such a desirable location are rare—secure your chance to create a truly bespoke home in a well-connected, family-friendly area.

Important Information

  • This is a Freehold property.
  • This Council Tax band for this property is: D

Property Ref: e1f815d2-d274-45ad-97d3-567bf42647aa

Share:

Similar Properties

Marston Road, Stafford, ST16

2 Bedroom Semi-Detached House | Offers in region of £185,000

Call us 9AM - 9PM -7 days a week, 365 days a year! Where Character Meets a Brand-New Lease on Life! Step into a home whe...

Meakin Grove, Stafford, ST16

3 Bedroom Terraced House | £185,000

Call us 9AM - 9PM -7 days a week, 365 days a year! First-time buyers, this one’s for you! A three bedroom terrace with s...

Stone Road, Stafford, ST16

3 Bedroom Semi-Detached House | £185,000

Greensome Lane, Stafford, ST16

3 Bedroom Semi-Detached House | Offers Over £190,000

Call us 9AM - 9PM -7 days a week, 365 days a year! If you’ve got a passion for gardening, this three-bedroom semi-detach...

Spenser Close, Stafford, ST17

3 Bedroom Semi-Detached House | Offers Over £190,000

Call us 9AM - 9PM -7 days a week, 365 days a year! This fantastic three-bedroom semi-detached home is ready for you to m...

Barn Close, Moss Pit, Stafford, ST17

2 Bedroom Not Specified | £190,000

Call us 9AM - 9PM -7 days a week, 365 days a year! FEEL AT HOME!...This delightful two bedroom semi-detached bungalow wi...

Dourish & Day (Stafford)

14 Salter Street, Stafford, Staffordshire, ST16 2JU

01785 223344

How much is your home worth?

Use our short form to request a valuation of your property.

Request a Valuation

Mortgage Calculator

Amount Borrowed: £
Total Amount Repayable: £
Total Monthly Payment: £
©2025 The Guild of Property Professionals. All rights reserved. Terms and Conditions | Privacy Policy | Cookie Policy | Complaints Policy | Members Login
The Guild of Property Professionals Trading Address: 121 Park Lane, London W1K 7AG. GPEA Limited. Registered in England & Wales.  Company No: 02819824.  Registered Office Address: 2 St. Stephen's Court, St. Stephen's Road, Bournemouth, Dorset, England, BH2 6LA.  VAT Registration No: 576 8795 61
Book a Property Valuation Update Cookies Preferences