Victoria Way, Stafford, ST17

£300,000

2 Bedroom Detached House for sale in Stafford

2 2 1
  • Nearby the beautiful Cannock Chase Country Park, National Trust Shugborough Estate, and the popular Canalside Farm, Shop & Cafe. Perfect for peaceful Sunday walks and days out.
  • Detached bungalow in the sought-after Walton-on-the-Hill being offered for sale with no upwards chain and is bursting with potential. Unleash your imagination and create your dream home.
  • Two double bedrooms that are perfect for hosting guests or extended family, or even having a study, dressing room, or creative hobby room.
  • Bright and spacious interiors including an expansive rear garden with patio seating space and lush lawn. To the front a grass lawn, driveway with off-road parking and a single garage.
  • Just minutes away from local shops, eateries, and healthcare services. Stafford centre just 10-15 minutes away with further amenities and excellent travel links via A34, M6, and train station.

We’ve all got big dreams. Maybe it’s finally writing that bestseller, mastering the art of sourdough, or training your dog to bring you a cup of tea without drinking half of it first. Or perhaps your dream is a little simpler: finding a place bursting with potential, where you can roll up your sleeves, unleash your imagination, and create a home that feels like yours from floorboard to rooftop.

Well, look no further, because this two-bedroom detached bungalow on Victoria Way might just be the one for you. Located in the peaceful and highly desirable Walton-on-the-Hill, offered for sale with no upwards chain, and sitting within easy driving distance of the beautiful Cannock Chase, this home is practically waving at you with both hands, ready to welcome you in.

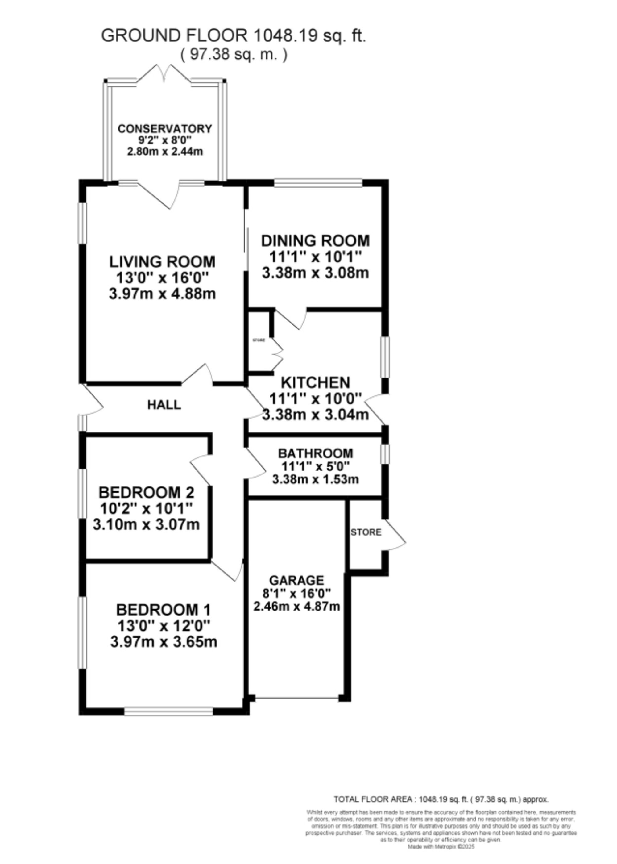
Inside, you’ll find spacious and versatile interiors, including a bright living room with direct access to a fully glazed conservatory overlooking the rear garden—perfect for morning coffees, afternoon snoozes, or simply admiring the view. Through sliding doors sits a separate dining room with easy access into the kitchen. This home boasts huge potential to extend and create an open-plan kitchen/living/dining space that could become the true heart of the property (STNPP).

The two double bedrooms await—ideal for hosting guests or family members or transforming into your very own creative hobby room or peaceful work-from-home sanctuary. The bathroom currently offers a bath/shower duo, sink, and W/C.

Step outside and you’ll find a stunning rear garden complete with patio seating, lush lawns, and mature hedging surrounding the borders. There’s plenty of space for extending, gardening, or simply relaxing in a private oasis of your own. To the front, you’ll find a neat lawn, shrubbery, and a driveway with off-road parking leading to a single garage. The home features a full wrap-around paved path with two convenient entrances—one into the kitchen and one into the hallway.

Both Cannock Chase Country Park and the National Trust Shugborough Estate are just down the road, offering the perfect backdrop for a relaxing Sunday walk. And despite its peaceful setting, the location is wonderfully well connected: you’re only minutes from local shops, eateries, healthcare services, and more. Stafford town centre sits just 10–15 minutes away and provides excellent travel links, including the A34, M6, and Stafford train station.

A quiet location, huge potential, and a home ready for someone to bring their dreams to life—this bungalow is waiting for its next chapter. Want to write it?

Location

Set amidst some of Staffordshire’s most beautiful countryside, the neighbouring villages of Brocton, Milford, and Walton-on-the-Hill are among the most desirable and prestigious locations in the Stafford area. Situated on the edge of the Cannock Chase Area of Outstanding Natural Beauty, these villages offer a perfect balance of rural tranquillity, community spirit, and excellent connectivity.

Walton-on-the-Hill offers a similar blend of rural appeal and convenience, featuring attractive family homes, reputable schools and fall within catchment for the highly regarded Walton High School, and a friendly community feel.

Residents enjoy convenient access to Stafford town centre, just a few miles away, providing a full range of shops, restaurants, and leisure facilities, as well as Stafford railway station with direct links to Birmingham, Manchester, and London. The nearby M6 motorway (Junctions 13 and 14) also makes commuting across the Midlands and beyond straightforward.

Combining countryside elegance with modern convenience and exceptional natural surroundings, Brocton, Milford, and Walton-on-the-Hill represent some of Staffordshire’s finest places to live.

Important Information

  • This is a Freehold property.
  • This Council Tax band for this property is: E

Property Ref: 2f2894c6-4f82-4b3a-903d-290c7547e003

Share:

Similar Properties

Austin Close, Stone, ST15

3 Bedroom Detached House | Offers in excess of £300,000

Garden lovers, this one’s for you! A stunning 3-bed detached on a fabulous corner plot with a wrap-around garden, garage...

Wilfrid Green Place, Stoke-On-Trent, ST4

3 Bedroom Detached House | Offers in excess of £300,000

Danebower Road, Stoke-On-Trent, ST4

3 Bedroom Detached House | Offers in excess of £300,000

Ready, Set, Go… Be quick off the mark to secure this beautifully presented and extended three-bedroom home, perfectly po...

Sebring Avenue, Stoke-On-Trent, ST3

3 Bedroom Detached Bungalow | Offers Over £310,000

Sebring Avenue…what does it bring? Space. Privacy. Potential. And a surprisingly generous plot to match. Tucked away at...

Blacklake Drive, Stoke-On-Trent, ST3

3 Bedroom Detached House | £310,000

Set sail for family life at Blacklake Drive! A bright 3-bed with open-plan living, log burner, garage, and sunny southwe...

New Inn Lane, Stoke-On-Trent, ST4

4 Bedroom Detached Bungalow | Offers in excess of £320,000

Spacious 4-bed bungalow in Trentham, offering light-filled living areas, kitchen, utility, bathroom/shower room, conserv...

James Du Pavey Estate Agents (Stone)

Christchurch Way, Stone, Staffordshire, ST15 8BZ

01785 814917

How much is your home worth?

Use our short form to request a valuation of your property.

Request a Valuation

Mortgage Calculator

Amount Borrowed: £
Total Amount Repayable: £
Total Monthly Payment: £
©2025 The Guild of Property Professionals. All rights reserved. Terms and Conditions | Privacy Policy | Cookie Policy | Complaints Policy | Members Login
The Guild of Property Professionals Trading Address: 121 Park Lane, London W1K 7AG. GPEA Limited. Registered in England & Wales.  Company No: 02819824.  Registered Office Address: 2 St. Stephen's Court, St. Stephen's Road, Bournemouth, Dorset, England, BH2 6LA.  VAT Registration No: 576 8795 61
Book a Property Valuation Update Cookies Preferences