Thorney Edge Road, Bagnall, Staffordshire, ST9 9LD

Offers in region of
£750,000
SSTC
This property listing is now SSTC

4 Bedroom Detached House for sale in Staffordshire

2 4 2
  • - Four-bedroom detached period property set within approximately 10 acres land
  • - Substantial formal and woodland gardens.
  • - Offers generous accommodation with the potential for redesign and personalisation.
  • - Unique opportunity to convert existing outbuildings into additional living space, subject to planning consents.
  • - Current layout includes an entrance hall, kitchen, and lounge with dining area.
  • - Features a sun room, large drawing room, inner hallway, shower room, and cloakroom.
  • - Sizable garage and cellar
  • - Main bedroom overlooks picturesque gardens, providing a serene view.
  • - Three additional double bedrooms and a family bathroom on the first floor.
  • - Cherished by the same family for 50 years, blending comfort with countryside charm.

CALL US TO ARRANGE A VIEWING 9AM - 9PM 7 DAYS A WEEK!

"Home is where one finds peace and beauty in every corner."

This four-bedroom detached property sits with approximately 10 acres of land and various outbuildings, presenting an exceptional opportunity for development and refurbishment, allowing you to design a space that meets your unique living requirements. Set in a stunning location, it invites you to embrace a lifestyle immersed in nature, combining comfort with the beauty of the surrounding environment.

#acres#lardegardens#outbuildings

Denise White Estate Agents Comments - Discover the exceptional potential of this four-bedroom detached period property, set within approximately 10 acres of land with stunning formal and woodland gardens. This residence offers generous accommodation that can be tailored to your preferences, including the unique opportunity to convert the existing outbuildings for additional living space, subject to necessary planning consents.

The current layout features an entrance hall, a kitchen, a lounge with a dining area, a sun room, a large drawing room, an inner hallway, a shower room, and a cloakroom, leading to a sizable garage and cellar. On the first floor, the main bedroom overlooks the picturesque gardens, accompanied by three additional double bedrooms and a family bathroom.

Having been cherished by the same family for the past 50 years, this home harmoniously blends comfort with the charm of countryside living, offering a lifestyle steeped in natural beauty and inviting you to create lasting memories in this tranquil setting.

Location - The property is situated on the outskirts of the village of Bagnall. Bagnall is a popular semi-rural village North East of Stoke On Trent and has been described as one of the most tranquil villages in Staffordshire. Set within the picturesque area of rural Staffordshire, characterized by rolling hills and scenic landscapes, which makes it a desirable location for those seeking a quiet countryside lifestyle.

The village is home to several traditional stone houses which adds to it's historical charm. A notable feature is St Chads Church which dates back to the 1800's and is Grade II listed.

The village is served by a popular public house called The Stafford Arms as well as a village hall which acts as a hub. There are also playing fields beyond the village hall perfect for children to explore and play.

There is also a popular high school and primary schools less than a 10 minute drive away with a bus route through the village.

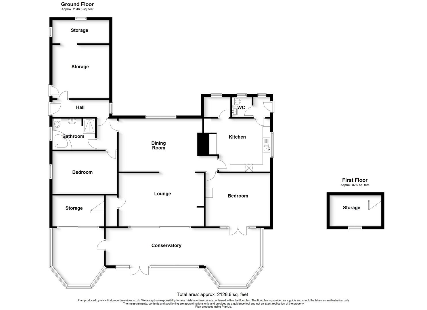
Entrance Hall - The hallway is spacious, showcasing exposed flooring and a radiator. It features a picture rail, stairs leading to the first floor, and a central ceiling light and access gained to the ground floor accommodation.

Kitchen - 2.74 x 3.36 (8'11" x 11'0") - The kitchen features a variety of wall and base units complemented by work surfaces over, sink with a drainer, tiled flooring, tiled walls, two UPVC double-glazed windows, concealed lighting, a radiator, and a serving hatch window that connects to the dining area.

Lounge Dining Room - 6.93 x 3.57 (22'8" x 11'8") - There is an attractive exposed wooden flooring, wall lights, and a feature stone fireplace with a fire. It also includes a radiator and French doors that open to the sunroom. The ARGA cooker is situated in this room too.

Sun Room - 5.66 x 2.26 (18'6" x 7'4") - Spacious and bright, the sunroom overlooks the garden and has tiled flooring, a radiator, and a UPVC door leading outside. It also features UPVC double-glazed windows and a central light fixture, making it a perfect space to relax.

Drawing Room - 5.87 x 6.54 (19'3" x 21'5") - An impressive and generously sized room, this reception area boasts exposed parquet flooring, a picture rail, and ornate coving and cornicing along the ceiling. It is illuminated by central lights and wall lights. There is a large radiator and a striking marble-style fireplace with a cast-iron grate enhance the room's charm. Additionally, the room features bay French doors that open to the garden, flanked by matching floor-to-ceiling windows

Inner Hallway - Access gained into the shower room, cloakroom and into the garage.

Shower Room - Walk in shower room.

Cloakroom - Conveniently located, the cloakroom includes a WC, a wash hand basin, and a frosted UPVC double-glazed window to the rear.

Garage - 9.63 max 7.35 min x 5.17 (31'7" max 24'1" min x 1 - The garage offers ample space and features an electric roll-up garage door, a secure external door, and a UPVC window at the front, along with two additional UPVC windows at the rear. There is a floor-mounted boiler, and steps lead down to a cellar area.

Cellar - A good space that is currently used as storage space.

First Floor Accommodation -

Landing - Stairs from the ground floor accommodation leads to the first floor with access gained to the first floor accommodation. Radiator, ceiling lights, windows, access into the inner landing.

Inner Landing - Access gained from the main landing into the inner landing. Access into the main bedroom and family bathroom. Airing cupboard with storage space.

Bedroom One - 4.64 x 4.40 (15'2" x 14'5") - A great size bedroom with fitted bedroom furniture, fitted carpet, sink unit, radiator, sliding patio doors over looking a balcony with views over the gardens. Ceiling lights.

Bathroom - 2.99 x 1.29 (9'9" x 4'2") - A three piece suite which comprises; bath with central tap and attachment, heritage style pedestal wash hand basin, W.C. Tiled flooring, tiled walls, wall lights, window.

Bedroom Two - 3.62 x 3.68 (11'10" x 12'0") - Double bedroom, window, ceiling light, radiator.

Bedroom Three - 3.11 x 3.68 (10'2" x 12'0") - Double bedroom, ceiling light, radiator, window.

Bedroom Four - 3.34 x 2.73 (10'11" x 8'11") - Double bedroom, exposed wooden flooring, ceiling light, window, radiator.

Outside - The property is approached via gates that lead to a courtyard area with parking via a carport and an additional garage with electric door. The gardens are a particular feature to the property which have been landscaped over the years of ownership and provide a great space with different areas defined into formal garden space, orchard, wooded area. The acreage extends to approximately 10 acres of grazing land.

Outbuildings - Laundry Room - 2.52 x 1.89
Coal House - 2.51 x 1.63
Outbuilding attached to garage 8.71 x 4.85
Outbuilding 1 - 10.18 x 3.54
Outbuilding 2 - 4.67 x 3.03
Outbuilding 3 - 4.67 x 3.03

Acreage - Approximately ten acres of land.

What3words - ///pampered.templates.crunch

Agents Notes - Freehold
Oil central heating
Septic tank drainage

Please Note....... - Please note that all areas, measurements and distances given in these particulars are approximate and rounded. The text, photographs and floor plans are for general guidance only. Denise White Estate Agents has not tested any services, appliances or specific fittings - prospective purchasers are advised to inspect the property themselves. All fixtures, fittings and furniture not specifically itemised within these particulars are deemed removable by the vendor.

About Denise White Estate Agents - "In a world where you can be anything, be kind"

Denise is the director of Denise White Estate agents and has worked in the local area since 1999. Denise and the team can help and advise with any information on the local property market and the local area.

Denise White Estate Agents deal with all aspects of property including residential sales and lettings.
Please do get in touch with us if you need any help or advise.

We Won !! - Denise White Bespoke Estate Agents has been honoured with the esteemed Gold Award for two years running; 2024 & 2025 from the British Property Awards for their exceptional customer service and extensive local marketing knowledge in Leek and its surrounding areas.

The British Property Awards, renowned for their inclusivity and comprehensive evaluation process, assess estate agents across the United Kingdom based on their customer service levels and understanding of the local market. Denise White Estate Agents demonstrated outstanding performance throughout the rigorous and independent judging period.

Additionally the team have been successful in receiving the GOLD EXCEPTIONAL award from the British Estate Agency Guide 2025 & 2025 and being listed as one of the Top 500 Estate Agents in the UK.

The Best Estate Agency Guide assess data such as the time taken from listing as for sale to sale agreed, achieving the asking price vs the achieved price, market share of properties available, positive reviews and much more!

Do You Have A House To Sell Or Rent ? - We can arrange an appointment that is convenient with yourself, we'll view your property and give you an informed FREE market appraisal and arrange the next steps for you.

Do You Need Help With A Mortgage ? - Speak to us, we'd be more than happy to point you in the direction of a reputable adviser who works closely with ourselves.

You Will Need A Solicitor ! - A good conveyancing solicitor can make or break your moving experience - we're happy to recommend or get a quote for you, so that when the times comes, you're ready to go.

Property Ref: 34294964

Share:

Similar Properties

Park Lane, Endon, Stoke-On-Trent. ST9 9JA

4 Bedroom Detached House | Guide Price £750,000

CALL US TO ARRANGE A VIEWING 9AM UNTIL 9PM 7 DAYS A WEEK !An outstanding detached home located on the outskirts of Endon...

Hill Top, Brown Edge, Staffordshire, ST6 8TY

4 Bedroom Detached House | Guide Price £750,000

GUIDE PRICE: £750,000 - £775,000'Living in a rural setting exposes you to so many marvellous things - the natural world...

Consall Lane, Wetley Rocks, Staffordshire, ST9 0AA

4 Bedroom Detached Bungalow | Offers in region of £750,000

CALL US TO ARRANGE A VIEWING 9AM UNTIL 9PM 7 DAYS A WEEK!"An incredible, once-in-a-lifetime opportunity"Willowvale Farm...

Bradnop Grange, Bradnop, Staffordshire, ST13 7ND

4 Bedroom Detached House | Guide Price £775,000

CALL US TO ARRANGE A VIEWING 9AM TO 9PM 7 DAYS A WEEK!GUIDE PRICE £775,000 - £800,000"Elegance is not about being notice...

New Sheepwalk Farm, Thorncliffe, Leek, Staffordshire, ST13 8UP

3 Bedroom Detached House | Guide Price £800,000

CALL US TO ARRANGE A VIEWING 9AM TO 9PM 7 DAYS A WEEK!** GUIDE PRICE £800,000 TO £850,000 **"Everything I want to do in...

Sheep Market, Leek, Staffordshire, ST13 5HN

7 Bedroom Retail Property (High Street) | Guide Price £850,000

**Mixed-Use Investment Opportunity**We are pleased to present a valuable mixed-use investment opportunity comprising a f...

Denise White (Leek)

St Edward Street, Leek, Staffordshire, ST13 5DL

01538 381772 / 01782 901088

How much is your home worth?

Use our short form to request a valuation of your property.

Request a Valuation

Mortgage Calculator

Amount Borrowed: £
Total Amount Repayable: £
Total Monthly Payment: £
©2026 The Guild of Property Professionals. All rights reserved. Terms and Conditions | Privacy Policy | Cookie Policy | Complaints Policy | Members Login
The Guild of Property Professionals Trading Address: 121 Park Lane, London W1K 7AG. GPEA Limited. Registered in England & Wales.  Company No: 02819824.  Registered Office Address: 2 St. Stephen's Court, St. Stephen's Road, Bournemouth, Dorset, England, BH2 6LA.  VAT Registration No: 576 8795 61
Book a Property Valuation Update Cookies Preferences