Kesteven Road, Stamford

Offers in excess of
£290,000
SSTC
This property listing is now SSTC

3 Bedroom Semi-Detached House for sale in Stamford

2 3 1
  • Three Bedroom Semi Detached House
  • Popular Residential Area
  • Well Presented Throughout
  • 2 Reception Rooms
  • Kitchen with Pantry & Utility Room
  • 2 Doubles & 1 Single Bedroom
  • Good Sized Rear Garden
  • Driveway Parking for 3 Vehicles
  • Please Refer to Attached KFB For Material Information Disclosures


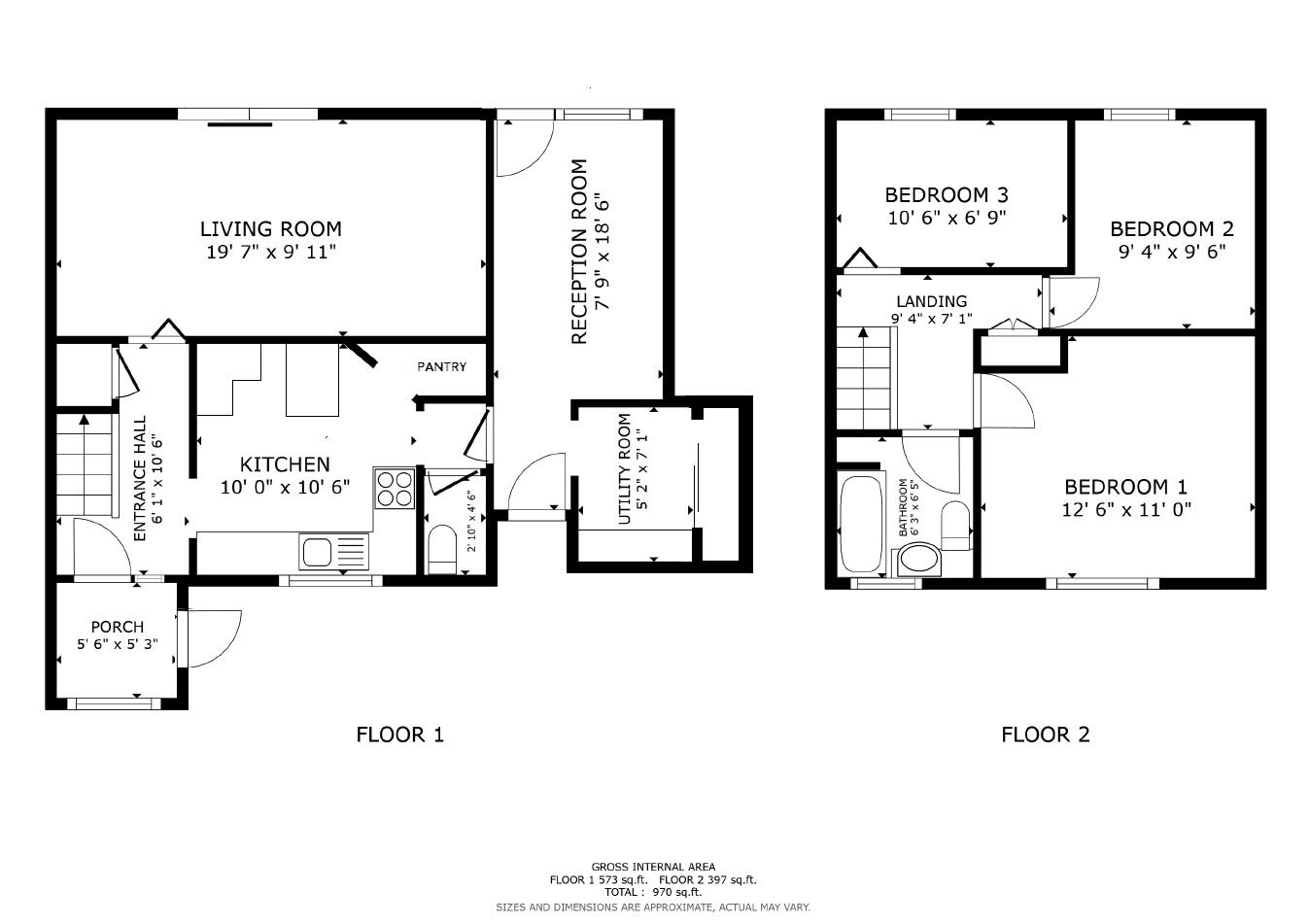
Briefly the accommodation comprises; Ground Floor - Porch, Entrance Hall, Living Room, Kitchen, 2nd Reception Room, and Utility/Boot Room. First Floor - Landing, 3 Bedrooms, and a Family Bathroom. Outside - To the front is a driveway that provides off road parking for 3 cars. To the rear is a good sized garden, with large paved patio and a good sized lawned area.

Agents Note
Local Authority – South Kesteven District Council
Council Tax Band – B
EPC Rating - D

Porch

Entrance Hall
1.85m x 3.20m (6'1" x 10'6")

Kitchen
3.05m x 3.20m (10'0" x 10'6")

Inner Hall

Reception Room
2.36m x 5.64m (7'9" x 18'6")

Utility/Boot Room
1.57m x 2.16m (5'2" x 7'1")

Living Room
5.97m x 3.02m (19'7" x 9'11")

Landing
2.84m x 2.16m (9'4" x 7'1")

Bedroom 1
3.81m x 3.35m (12'6" x 11'0")

Bedroom 2
2.84m x 2.90m (9'4" x 9'6")

Bedroom 3
3.20m x 2.06m (10'6" x 6'9")

Family Bathroom
1.91m x 1.96m (6'3" x 6'5")

Driveway Parking for 3 Cars


Sizes and dimensions are calculated using a laser measuring modelling device and as such whilst representative it must be noted that they are all approximate, actual sizes may vary.

Important Information

  • This is a Freehold property.
  • This Council Tax band for this property is: B
  • EPC Rating is D

Property Ref: 34411293

Share:

Similar Properties

The Courtyard, Stamford

3 Bedroom Terraced House | £285,000

*NO CHAIN* *3/4 BEDROOM TOWNHOUSE* *OVER 1000 SQFT OF ACCOMODATION* This fantastic Townhouse with allocated off street p...

Elgar Way, Stamford

3 Bedroom Semi-Detached House | £285,000

Situated in a quiet cul-de-sac within a small and sought-after modern development, this well-presented three-bedroom sem...

Tickencote, Nr Stamford

2 Bedroom Cottage | £285,000

This Grade II Listed character cottage is set in the small village of Tickencote, just a few miles north of the Georgian...

The Penthouse, Brownlow Terrace, Stamford

2 Bedroom Flat | £300,000

This impressive two-bedroom penthouse apartment set within just over 1000sqft of accommodation is ideally situated withi...

Lindsey Road, Uffington, Stamford

3 Bedroom Semi-Detached House | £300,000

A well-proportioned three-bedroom semi-detached home positioned in the sought-after village of Uffington, just a short d...

Groves Crescent, Stamford

3 Bedroom End of Terrace House | £320,000

Situated on the popular Stamford Manor development on the west side of Stamford is this 3 bedroom mid terraced home, whi...

Goodwin Property (Stamford)

St Johns Street, Stamford, Lincolnshire, PE9 2DA

01780 750000

How much is your home worth?

Use our short form to request a valuation of your property.

Request a Valuation

Mortgage Calculator

Amount Borrowed: £
Total Amount Repayable: £
Total Monthly Payment: £
©2026 The Guild of Property Professionals. All rights reserved. Terms and Conditions | Privacy Policy | Cookie Policy | Complaints Policy | Members Login
The Guild of Property Professionals Trading Address: 121 Park Lane, London W1K 7AG. GPEA Limited. Registered in England & Wales.  Company No: 02819824.  Registered Office Address: 2 St. Stephen's Court, St. Stephen's Road, Bournemouth, Dorset, England, BH2 6LA.  VAT Registration No: 576 8795 61
Book a Property Valuation Update Cookies Preferences