The Courtyard, Stamford

£285,000

3 Bedroom Terraced House for sale in Stamford

2 3 2
  • 3/4 Bedroom Townhouse
  • No Chain
  • Potential to improve
  • Living Room, Plus Further First Floor Reception Room/Bedroom
  • 3 Double Bedrooms
  • En Suite & Family Bathroom
  • Enclosed Rear Garden
  • Allocated Parking for 2 Vehicles
  • Please refer to attached Key Facts for Buyers for Material Information Disclosures


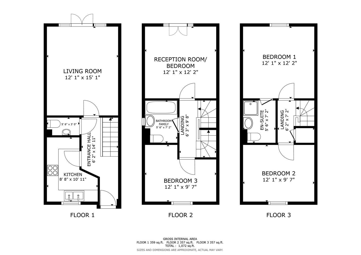
The accommodation is set over 3 floors and briefly comprises: Ground Floor - Entrance Hall, Cloakroom, Kitchen, Living Room. First Floor - Reception Room/Bedroom 4, Bedroom 2, and Family Bathroom. Second Floor - Master Bedroom with En-Suite Shower Room, and Bedroom 3.

Outside - To the front of the property is 2 allocated off road parking spaces. To the rear is an enclosed rear garden, mainly laid to lawn.

Agents Note:
Local Authority – South Kesteven District Council
Council Tax Band – D
EPC Rating - C

Entrance Hall
1.88m x 4.55m (6'2" x 14'11")

Kitchen
2.64m x 3.33m (8'8" x 10'11")

Cloakroom
1.68m x 0.91m (5'6" x 3'0")

Living Room
3.68m x 4.60m (12'1" x 15'1")

First Floor Landing
1.91m x 2.95m (6'3" x 9'8")

Reception Room/Bedroom
3.68m x 3.71m (12'1" x 12'2")

Bedroom 3
3.71m x 2.92m (12'2" x 9'7")

Family Bathroom
1.68m x 2.18m (5'6" x 7'2")

Second Floor Landing
1.88m x 2.18m (6'2" x 7'2")

Bedroom 1
3.68m x 3.71m (12'1" x 12'2")

En Suite
1.68m x 2.18m (5'6" x 7'2")

Bedroom 2
3.68m x 2.92m (12'1" x 9'7")

Off Road Parking for 2 Vehicles


Sizes and dimensions are calculated using a laser measuring modelling device and as such whilst representative it must be noted that they are all approximate, actual sizes may vary.

Important Information

  • This is a Freehold property.
  • This Council Tax band for this property is: D
  • EPC Rating is C

Property Ref: 33840840

Share:

Similar Properties

Tickencote, Nr Stamford

2 Bedroom Cottage | £285,000

This Grade II Listed character cottage is set in the small village of Tickencote, just a few miles north of the Georgian...

Vine Street, Stamford, Lincolnshire

2 Bedroom End of Terrace House | Offers in excess of £285,000

BRAND NEW KITCHEN & BATHROOM – An exceptionally well-presented 2-bedroom, 2-reception period home just moments from the...

Melrose Close, Stamford

3 Bedroom Semi-Detached House | £280,000

This well-presented three-bedroom semi-detached home is situated in a quiet residential area of Stamford, within conveni...

Crown Street, Ryhall

2 Bedroom Cottage | £290,000

A delightful 2 bedroom character cottage with pleasant garden, parking and a single garage, situated just a short walk f...

Kesteven Road, Stamford

3 Bedroom Semi-Detached House | Offers in excess of £290,000

A bright and spacious 3 bedroom semi-detached home situated within easy walking distance of well-regarded schools, the l...

The Penthouse, Brownlow Terrace, Stamford

2 Bedroom Flat | £300,000

This impressive two-bedroom penthouse apartment is ideally situated within easy walking distance of Stamford town centre...

Goodwin Property (Stamford)

St Johns Street, Stamford, Lincolnshire, PE9 2DA

01780 750000

How much is your home worth?

Use our short form to request a valuation of your property.

Request a Valuation

Mortgage Calculator

Amount Borrowed: £
Total Amount Repayable: £
Total Monthly Payment: £
©2026 The Guild of Property Professionals. All rights reserved. Terms and Conditions | Privacy Policy | Cookie Policy | Complaints Policy | Members Login
The Guild of Property Professionals Trading Address: 121 Park Lane, London W1K 7AG. GPEA Limited. Registered in England & Wales.  Company No: 02819824.  Registered Office Address: 2 St. Stephen's Court, St. Stephen's Road, Bournemouth, Dorset, England, BH2 6LA.  VAT Registration No: 576 8795 61
Book a Property Valuation Update Cookies Preferences