Clapton Close, Stamford

£600,000

4 Bedroom Detached House for sale in Stamford

4 4 2
  • 4 bedroom Detached Family Home
  • Well Presented Throughout
  • 4 Reception Rooms
  • Large Kitchen Breakfast Room
  • 4 Double Bedrooms
  • 2 Bathrooms
  • Private Rear Garden - Partially Converted Garage to Family Room/Home Office
  • Single Garage - & Double Width Drive Parking for 2-4 Vehicles
  • Please Refer to Attached KFB For Material Information Disclosures


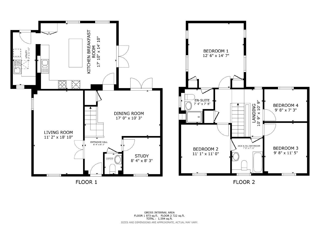
The property is well presented throughout and comprises; Ground Floor - Entrance hall which opens into a large Open Plan Dining Room with patio doors to the rear garden, Cloakroom, Kitchen Breakfast Room, Living Room and Study. First Floor - Galleried Landing, Master Bedroom with En Suite Shower Room, Three Further Double Bedrooms, and a Jack 'n' Jill family bathroom (Shared with Bedroom 2). To the rear is a westly facing Garden laid mainly to lawn with two patio areas, and well stocked borders. Originally built with a Double Garage the present owners have fully converted the right hand side garage in to a Family Room/Home Office with bi-fold doors opening on to one of the patio areas. Also to the front is a Double width Driveway providing off road parking for 2 – 4 four vehicles.

Agents Note
Local Authority – South Kesteven District Council
Council Tax Band – E
EPC Rating - C

Entrance Hall
2.54m x 2.51m (8'4" x 8'3")

Cloakroom
1.19m x 1.40m (3'11 x 4'7")

Open Plan Dining Room
5.18m x 3.12m (17'0" x 10'3")

Study
2.54m x 2.51m (8'4" x 8'3")

Living Room
3.40m x 5.74m (11'2" x 18'10")

Kitchen Breakfast Room
5.44m x 4.52m (17'10" x 14'10" )

Utility
1.57m x 3.63m (5'2" x 11'11")

Landing
3.28m x 3.28m (10'9" x 10'9")

Bedroom 1
3.81m x 4.45m (12'6" x 14'7")

En Suite Shower Room
2.24m x 2.34m (7'4" x 7'8")

Bedroom 2
3.38m x 3.35m (11'1" x 11'0")

Jack & Jill Bathroom
2.13m x 2.41m (7'0" x 7'11")

Bedroom 3
2.95m x 3.48m (9'8" x 11'5")

Bedroom 4
2.95m x 2.21m (9'8" x 7'3")

Garden

Family Room/Home Office
4.72m x 2.72m (15'6" x 8'11")


Sizes and dimensions are calculated using a laser measuring modelling device and as such whilst representative it must be noted that they are all approximate, actual sizes may vary.

Important Information

  • This Council Tax band for this property is: E
  • EPC Rating is C

Property Ref: 43069_34164360

Share:

Similar Properties

Barnack Road, Stamford

4 Bedroom Townhouse | Offers in region of £530,000

An immaculate four double bedroom townhouse, ideally positioned opposite Burghley Park and just a short stroll from Stam...

Adelaide Street, Stamford

2 Bedroom Terraced House | £500,000

This extremely well presented stone town house , is set in a tucked away location just minutes from Stamford's Town Cent...

Lonsdale Road, Stamford

4 Bedroom Detached House | Offers Over £500,000

Set in this sought after estate location to the west of Stamford is this established 4 Bedroom Detached Family Home with...

Bainton Green Road, Ashton, Stamford

4 Bedroom Cottage | £650,000

A rare opportunity has arisen to acquire this attractive Grade II Listed Detached Stone Cottage that dates back to the 1...

St. Leonards Street, Stamford

3 Bedroom Terraced House | £650,000

This attractive period stone town house is situated in a highly popular location within a short walk of Stamford's town...

Casterton Road, Stamford

4 Bedroom Detached House | £675,000

Extremely well presented 3/4-bedroom, 3 reception room, detached family home, which has been finished to a high standard...

Goodwin Property (Stamford)

St Johns Street, Stamford, Lincolnshire, PE9 2DA

01780 750000

How much is your home worth?

Use our short form to request a valuation of your property.

Request a Valuation

Mortgage Calculator

Amount Borrowed: £
Total Amount Repayable: £
Total Monthly Payment: £
©2025 The Guild of Property Professionals. All rights reserved. Terms and Conditions | Privacy Policy | Cookie Policy | Complaints Policy | Members Login
The Guild of Property Professionals Trading Address: 121 Park Lane, London W1K 7AG. GPEA Limited. Registered in England & Wales.  Company No: 02819824.  Registered Office Address: 2 St. Stephen's Court, St. Stephen's Road, Bournemouth, Dorset, England, BH2 6LA.  VAT Registration No: 576 8795 61
Book a Property Valuation Update Cookies Preferences