Main Street, Caldecott, Market Harborough

£450,000

3 Bedroom Cottage for sale in Caldecott

2 3 2
  • Charming, beautifully renovated village cottage blending character features with high-quality modern living.
  • Recently extended and renovated to a high standard
  • Stylish and spacious open-plan kitchen–living area
  • Three reception rooms
  • Three double bedrooms
  • Ground-floor shower room & first-floor family bathroom
  • Off Road Parking for 2/3 Vehicles
  • Garden includes expired planning permission for a separate dwelling — offering excellent future potential
  • Please Refer to Attached KFB For Material Information Disclosures


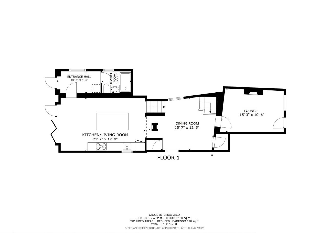
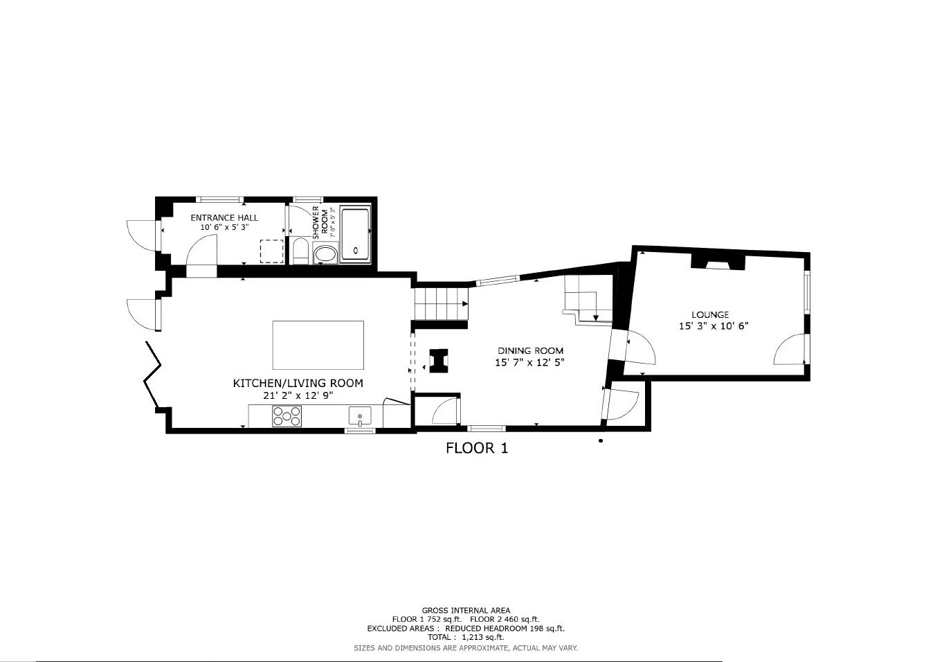
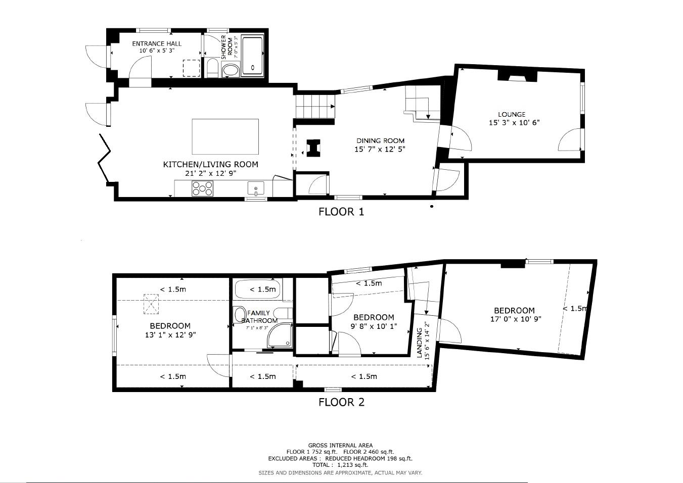
Ground Floor - The property opens into a welcoming entrance hall, offering a bright introduction to the home and access to the ground-floor rooms. Immediately off the hall is a well-proportioned shower room, providing useful additional facilities on the lower level. The heart of the home is the impressive open-plan kitchen and living area, recently extended and finished to a high standard, creating a generous and sociable space ideal for both everyday family living and entertaining. Beyond this, the property benefits from two further reception rooms: a spacious dining room, perfect for hosting or formal occasions, and a cosy lounge which provides a comfortable retreat ideal for relaxation.

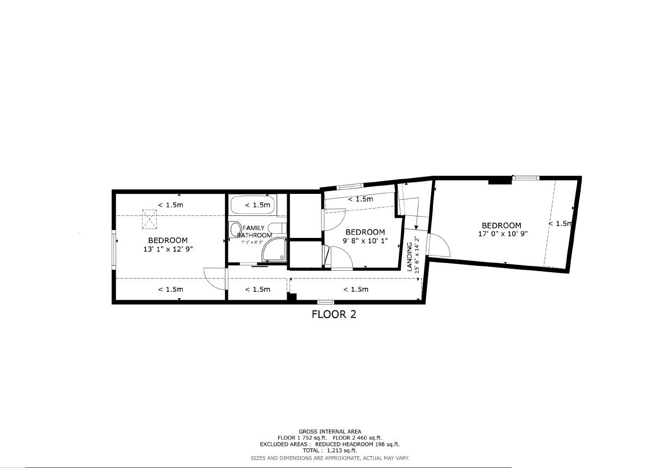
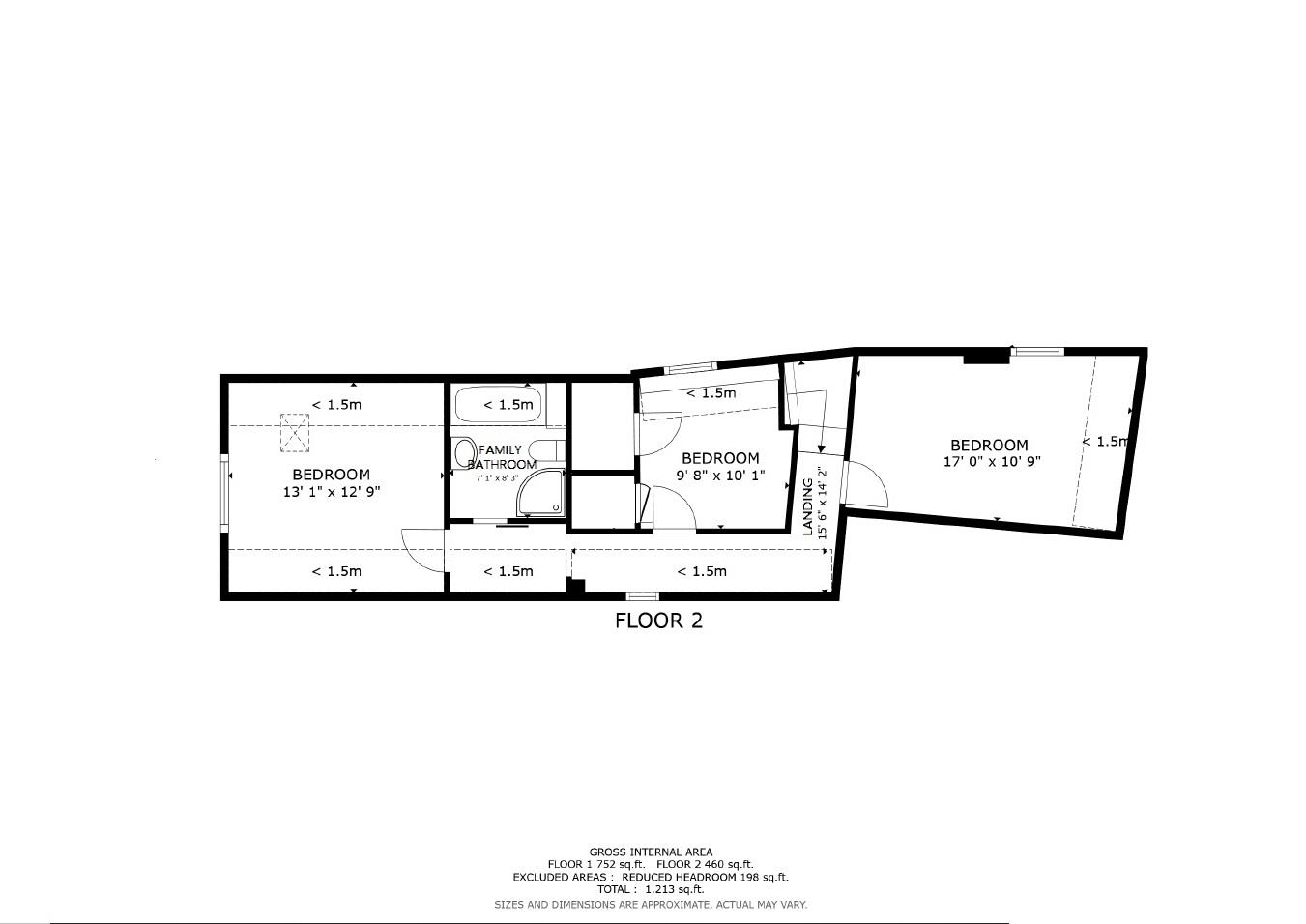
The first floor offers three well-sized bedrooms, each providing comfortable and versatile accommodation. The principal bedroom is a bright and inviting double room with ample space for furnishings. Bedroom two is particularly generous, offering excellent proportions suitable for a main bedroom or guest suite. The third bedroom, also well-sized, works perfectly as a child’s room, home office, or nursery. Completing the first floor is a family bathroom, serving all bedrooms and adding convenience to the upper level.

Outside & Development Potential - The rear garden offers a wonderful private outdoor space — and notably comes with expired planning permission for a separate dwelling, presenting an attractive opportunity for future development (subject to renewing consent).

Agents Note:
Expired Planning Application - Rutland County Council - 2020/0040/FUL
Local Authority - Rutland
Council Tax Band - D
EPC Rating - D

Entrance Hall
3.20m x 1.60m (10'6" x 5'3")

Shower Room
2.13m x 1.60m (7'0" x 5'3")

Kitchen Living Room
6.45m x 3.89m (21'2" x 12'9")

Dining Room
4.75m x 3.78m (15'7" x 12'5")

Lounge
4.65m x 3.20m (15'3" x 10'6")

Landing

Bedroom 1
3.99m x 3.89m (13'1" x 12'9")

Bedroom 2
5.18m x 3.28m (17'0 x 10'9")

Bedroom 3
2.95m x 3.07m (9'8" x 10'1")

Family Bathroom
2.16m x 2.51m (7'1" x 8'3")


Sizes and dimensions are calculated using a laser measuring modelling device and as such whilst representative it must be noted that they are all approximate, actual sizes may vary.

Important Information

  • This is a Freehold property.
  • This Council Tax band for this property is: D
  • EPC Rating is D

Property Ref: 34318300

Share:

Similar Properties

Church Street, Northborough, Peterborough

3 Bedroom Detached House | £450,000

A rare opportunity to acquire an attractive stone cottage with a substantial converted barn, offering versatile addition...

Camrose Close, Oakham

4 Bedroom Detached House | £450,000

Spacious 4-Bedroom Detached Family Home - Camrose Close, Oakham. Nestled in a quiet cul-de-sac in the highly sought-afte...

Highgrove Gardens, STAMFORD, Lincolnshire

4 Bedroom Detached House | £450,000

Well-presented detached family home situated in a cul-de-sac location, just off Empingham Road and close to the Malcolm...

Station Road, Morton, Bourne

4 Bedroom Detached House | Offers Over £467,500

Situated in the heart of this popular village of Morton, Cobwebs is a deceptively spacious, double fronted, period famil...

Cambridge Road, Stamford

3 Bedroom Bungalow | £480,000

This deceptively spacious three-bedroom detached bungalow offers an exceptional amount of versatile living accommodation...

Barnack Road, Stamford

4 Bedroom Town House | £500,000

An immaculate four double bedroom townhouse, ideally positioned opposite Burghley Park and just a short stroll from Stam...

Goodwin Property (Stamford)

St Johns Street, Stamford, Lincolnshire, PE9 2DA

01780 750000

How much is your home worth?

Use our short form to request a valuation of your property.

Request a Valuation

Mortgage Calculator

Amount Borrowed: £
Total Amount Repayable: £
Total Monthly Payment: £
©2026 The Guild of Property Professionals. All rights reserved. Terms and Conditions | Privacy Policy | Cookie Policy | Complaints Policy | Members Login
The Guild of Property Professionals Trading Address: 121 Park Lane, London W1K 7AG. GPEA Limited. Registered in England & Wales.  Company No: 02819824.  Registered Office Address: 2 St. Stephen's Court, St. Stephen's Road, Bournemouth, Dorset, England, BH2 6LA.  VAT Registration No: 576 8795 61
Book a Property Valuation Update Cookies Preferences