Welland Mews, Stamford

£235,000
Sold
This property listing is now Sold

2 Bedroom Flat for sale in Stamford

1 2 1
  • Purpose-built over 55s Development
  • Completely Refurbished to a High Standard
  • Arguably Occupying the Best Position in the Development
  • Walking Distance to Town Centre, Burghley Park & Railway Station
  • Refitted Kitchen & Shower Room
  • French Door to Balcony from Living Area
  • 2 Bedrooms
  • Communal Garden and Facilities
  • Please refer to attached Key Facts for Buyers for Material Information Disclosures


The flat has been completely renovated to an extremely high standard and briefly comprises; Ground Floor - Private Entrance with Stirs/Stair lift to Flat. First Floor - Landing, Entrance Hall, Open Plan Kitchen/Living/Dining Room with Balcony overlooking the River Welland, 2 Bedrooms (I Double & 1 Single, and a Refitted Shower Room.

Early Viewing Highly Recommended

Agents Note;
EPC Rating - B
Tenure – Leasehold
Lease Term – 125 Years from 20 December 1990 (90 Years Remaining)
Service Charge - £249.77 per calendar month

In the 2022 refurbishment the following was added.
New radiators throughout.
New high pressure unvented hot water system
All internal doors replaced
All external windows replaced (8 Years of guarantee remaining)
Composite front door installed
All ceilings replaced
In 2023, the entire building had the cavity wall insulation replaced

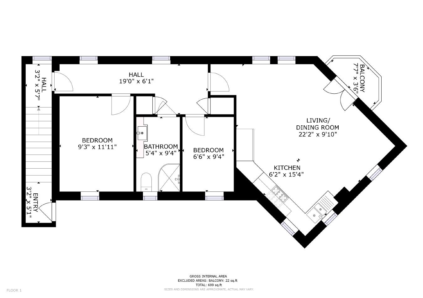
Entrance
0.97m x 1.55m (3'2" x 5'1")

Landing
0.97m x 1.70m (3'2" x 5'7")

Hall
5.79m x 1.85m max (19'0" x 6'1" max)

Kitchen/Living/Dining Room

Living/Dining Area
6.76m x 3.00m (22'2" x 9'10")

Balcony

Kitchen Area
1.88m x 4.67m (6'2" x 15'4")

Bedroom 1
2.82m x 3.63m (9'3" x 11'11")

Bedroom 2
1.98m x 2.84m (6'6" x 9'4")

Shower Room
1.63m x 2.84m (5'4" x 9'4")


Sizes and dimensions are calculated using a laser measuring modelling device and as such whilst representative it must be noted that they are all approximate, actual sizes may vary.

Important Information

  • This is a Leasehold property.
  • The annual service charges for this property is £2997
  • This Council Tax band for this property is: B
  • EPC Rating is D

Property Ref: 33798507

Share:

Similar Properties

Churchill Road, Stamford

2 Bedroom Semi-Detached Bungalow | £230,000

This established semi-detached two-bedroom bungalow is set in a quiet cul-de-sac to the north side of town. the property...

Emmanuel Road, Stamford

3 Bedroom Semi-Detached House | £230,000

Substantial Extended Home • In Need of Updating • Rare Opportunity in a sought after Stamford LocationA heavily extended...

Gainsborough Road, Stamford

3 Bedroom Semi-Detached House | £230,000

This established three-bedroom semi detached house is set in a quiet cul-de-sac to the north side of town. The property...

Torkington Gardens, Stamford

2 Bedroom Flat | £240,000

A bright and well-presented two-bedroom first-floor apartment situated in the highly sought-after Torkington Gardens. Th...

Welland Mews, Stamford

2 Bedroom Flat | £250,000

A rare opportunity has arisen to purchase a beautifully presented two-bedroom ground floor flat within the grounds of th...

Emmanuel Road, Stamford

2 Bedroom Semi-Detached Bungalow | £250,000

This well-presented semi-detached bungalow is located in an established residential area on the north side of town. Situ...

Goodwin Property (Stamford)

St Johns Street, Stamford, Lincolnshire, PE9 2DA

01780 750000

How much is your home worth?

Use our short form to request a valuation of your property.

Request a Valuation

Mortgage Calculator

Amount Borrowed: £
Total Amount Repayable: £
Total Monthly Payment: £
©2026 The Guild of Property Professionals. All rights reserved. Terms and Conditions | Privacy Policy | Cookie Policy | Complaints Policy | Members Login
The Guild of Property Professionals Trading Address: 121 Park Lane, London W1K 7AG. GPEA Limited. Registered in England & Wales.  Company No: 02819824.  Registered Office Address: 2 St. Stephen's Court, St. Stephen's Road, Bournemouth, Dorset, England, BH2 6LA.  VAT Registration No: 576 8795 61
Book a Property Valuation Update Cookies Preferences