Cromarty Road, Stamford

£275,000
SSTC
This property listing is now SSTC

3 Bedroom Semi-Detached House for sale in Stamford

3 1
  • Established 3-Bedroom Semi Detached House
  • 2 Reception Rooms
  • Well Presented throughout
  • Close To Amenities & Schooling
  • Quiet Cul-De-Sac Position
  • Ample Off Road Parking
  • Established Rear Garden
  • Close to Malcolm Sargent Primary School
  • Please refer to attached Key Facts for Buyers for Material Information Disclosures


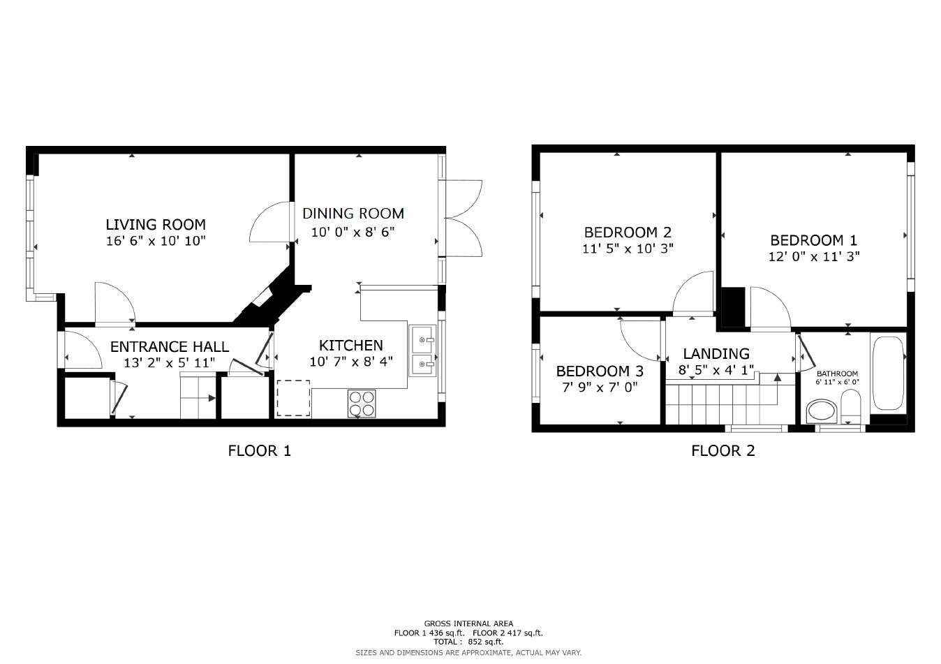
Briefly the accommodation comprises: Entrance Hall, Living Room, Dining Room and Kitchen on the ground floor whilst upstairs there are 3 bedrooms, 2 of which are good sized doubles, and a family bathroom.

Outside - to the front is a driveway that provides ample parking and leads to a single garage. To the rear of the property is a large patio and lawned garden.

Agents Note:
Local Authority – South Kesteven District Council
Council Tax Band – C
EPC Rating - C

Entrance Hall
4.01m x 1.80m (13'2" x 5'11")

Living Room
5.03m x 3.30m (16'6" x 10'10")

Dining Room
3.05m x 2.59m (10'0" x 8'6")

Kitchen
3.23m x 2.54m (10'7" x 8'4")

Landing
2.57m x 1.24m (8'5" x 4'1")

Bedroom 1
3.66m x 3.43m (12'0" x 11'3")

Bedroom 2
3.48m x 3.12m (11'5" x 10'3")

Bedroom 3
2.36m x 2.13m (7'9" x 7'0")

Family Bathroom
2.11m x 1.83m (6'11" x 6'0")


Sizes and dimensions are calculated using a laser measuring modelling device and as such whilst representative it must be noted that they are all approximate, actual sizes may vary.

Important Information

  • This is a Freehold property.
  • This Council Tax band for this property is: C
  • EPC Rating is C

Property Ref: GPS1728270

Share:

Similar Properties

Redcot Gardens, Stamford

3 Bedroom Terraced House | £275,000

This 3/4 Bedroom mid terraced property is within walking distance of Stamford Town Centre. The property is well presente...

Vine Street, Stamford, Lincolnshire

2 Bedroom End of Terrace House | £270,000

BRAND NEW KITCHEN & BATHROOM – An exceptionally well-presented 2-bedroom, 2-reception period home just moments from the...

Welland Mews, Stamford

2 Bedroom Flat | £250,000

A rare opportunity has arisen to purchase a beautifully presented two-bedroom ground floor flat within the grounds of th...

The Briers, Easton On The Hill

2 Bedroom End of Terrace House | £280,000

Situated within the desirable village of Easton on the Hill, just a short drive from the historic Georgian market town o...

Melrose Close, Stamford

3 Bedroom Semi-Detached House | £280,000

This well-presented three-bedroom semi-detached home is situated in a quiet residential area of Stamford, within conveni...

The Courtyard, Stamford

3 Bedroom Terraced House | £285,000

*NO CHAIN* *3/4 BEDROOM TOWNHOUSE* *OVER 1000 SQFT OF ACCOMODATION* This fantastic Townhouse with allocated off street p...

Goodwin Property (Stamford)

St Johns Street, Stamford, Lincolnshire, PE9 2DA

01780 750000

How much is your home worth?

Use our short form to request a valuation of your property.

Request a Valuation

Mortgage Calculator

Amount Borrowed: £
Total Amount Repayable: £
Total Monthly Payment: £
©2026 The Guild of Property Professionals. All rights reserved. Terms and Conditions | Privacy Policy | Cookie Policy | Complaints Policy | Members Login
The Guild of Property Professionals Trading Address: 121 Park Lane, London W1K 7AG. GPEA Limited. Registered in England & Wales.  Company No: 02819824.  Registered Office Address: 2 St. Stephen's Court, St. Stephen's Road, Bournemouth, Dorset, England, BH2 6LA.  VAT Registration No: 576 8795 61
Book a Property Valuation Update Cookies Preferences