Station Road, Stanley Village, Derbyshire

Offers in region of
£415,000

3 Bedroom Detached House for sale in Stanley Ilkeston

2 3 2
  • Highly Appealing Detached Home in Village Location
  • Countryside Views
  • Spacious Lounge
  • Dining Room/Playroom & Conservatory
  • Kitchen & Utility/Cloakroom
  • Three Bedrooms ( Could be Four Bedrooms )
  • Two Bathrooms
  • South Facing Garden
  • Generous Driveway - Plenty of Car Parking
  • Brick Detached Garage

This three bedroom detached home enjoying countryside views is situated in the ever popular village of Stanley with primary school, post office-general store and gastropub. This is a semi rural area with countryside for lovely walks.

The Location - The property's location in the village allows for easy access to the primary school, village hall, shop, pub and also offers delightful walks in the surrounding open countryside. Neighbouring Stanley Common and West Hallam offer a further range of amenities along with Derby city centre also well within reach offering a complete range of services. Activities in the area include golf at Morley Hayes, Horsley Lodge and Breadsall Priory.

Accommodation -

Ground Floor -

Entrance Hall - 5.20 x 1.78 (17'0" x 5'10") - With half glazed entrance door, tile flooring, radiator, understairs storage cupboard and staircase leading to first floor.

Cloakroom - 1.38 x 1.34 (4'6" x 4'4") - With low level WC, corner wash basin, matching tile flooring, heated chrome towel rail/radiator, double glazed window and internal oak veneer door with chrome fittings.

Lounge - 6.73 x 4.38 (22'0" x 14'4") - With coving to ceiling, two radiators, double glazed window with aspect to front, double glazed French doors opening into conservatory and internal oak veneer door with chrome fittings.

Conservatory - 2.77 x 2.54 (9'1" x 8'3") - With wood effect floor, radiator, countryside views to rear, double glazed window and double glazed French doors opening onto south facing garden.

Dining Room/Playroom - 5.03 x 2.39 (16'6" x 7'10") - With tile flooring, coving to ceiling, two radiators, double glazed window to front and internal oak veneer door with chrome fittings.

Kitchen - 3.48 x 3.13 (11'5" x 10'3") - With Belfast style sink with period style mixer tap, fitted base cupboards with granite worktops, range style cooker, extractor hood, slimline dishwasher, fridge, tile flooring with electric underfloor heating, spotlights to ceiling, countryside views to rear, double glazed window and radiator.

Utility Room - 3.18 x 1.67 (10'5" x 5'5") - With single sink with hot and cold tap, matching base units, matching granite worktops, plumbing for automatic washing machine, space for fridge/freezer, tile flooring, radiator, wall mounted central heating boiler, spotlights to ceiling, double glazed window to side and double glazed door giving access to south facing garden.

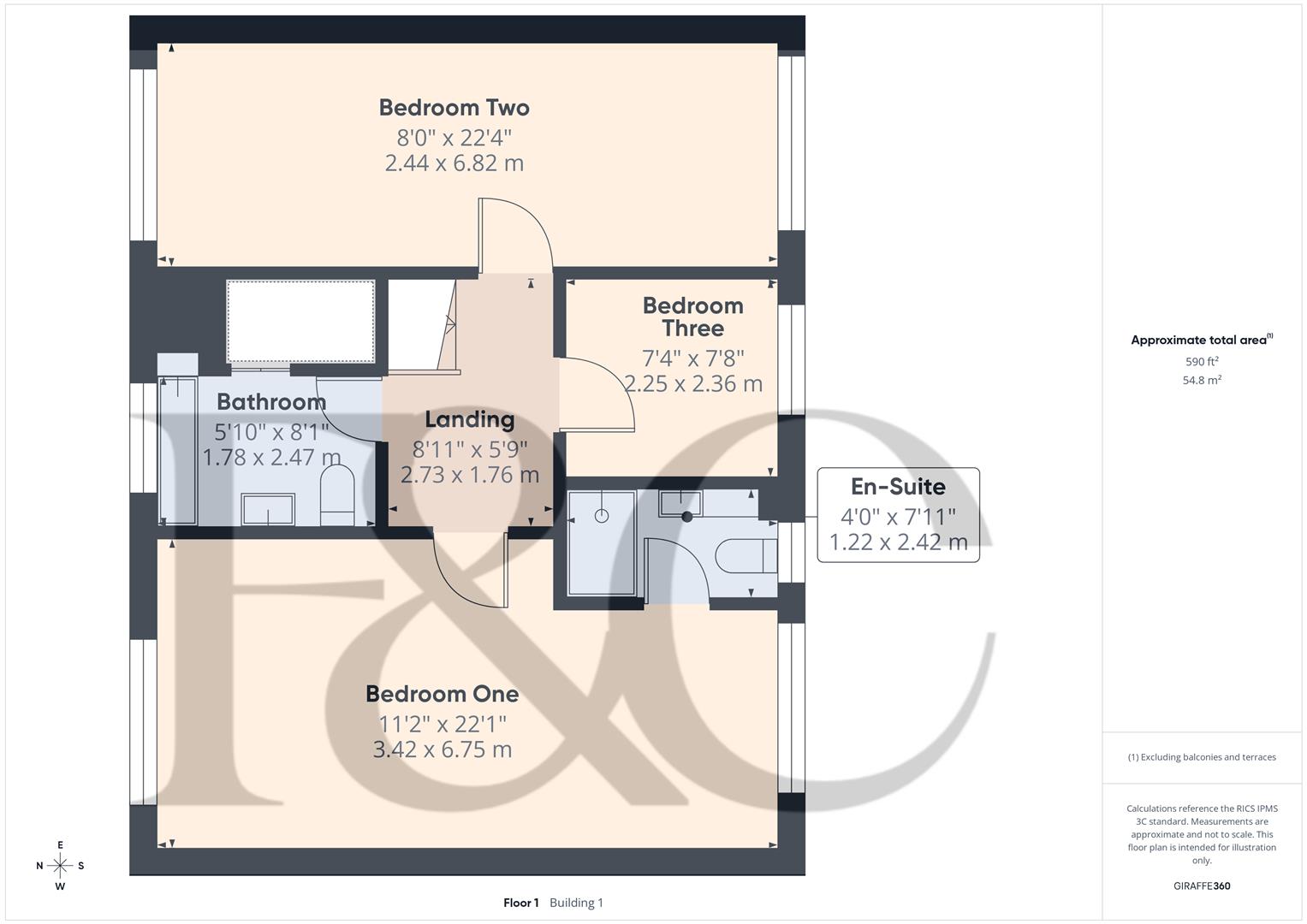
First Floor Landing - 2.73 x 1.76 (8'11" x 5'9") - With access to roof space via loft ladder with some boards for storage, insulation and light.

Bedroom One - 6.75 x 3.42 (22'1" x 11'2") - (This bedroom could be split into two to create a fourth bedroom if required)

Again, enjoying a dual aspect with two radiators, double glazed window to front, countryside views to rear, double glazed window and internal oak veneer door with chrome fittings.

En-Suite - 2.42 x 1.22 (7'11" x 4'0") - With separate shower cubicle with shower, wash basin, low level WC, tile splashbacks, tile flooring, heated chrome towel rail/radiator, double glazed window to rear and internal oak veneer door with chrome fittings.

Bedroom Two - 6.82 x 2.44 (22'4" x 8'0") - With a dual aspect, two radiators, spotlights to ceiling, double glazed window to front, double glazed window to rear, countryside views and internal oak veneer door with chrome fittings.

Bedroom Three - 2.36 x 2.25 (7'8" x 7'4") - With radiator, countryside views to rear, double glazed window and internal oak veneer door with chrome fittings.

Family Bathroom - 2.47 x 1.78 (8'1" x 5'10") - With bath, pedestal wash handbasin, low level WC, tile flooring, heated chrome towel rail/radiator, shelving, built-in cupboard housing the hot water cylinder and also providing storage, double glazed window to front and internal oak veneer door with chrome fittings.

Front Garden - The property is set back from the pavement edge behind a well-stocked fore-garden with shrubs, plants, trees and fencing.

Rear Garden - To the rear of the property is a private, south facing garden backing onto open fields. The garden is mainly laid to lawn with Indian stone patio, shrubs, gravel beds, tree and timber shed.

Generous Driveway - The property benefits from a generous, tarmac driveway providing car standing spaces for approximately four/five cars and leads to a detached, brick garage.

Detached Brick Garage - 5.64 x 2.85 (18'6" x 9'4") - With power, lighting and up and over front door.

Council Tax Band - D - Erewash Council

Property Ref: 34482430

Share:

Similar Properties

Church Close, Smalley, Ilkeston

5 Bedroom Detached House | £410,000

Nestled in the charming village of Smalley, this well-proportioned detached family home offers a perfect blend of comfor...

Denby Village, Derbyshire

4 Bedroom Detached House | Offers Over £400,000

GREAT FAMILY HOME - Nestled in the charming Denby Village, Derbyshire, this delightful detached house offers a perfect b...

Devonshire Avenue, Allestree, Derby

3 Bedroom Semi-Detached House | £400,000

Located on Devonshire Avenue in Allestree, this immaculate extended three bedroom semi-detached house offers a delightfu...

The Gables, Chase Farm, Ambergate, Derbyshire

4 Bedroom House | Offers in region of £419,500

This is a stylish contemporary FOUR bedroom and THREE bathroom corner house with multiple car parking spaces offering a...

Cavendish Avenue, Allestree, Derby

3 Bedroom Detached House | Offers in region of £425,000

A charming, three bedroom, detached home of style and character with south facing garden located just off Duffield Road,...

Warwick Gardens, Belper, Derbyshire

4 Bedroom Detached House | Offers in region of £425,000

GREAT FAMILY HOME - This splendid four bedroom extended detached house presents an ideal family home. With an impressive...

Fletcher & Company (Duffield)

Duffield, Derbyshire, DE56 4GD

01332 843390

How much is your home worth?

Use our short form to request a valuation of your property.

Request a Valuation

Mortgage Calculator

Amount Borrowed: £
Total Amount Repayable: £
Total Monthly Payment: £
©2026 The Guild of Property Professionals. All rights reserved. Terms and Conditions | Privacy Policy | Cookie Policy | Complaints Policy | Members Login
The Guild of Property Professionals Trading Address: 121 Park Lane, London W1K 7AG. GPEA Limited. Registered in England & Wales.  Company No: 02819824.  Registered Office Address: 2 St. Stephen's Court, St. Stephen's Road, Bournemouth, Dorset, England, BH2 6LA.  VAT Registration No: 576 8795 61
Book a Property Valuation Update Cookies Preferences