Hardwick House, Mount Pleasant, Stocksfield

£695,000

4 Bedroom Detached House for sale in Stocksfield

2 4 4
  • DETACHED HOUSE RENOVATED TO AN EXCEPTIONALLY HIGH STANDARD
  • FOUR BEDROOMS & FOUR BATHROOMS
  • KITCHEN AND PREP ROOM
  • OPEN PLAN LIVING AND ADDITIONAL SNUG
  • LAUNDRY ROOM AND BOILER ROOM
  • UNDER FLOOR HEATING THROUGHTOUT
  • LANDSCAPED REAR GARDEN
  • BREATHTAKING VIEWS

This exquisite detached house offers a perfect blend of modern luxury and comfort. Recently renovated to an exceptional standard, the property boasts four spacious bedrooms, three of which are accompanied by its own en-suite bathroom, ensuring privacy and convenience for all residents.

As you enter, you are greeted by an elegantly designed reception room, ideal for both entertaining guests and enjoying quiet family time. The heart of the home is undoubtedly the stunning kitchen, which is complimented by a practical prep room, making meal preparation a delight. Additionally, the property features a dedicated boiler room and a laundry room, enhancing the functionality of the space.

One of the standout features of this home is the underfloor heating that runs throughout, providing a warm and inviting atmosphere during the colder months. The property also offers breathtaking views, allowing you to enjoy the beauty of the surrounding landscape from the comfort of your own home.

This remarkable residence is perfect for families seeking a modern lifestyle in a tranquil setting. With its generous living spaces and thoughtful design, it truly is a home that caters to all your needs. Don't miss the opportunity to make this stunning property your own.

WHAT3WORDS: inferior, blanket,aunts

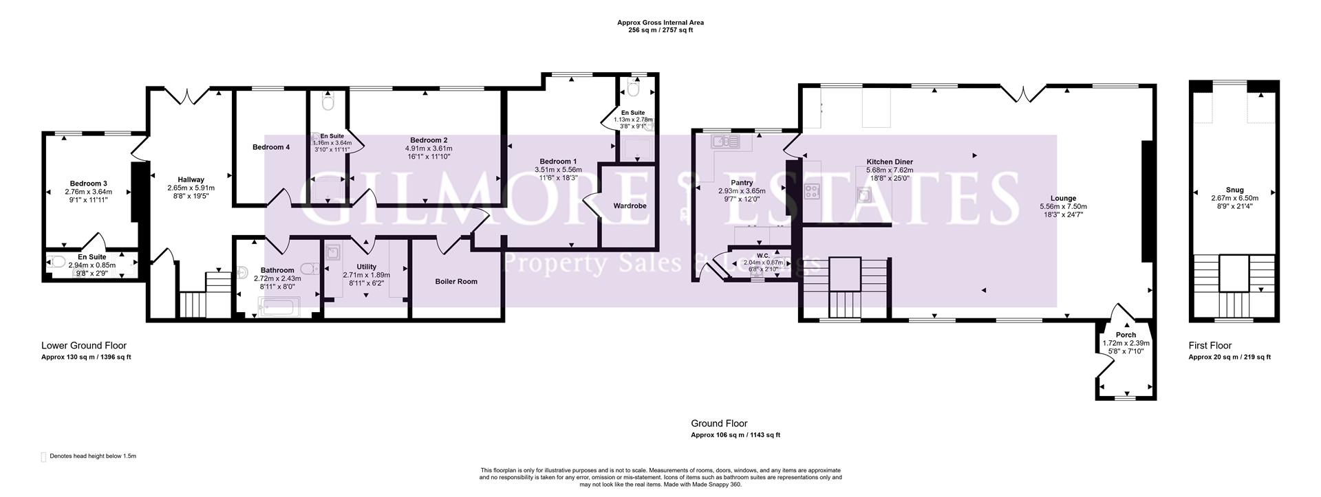
Entrance Porch - 2.69 x 2.01 (8'9" x 6'7") - Entrance door to porch, Upvc window to front aspect, tiled flooring.

Reception Room - 7.71 x 11.63 (25'3" x 38'1") - Stunning views from all rear windows and doors. Open plan lounge, kitchen and dining room, large media wall with inset feature electric fire, bespoke cupboards, Upvc French doors to Juliette Balcony, three Upvc windows to front and rear aspects. base units to kitchen area with granite work surfaces, high level double oven, Induction hob with extractor fan, ceramic sink with mixer tap, wine / beer chiller, wood flooring. Stairs to ground floor and first floor.

Kitchen Prep Room - 5.25 x 3.00 (17'2" x 9'10") - Base units and work surfaces, ceramic sink and drainer, floor to ceiling larder cupboard, inset spotlights, Upvc window to rear aspect, wood flooring and door to front aspect.

Cloaks Wc - 2.25 x 0.90 (7'4" x 2'11") - Upvc window to front aspect WC, pedestal wash hand basin and inset spotlights.

Snug - 2.80 x 7.64 (9'2" x 25'0") - Central heating radiator, inset spotlights, Velux Galeria Balcony with amazing views.

Ground Floor - 7.65 x 2.74 (25'1" x 8'11") - Upvc French doors to rear garden, understairs cupboard with inset spotlights.

Boiler Room - 2.86 x 2.80 (9'4" x 9'2") - Wall mounted boiler, hot water cylinder, and drying rack.

Laundry Room - 2.63 x 2.97 (8'7" x 9'8") - Laminate work surfaces, plumbed for automatic washing machine and dryer, bespoke shelving, drying rack, stainless steel sink and drainer with mixer tap.

Bedroom One - 4.33 x 5.40 (14'2" x 17'8") - Upvc window to rear aspect, inset spotlights.

Walk In Wardrobe - 2.12 x 2.71 (6'11" x 8'10") - Inset spotlights and hanging rail.

Ensuite - 1.34 x 2.90 (4'4" x 9'6") - Shower cubicle, WC, pedestal wash hand basin, chrome towel rail, tiled splashbacks. extractor fan and inset spotlights.

Bedroom Two - 4.15 x 4.95 (13'7" x 16'2") - Two Upvc windows to rear aspect, inset spotlights.

Ensuite - 1.30 x 3.66 (4'3" x 12'0") - Shower cubicle, WC, pedestal wash hand basin, chrome towel rail, tiled splashbacks and extractor fan.

Bedroom Three - 3.74 x 3.71 (12'3" x 12'2") - Two Upvc windows to rear aspect, inset spotlights.

Ensuite - 1.01 x 3.05 (3'3" x 10'0") - Shower cubicle, WC, pedestal wash hand basin, chrome towel rail, inset spotlights and tiled splashbacks.

Bedroom Four - 3.81 x 2.31 (12'5" x 7'6") - Upvc window to rear aspect.

Bathroom - 2.58 x 2.81 (8'5" x 9'2") - Panelling to feature wall, free standing bath, WC, pedestal, wash hand basin, inset spotlights.

Garage - Double garage with electric roller door and electric car charging point.

Gardens - Landscaped gardens to the rear with stunning uninterupted views of the valley, gravelled patio, paved patio and outdoor kitchen and bar area, large lawn.

Property Ref: 34340866

Share:

Similar Properties

Castlehill Cottages, Wylam

3 Bedroom Semi-Detached House | £450,000

Welcome to this charming property located in the picturesque village of Wylam. This delightful semi-detached house, buil...

New Ridley Road, Stocksfield

4 Bedroom Detached Bungalow | Offers Over £400,000

Situated in the village of Stocksfield, this delightful four-bedroom detached bungalow on New Ridley Road offers a perfe...

Greenwell Drive, Castlefields, Prudhoe, Northumberland

5 Bedroom Detached House | Guide Price £395,000

This impressive detached house on Greenwell Drive offers a perfect blend of comfort and style. With four spacious bedroo...

Gilmore Estates (Prudhoe)

Prudhoe, Northumberland, NE42 5PU

01661 831224

How much is your home worth?

Use our short form to request a valuation of your property.

Request a Valuation

Mortgage Calculator

Amount Borrowed: £
Total Amount Repayable: £
Total Monthly Payment: £
©2026 The Guild of Property Professionals. All rights reserved. Terms and Conditions | Privacy Policy | Cookie Policy | Complaints Policy | Members Login
The Guild of Property Professionals Trading Address: 121 Park Lane, London W1K 7AG. GPEA Limited. Registered in England & Wales.  Company No: 02819824.  Registered Office Address: 2 St. Stephen's Court, St. Stephen's Road, Bournemouth, Dorset, England, BH2 6LA.  VAT Registration No: 576 8795 61
Book a Property Valuation Update Cookies Preferences