Whitfield Road, Stockton-On-Tees, TS20

Offers in excess of
£180,000
SSTC
This property listing is now SSTC

2 Bedroom End of Terrace House for sale in Stockton-On-Tees

1 2 2
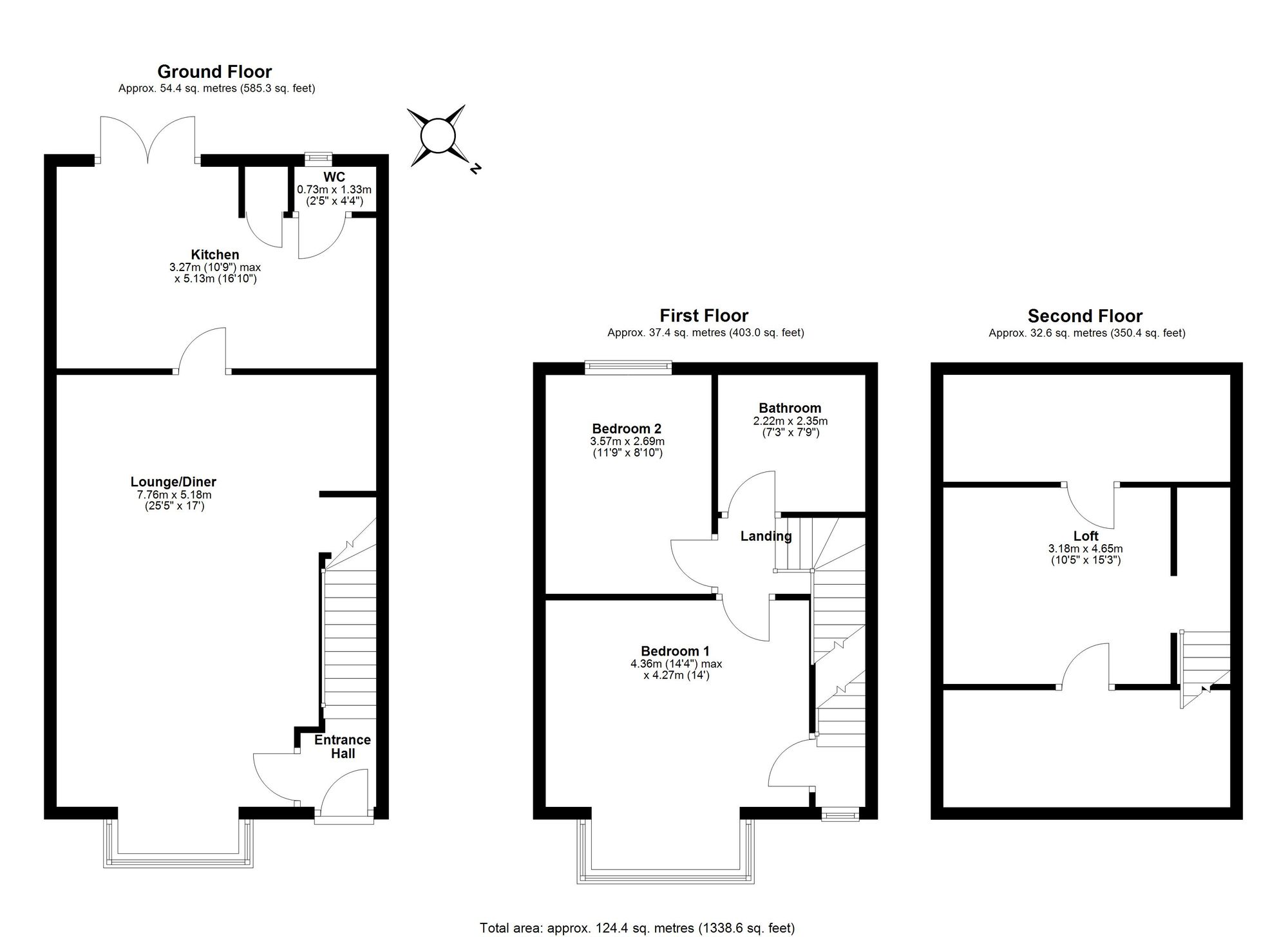
  • EXTENDED Two Bedroom Bay Fronted End Terrace
  • Modern Interior Throughout
  • South West Facing Rear Garden
  • Driveway
  • Gas Central Heating & UPVC Double Glazing
  • EPC Rating: C

This beautifully presented extended two-bedroom, two-bathroom end of terrace house situated just off Junction Road In Norton, offers spacious open plan living, blending modern style with classic features. The inviting reception area boasts elegant herringbone and wood style flooring, decorative fireplaces, and large bay windows, creating a bright and airy atmosphere ideal for both relaxation and entertaining. The modern kitchen is equipped with sleek units, integrated appliances, and benefits from abundant natural light via skylights and French doors, which seamlessly connect the indoor space to the outdoors.

Both bedrooms are enhanced by contemporary decor, generous windows, and a comfortable, cosy feel. The bathrooms are finished with stylish modern fixtures, including heated towel rails and built-in storage, providing both luxury and practicality. Outside, a generous private garden with a well-maintained lawn and patio area offers the perfect setting for outdoor dining or family gatherings, all enclosed by privacy fencing. Off-road parking adds further convenience, making this house an outstanding choice for modern living.

While we have made efforts to ensure the accuracy of the information provided in our sales particulars, please note that we have gathered this information from the seller. Should you require further details or clarification on any specific matter, we kindly request you to contact our office where we are ready to gather evidence or conduct further investigations on your behalf.

It is important to note that Northgate has not tested any of the services, appliances, or equipment within this property. Therefore, we strongly recommend that prospective buyers arrange for their independent surveys or service reports before finalising the purchase of the property.

Energy Efficiency Current: 69.0
Energy Efficiency Potential: 75.0

Important Information

  • This is a Freehold property.
  • This Council Tax band for this property is: B

Property Ref: fdba56d1-cc2f-4058-b797-03fc037c8c96

Share:

Similar Properties

Gleneagles Close, Billingham, TS22

3 Bedroom Semi-Detached House | Offers in excess of £180,000

Thames Road, Billingham, TS22

3 Bedroom Semi-Detached House | Offers in excess of £180,000

Edgley Road, Stockton-On-Tees, TS18

2 Bedroom Semi-Detached Bungalow | Guide Price £180,000

Countisbury Road, Stockton-On-Tees, TS20

3 Bedroom Semi-Detached House | Offers Over £190,000

Atwick Close, Billingham, TS23

3 Bedroom Detached House | Guide Price £200,000

Stapleton Street, Stockton-On-Tees, TS20

3 Bedroom Detached Bungalow | Offers in excess of £220,000

Northgate Estate Agents (Billingham)

8 Town Square, Billingham, County Durham, TS23 2LY

01642 813 222

How much is your home worth?

Use our short form to request a valuation of your property.

Request a Valuation

Mortgage Calculator

Amount Borrowed: £
Total Amount Repayable: £
Total Monthly Payment: £
©2025 The Guild of Property Professionals. All rights reserved. Terms and Conditions | Privacy Policy | Cookie Policy | Complaints Policy | Members Login
The Guild of Property Professionals Trading Address: 121 Park Lane, London W1K 7AG. GPEA Limited. Registered in England & Wales.  Company No: 02819824.  Registered Office Address: 2 St. Stephen's Court, St. Stephen's Road, Bournemouth, Dorset, England, BH2 6LA.  VAT Registration No: 576 8795 61
Book a Property Valuation Update Cookies Preferences