Ashbourne Road, Cheadle, ST10

£279,950

2 Bedroom Detached Bungalow for sale in Stoke-On-Trent

2 2 1
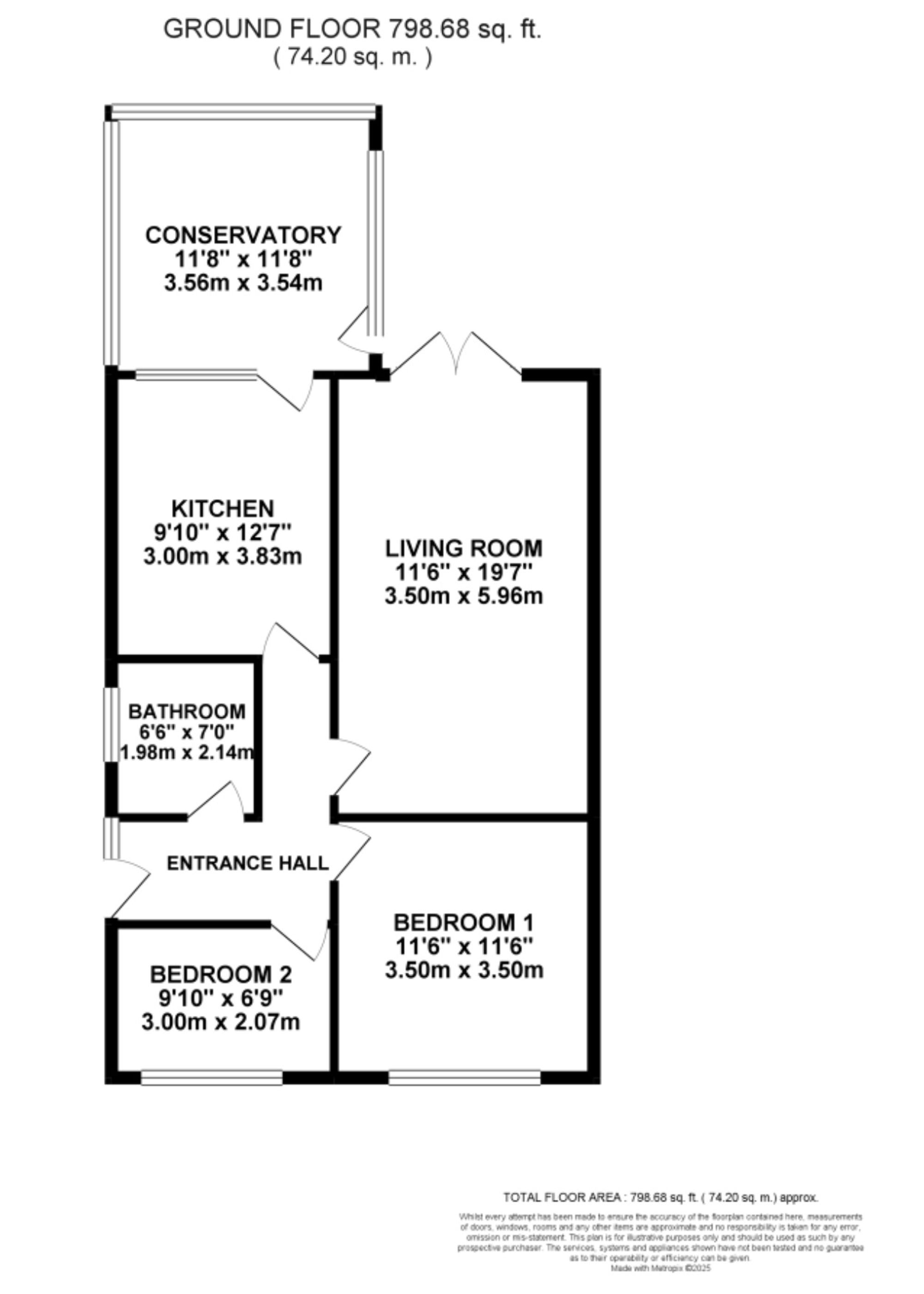
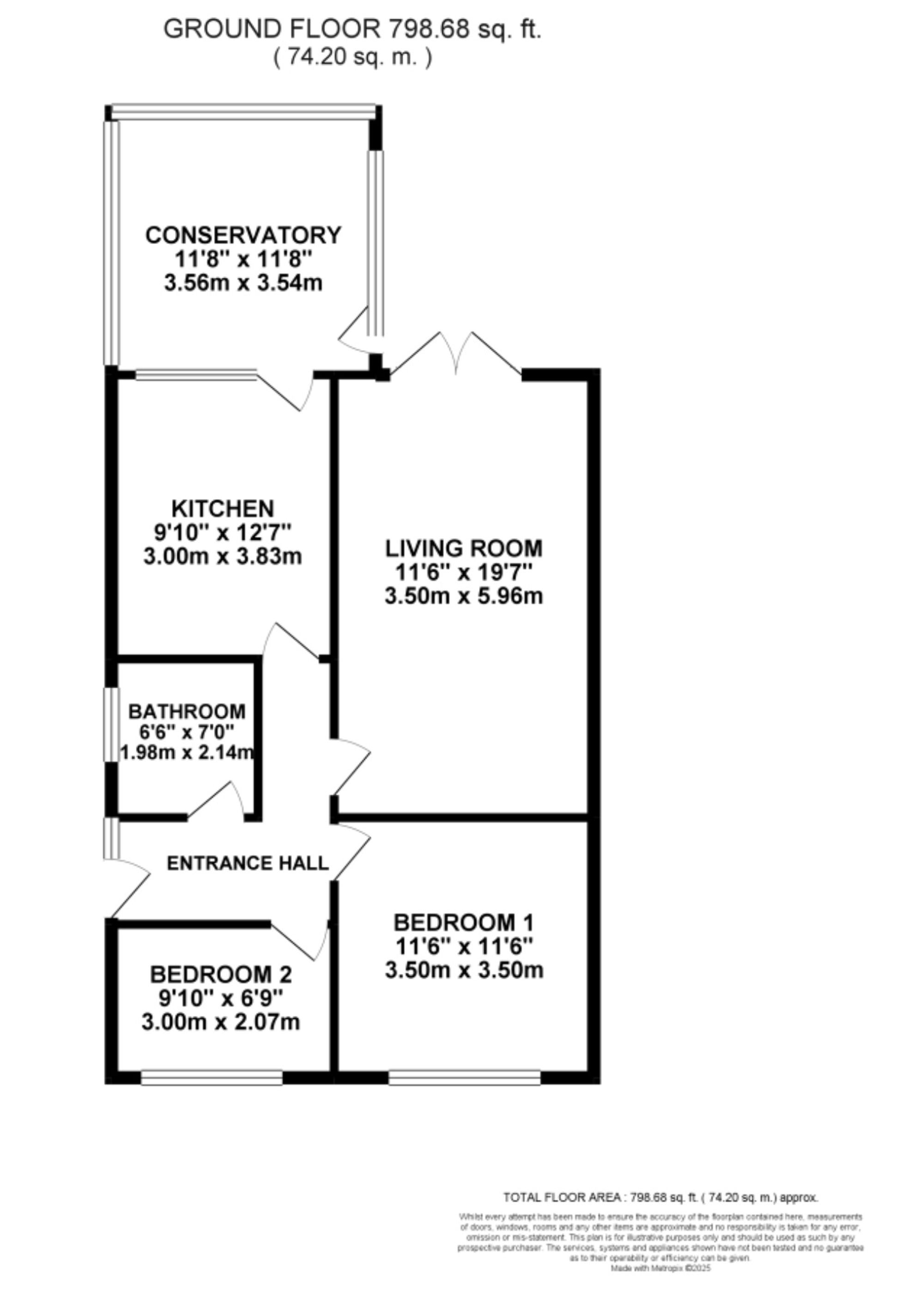
  • A newly updated kitchen sleek white glossy cabinets for all your storage needs topped with a black work top. Featuring under cabinet lighting and room for a breakfast table.
  • Two spacious double bedrooms.
  • Two paved driveways and two gardens, a mixture of patio and lush green lawn bordered with mature shrubs.
  • A conservatory to relax and enjoy your morning brew with views of the garden and beyond.
  • Situated in the beating heart of Cheadle where you will find modern convenience such as shops, supermarkets and eateries all at your fingertips.

Set sail on your new adventure and drop hook on Ashbourne Road. This beautiful bungalow is situated in the beating heart of Cheadle, where you will find modern convenience such as shops, supermarkets and eateries all at your fingertips. This property boasts tall ceilings throughout, featuring two double bedrooms, light and bright thanks to the large windows. A family bathroom serves the home. The lounge is spacious featuring a fire surround for that cosy touch, a chandelier for some modern glam and bright double doors that open on to the garden beyond. At the heart of the bungalow, you have the kitchen. Recently updated with sleek white glossy cabinets for all your storage needs topped with a black work top. Under cabinet lighting and room for a breakfast table, the perfect space to cook up a happy storm. For further relaxation you have the conservatory that basks in natural light, sip your favourite tipple and take in the gorgeous scenery. In addition, this bungalow boasts a versatile boarded out loft, perfect for that extra space. For parking this bungalow boasts not one, but two driveways, perfect for multiple vehicles. If that wasn’t luxurious enough this property also has two gardens. The perfect combination of paving and lush green manicured lawn bordered with walls and mature shrubs. Book your viewing today and let the adventure begin.

Energy Efficiency Current: 59.0
Energy Efficiency Potential: 82.0

Important Information

  • This is a Freehold property.
  • This Council Tax band for this property is: C

Property Ref: 79686344-a924-41af-8ffb-26b064067512

Share:

Similar Properties

Saltersford Lane, Alton, ST10

3 Bedroom Semi-Detached House | Offers Over £275,000

“Chestnuts roasting on an open fire…” This charming three-bedroom home embodies warmth, comfort, and countryside living.

Rakeway Road, Cheadle, ST10

3 Bedroom Semi-Detached House | £275,000

Holy Moley! What a Home! Burrow on through, and you’ll find this house opens right up, spacious, full of character, and...

Glebe Close, Blythe Bridge, ST11

3 Bedroom Detached House | £275,000

Trimpos, Cheadle, ST10

2 Bedroom Detached House | Offers in region of £290,000

Charming 2-bed detached cottage nestled in scenic countryside in Cheadle. Gorgeous lake views, wraparound gardens, drive...

Tunnicliffe Close, Stoke-On-Trent, ST3

3 Bedroom Detached House | Offers in region of £295,000

Ready to move in! 3-bed detached bungalow on Tunnicliffe Close. Bright open-plan living, modern kitchen, 3 double bedroo...

Wood Avenue, Kingsley, ST10

3 Bedroom Semi-Detached House | Offers in excess of £295,000

Peter rabbits dream- a South facing garden with veg/fruit beds and lush lawn..Semi detached home with garage/driveway an...

James Du Pavey Estate Agents (Cheadle)

Cheadle, Staffordshire, ST10 1UY

01538711400

How much is your home worth?

Use our short form to request a valuation of your property.

Request a Valuation

Mortgage Calculator

Amount Borrowed: £
Total Amount Repayable: £
Total Monthly Payment: £
©2025 The Guild of Property Professionals. All rights reserved. Terms and Conditions | Privacy Policy | Cookie Policy | Complaints Policy | Members Login
The Guild of Property Professionals Trading Address: 121 Park Lane, London W1K 7AG. GPEA Limited. Registered in England & Wales.  Company No: 02819824.  Registered Office Address: 2 St. Stephen's Court, St. Stephen's Road, Bournemouth, Dorset, England, BH2 6LA.  VAT Registration No: 576 8795 61
Book a Property Valuation Update Cookies Preferences