Stallington Road, Blythe Bridge, ST11

£850,000

7 Bedroom Detached House for sale in Stoke-On-Trent

3 7 3
  • Detached Grade II listed home set in the peaceful village of Stallington within easy reach of schools, shops, supermarkets, eateries, Alton Towers, and easy commuter links via A50, A34, A500, and...
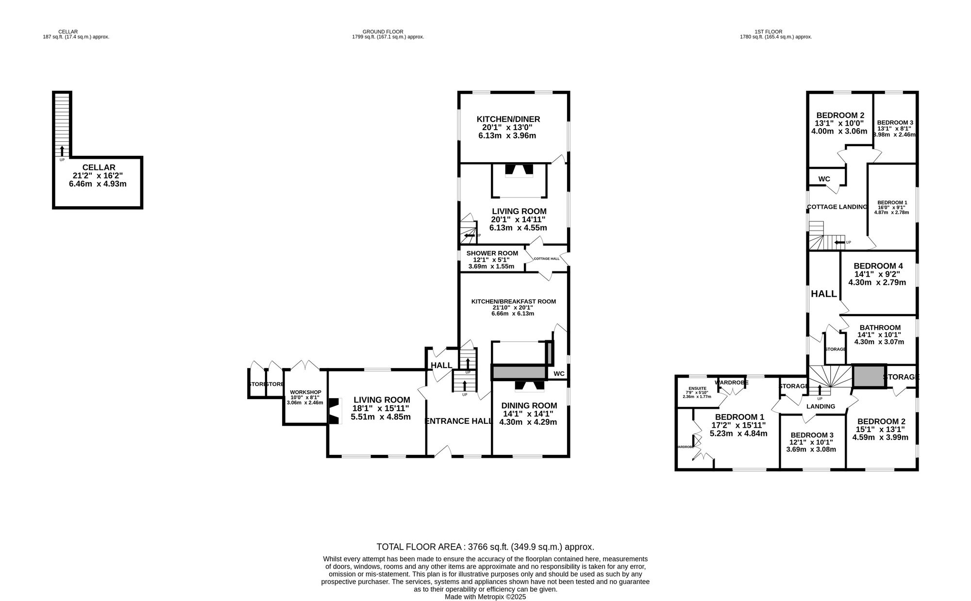
  • The main residence offers an 18th century Georgian frontage with 4 double bedrooms, including a master with en suite, a family bathroom, two generous reception rooms, plus a contemporary kitchen.
  • To the rear is a traditional 17th century self-contained cottage currently used as a successful holiday let with a kitchen/diner, living room, three double bedrooms, shower room, and separate entr...
  • The cottage offers versatility as a successful rental, housing for multigenerational living, private guest house, business headquarters, treatment space, or reconnect to the main house (STNPP)
  • Sitting on a sizeable 0.47-acre plot accessed via electric gates, offering ample off-road parking, sweeping lawns, mature hedging, housing for a hot tub, and workshop and coal/wood store

Stallington Hall Farm is a truly remarkable period home that effortlessly blends historic charm with stylish, modern living. Set in the heart of the sought-after village of Stallington and occupying a generous 0.47-acre plot, this Grade II listed residence offers a rare chance to own a piece of architectural heritage — with origins dating back to the 16th and 17th centuries. The main house is an elegant double-fronted Georgian property, beautifully presented throughout. Step into the bright and welcoming entrance hall, which flows into a spacious living room complete with a striking feature fireplace — an ideal place for the whole family to relax. Opposite, a dual-aspect dining room provides a flexible space perfect for entertaining guests, creating a cinema room, or setting up a work-from-home office. At the heart of the home is the impressive kitchen, combining classic style with contemporary convenience. It features high-quality cabinetry, a generous island with storage and a breakfast bar, and a range of integrated appliances, including a dishwasher, fridge, freezer, and a twin-oven Rayburn. A downstairs W/C and a large cellar offering excellent storage complete the ground floor. Upstairs, the generous master bedroom includes built-in wardrobes and a private en suite shower room. Three further double bedrooms offer ideal space for a growing family, guests, or those who value room to spread out. The stylish family bathroom includes a freestanding roll-top bath, W/C, and twin sinks.

The Cottage - Adjoining the main residence is a generous and characterful three-bedroom cottage, currently operating as a highly rated holiday let. Whether you're looking for an ongoing income stream or something more personal, this self-contained space offers exceptional flexibility. It could continue as a successful rental, become an independent home for extended family, serve as a private guest house, creative studio, business headquarters, or therapy or treatment space, or even be reconnected to the main house to create one expansive residence (subject to necessary permissions). With its own entrance, shower room, living room with inglenook fireplace, open-plan kitchen/dining/office space, and further WC, the possibilities are endless. Approached via electric gates, the property enjoys a large driveway with ample off-road parking. The beautifully landscaped gardens are a standout feature — with rolling lawns, mature planting, multiple seating areas, and a real sense of privacy and tranquillity. Off the main residence you have a workshop, a coal store and a wood store. Plus a further detached space that currently houses a hot tub. Surrounded by beautiful countryside and scenic walks, it’s an ideal setting for those seeking a slower pace of life without sacrificing connectivity. The nearby towns of Blythe Bridge and Stone provide a wide range of shops, cafes, and essential services, while excellent transport links — including local train stations and easy access to the A50, A500, and M6 — make commuting to Alton Towers, Stoke-on-Trent, Stafford, Derby, or even further afield both quick and convenient. Families will appreciate the selection of well-regarded local schools, while outdoor enthusiasts will enjoy the proximity to parks, walking trails, and golf courses. Stallington offers a real sense of community, making it a wonderful place to settle down and call home.

Important Information

  • This is a Freehold property.
  • This Council Tax band for this property is: F

Property Ref: f1292195-1ad5-4d75-bc4a-f45eff69cf50

Share:

Similar Properties

Barlaston Old Road, Trentham, Stoke on Trent, ST4 8HJ

4 Bedroom Detached House | Offers in region of £850,000

Immaculate detached Gentleman's residence on a 0.36-acre plot in a prime location near Trentham Golf Club. Sympathetical...

Top Road, Acton Trussell, ST17

6 Bedroom Detached House | Offers in excess of £800,000

Step into this elegant six-bedroom family home in Acton Trussell. From the spacious living area to the luxurious master...

Sandy Lane, Newcastle, ST5

4 Bedroom Detached House | Offers in excess of £795,000

The secrets out on Sandy Lane… Tucked behind a curtain of leafy green and just enough mystery to make everyone pause wit...

Airdale Road, Stone, ST15

4 Bedroom Detached House | £895,000

Architect design unique detached home in prime location in Stone. 4 beds, 3 baths, spacious open plan living. Beautiful...

Sandy Lane, Newcastle, ST5

6 Bedroom Detached House | Offers in excess of £895,000

Modern 6-bed on sought-after Sandy Lane. Spacious living areas, garden room, 5 ensuites, lush garden, driveway, double g...

Stone Road, Tittensor, ST12

5 Bedroom Detached House | Offers Over £950,000

Generous plot, historical caves, expansive living space, purpose-built annex, double garage and playground!!! I mean, wh...

James Du Pavey Estate Agents (Stone)

Christchurch Way, Stone, Staffordshire, ST15 8BZ

01785 814917

How much is your home worth?

Use our short form to request a valuation of your property.

Request a Valuation

Mortgage Calculator

Amount Borrowed: £
Total Amount Repayable: £
Total Monthly Payment: £
©2025 The Guild of Property Professionals. All rights reserved. Terms and Conditions | Privacy Policy | Cookie Policy | Complaints Policy | Members Login
The Guild of Property Professionals Trading Address: 121 Park Lane, London W1K 7AG. GPEA Limited. Registered in England & Wales.  Company No: 02819824.  Registered Office Address: 2 St. Stephen's Court, St. Stephen's Road, Bournemouth, Dorset, England, BH2 6LA.  VAT Registration No: 576 8795 61
Book a Property Valuation Update Cookies Preferences