Nantwich Road, Audley, ST7

Offers in excess of
£200,000
SSTC
This property listing is now SSTC

3 Bedroom End of Terrace House for sale in Stoke-On-Trent

2 3 1
  • Spacious Living Areas – Generous living and dining rooms, ideal for entertaining or family life.
  • Three Bedrooms – Two doubles (one with built-in wardrobes, one with a shower) and a single bedroom.
  • Multi-Level Garden – Includes a patio, decked terrace, lawn area, and greenhouse.
  • Ample Storage – Built-in wardrobes, under-stairs storage, and cabinets in the kitchen.
  • Great Potential – The property offers scope for modernisation and personalisation.

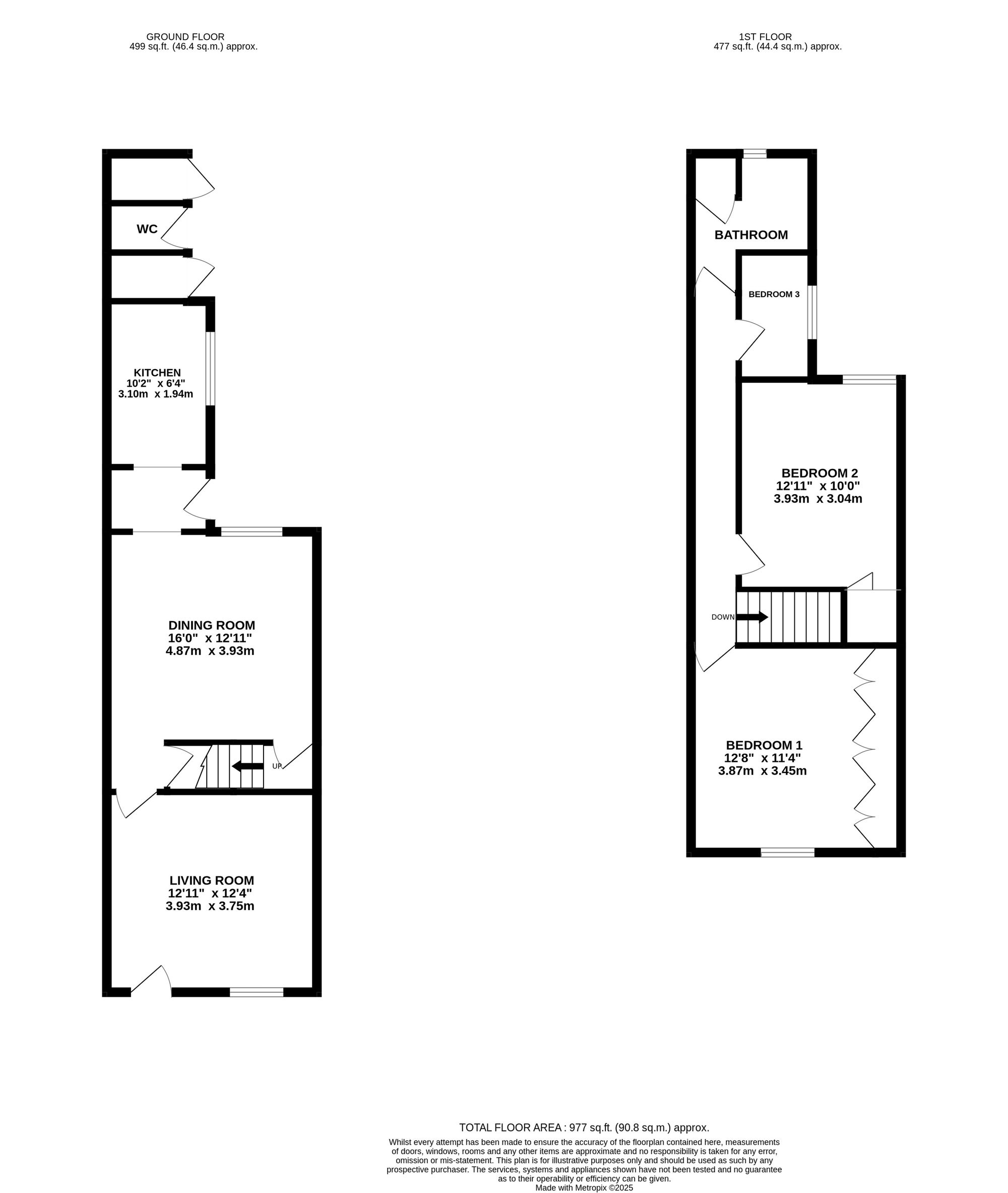
Nestled in the village of Audley, this delightful three-bedroom home offers generous living space, a unique layout, and fantastic potential for those looking to make a property their own. Offered with no onward chain, it presents an excellent opportunity for a smooth and speedy purchase.

The living room is bright and welcoming, featuring a large front-facing window that fills the space with natural light, complemented by a cosy fireplace – ideal for relaxing evenings. The separate dining room is another generously sized space, perfect for hosting family meals or entertaining guests.

The kitchen is well-equipped with ample storage units, an integrated oven and gas hob, and space for a fridge-freezer. There’s also the added benefit of under-stairs storage, providing practical convenience.

Upstairs, the property offers three bedrooms. Bedroom one is a spacious double with built-in wardrobes stretching across one wall, leaving plenty of room for additional furnishings. Bedroom two is another generously sized double, with the added feature of a shower discreetly tucked into one corner. Bedroom three is a smaller single room, ideal for use as a child’s bedroom, home office, or nursery. The main bathroom includes a bathtub with an overhead shower, offering both practicality and comfort.

Externally, the home continues to impress with a multi-level garden. Directly outside the back door is a paved patio area, which steps up to a decked terrace – perfect for outdoor dining and relaxing. Beyond this, an arched walkway leads to a grassy lawn space with a greenhouse, ideal for gardening enthusiasts. There is also an external WC with two shed spaces on either side, providing useful additional storage.

While the property has plenty of potential, it does require some updating – offering a fantastic opportunity for buyers to personalise and add value. With no onward chain, this charming home is ready for its next chapter without delay.

Location:

Audley is a well-established village in Staffordshire, offering a strong sense of community along with a range of local amenities including shops, pubs, schools, and parks. With excellent road links to nearby towns such as Newcastle-under-Lyme and Crewe, as well as easy access to the M6 motorway, it’s a convenient location for both commuters and families. Surrounded by scenic countryside, Audley also offers plenty of opportunities for outdoor activities and peaceful village living.

Energy Efficiency Current: 59.0
Energy Efficiency Potential: 79.0

Important Information

  • This is a Freehold property.
  • This Council Tax band for this property is: B

Property Ref: 67ff4cc8-5b45-4643-8278-fa9d9e39e680

Share:

Similar Properties

Woodford Close, Crewe, CW2

3 Bedroom Semi-Detached House | £200,000

Fully updated 3-bed semi-detached home in Crewe. Modernised with new windows, carpets, heating, and rewiring. Spacious l...

Meeanee Drive, Nantwich, CW5

2 Bedroom Semi-Detached House | £199,000

Charming 2-bed bungalow, near Nantwich town centre. Spacious living room, well-equipped kitchen, family bathroom, large...

Hargrave Avenue, Crewe, CW2

3 Bedroom Semi-Detached House | £195,000

Beautifully updated 3-bed family home in sought-after location, close to amenities. Modernised interior, contemporary ki...

Beech Avenue, Woore, CW3

3 Bedroom Semi-Detached House | £210,000

Nestled within a tranquil cul-de-sac on a modern development in the sought after village of Woore, this three bedroom se...

Green Lane, Willaston, CW5

3 Bedroom Semi-Detached Bungalow | £210,000

Charming 3-bed semi-bungalow in Willaston. Spacious plot with gardens, off-road parking. Potential to personalise. Easy...

Blackthorn Close, Edleston, CW5

2 Bedroom Terraced House | Offers in excess of £210,000

2-bed terrace. Spacious light filled interior with modern design. Peaceful garden. Located in historic Nantwich, Cheshir...

James Du Pavey Estate Agents (Nantwich)

52 Pillory St, Nantwich, Cheshire, CW5 5BG

01270 445678

How much is your home worth?

Use our short form to request a valuation of your property.

Request a Valuation

Mortgage Calculator

Amount Borrowed: £
Total Amount Repayable: £
Total Monthly Payment: £
©2025 The Guild of Property Professionals. All rights reserved. Terms and Conditions | Privacy Policy | Cookie Policy | Complaints Policy | Members Login
The Guild of Property Professionals Trading Address: 121 Park Lane, London W1K 7AG. GPEA Limited. Registered in England & Wales.  Company No: 02819824.  Registered Office Address: 2 St. Stephen's Court, St. Stephen's Road, Bournemouth, Dorset, England, BH2 6LA.  VAT Registration No: 576 8795 61
Book a Property Valuation Update Cookies Preferences