Sandringham Crescent, Hanford, ST4

Offers in excess of
£210,000
SSTC
This property listing is now SSTC

3 Bedroom Semi-Detached House for sale in Stoke-on-Trent

1 3 1
  • Buyer Incentive Available - please speak to a member of Staff - this Small and select development of just two properties finished to an exacting standard
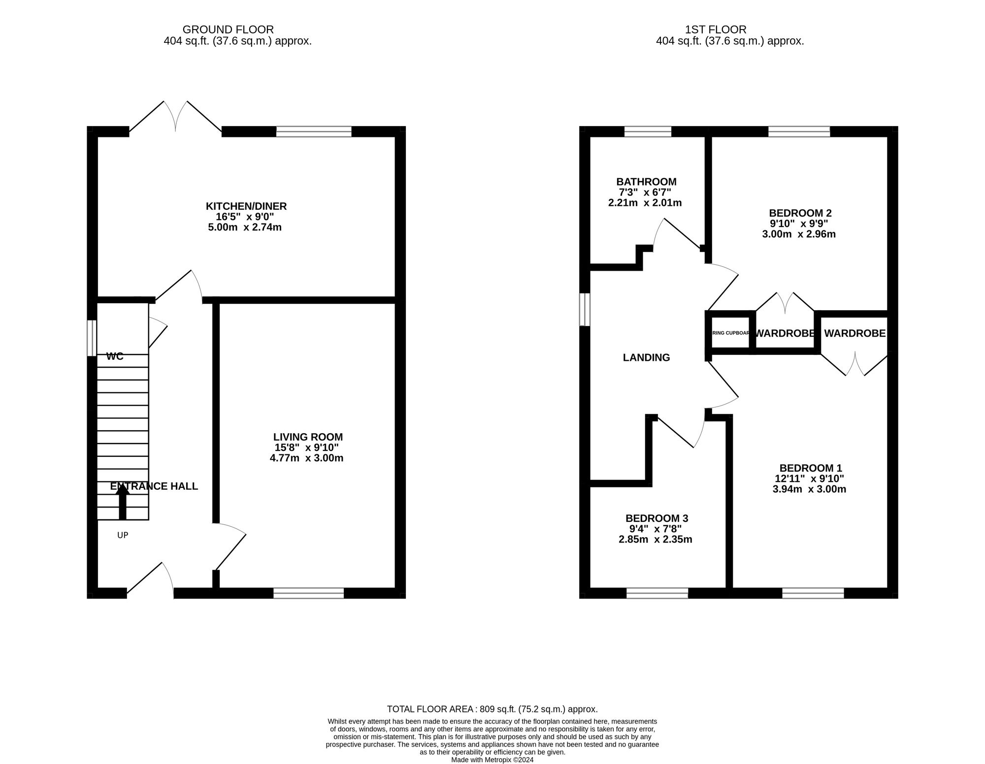
  • Three bedrooms, stylish bathroom and guest cloakroom, living room and kitchen diner
  • Kitchen appliances include fridge freezer, dishwasher, oven, induction hob and cooker hood.
  • Block paved driveway providing off road parking and enclosed west facing rear garden with lawn and patio seating area
  • Lovely features such as underfloor heating, fitted flooring and carpets throughout meaning you're all ready to move in.

** Buyer Incentive Available - Please Speak To A Branch Colleague ** Embrace your inner King and Queen, but instead of moving around in the seasons, forget Balmoral and Buckingham just lay your crown in Sandringham Palace and make it home. This gorgeous new build property is one of only two in this select development and popular location, it offers an excellent opportunity to move straight in without having to do anything other than simply unpack your case. The accommodation is spacious and well appointed, with the luxury of underfloor heating throughout the ground floor, a front facing living room, guest cloakroom, stylish dining kitchen with fitted appliances including a fridge freezer, dishwasher, oven, and induction hob with cooker hood over and having French doors which lead into the rear West facing garden where there is a good size lawn and paved patio, on the first floor there are two good size double bedrooms having built in wardrobes, and a third bedroom with built in storage as well as the lovely bathroom with L shaped bath having shower over, pedestal wash hand basin with storage beneath and W.C. Located in the popular spot of Hanford, you are situated conveniently close to excellent commuter links via the A34 and M6, and there are a great selection of amenities including shops and schools.

Important Information

  • This is a Freehold property.

Property Ref: 347d4585-431c-49c9-a4da-660b944482dd

Share:

Similar Properties

Farm Lea, Hilderstone, ST15

3 Bedroom Semi-Detached House | £210,000

Three-bedroom semi-detached home in peaceful Hilderstone village. Off-road parking, no chain, and potential for personal...

Charolais Crescent, Stoke-On-Trent, ST3

3 Bedroom House | Offers in excess of £210,000

Freshly decorated 3-bed semi with bright living space, conservatory/playroom, low-maintenance garden & garage. Walk to s...

York Street, Stone, ST15

3 Bedroom End of Terrace House | Offers in excess of £210,000

3-bed terrace on York Street. Overlooks Stone Common Plot. Living room with French doors, dining area, kitchen. South-We...

Trent Bridge Close, Stoke-On-Trent, ST4

4 Bedroom End of Terrace House | £215,000

Three storey, four bed town house with Modern kitchen-diner, spacious living area, family bathroom, ensuite shower room,...

Trent Close, Stone, ST15

2 Bedroom Flat | Offers in excess of £220,000

Stunning 2-bed apartment on Trent Close, walking distance to Stone town centre. Spacious living area, dining area and ki...

Taverners Drive, Stone, ST15

3 Bedroom Semi-Detached House | Offers in excess of £220,000

Fantastic home on Taverners Drive near Aston Marina. U-shape kitchen, open-plan living, 3 bedrooms, spacious garden, gar...

James Du Pavey Estate Agents (Stone)

Christchurch Way, Stone, Staffordshire, ST15 8BZ

01785 814917

How much is your home worth?

Use our short form to request a valuation of your property.

Request a Valuation

Mortgage Calculator

Amount Borrowed: £
Total Amount Repayable: £
Total Monthly Payment: £
©2025 The Guild of Property Professionals. All rights reserved. Terms and Conditions | Privacy Policy | Cookie Policy | Complaints Policy | Members Login
The Guild of Property Professionals Trading Address: 121 Park Lane, London W1K 7AG. GPEA Limited. Registered in England & Wales.  Company No: 02819824.  Registered Office Address: 2 St. Stephen's Court, St. Stephen's Road, Bournemouth, Dorset, England, BH2 6LA.  VAT Registration No: 576 8795 61
Book a Property Valuation Update Cookies Preferences