Leigh Furlong Road, Street

Offers Over
£399,950

4 Bedroom Bungalow for sale in Street

2 4 2
  • Spacious kitchen/dining room with modern fitted units and access to the conservatory/utility.
  • Bright triple-aspect sitting room enjoying excellent natural light and access to the front.
  • Four well-proportioned bedrooms arranged over two floors.
  • Ground floor shower room and first floor en suite.
  • Wrap-around garden to the side and rear with patio areas, lawn, mature planting and greenhouse.
  • Driveway parking for multiple vehicles leading to a larger than average garage with electric door, power and light.
  • Roof-mounted photovoltaic solar panels alongside solar thermal panels providing hot water, all fully owned.

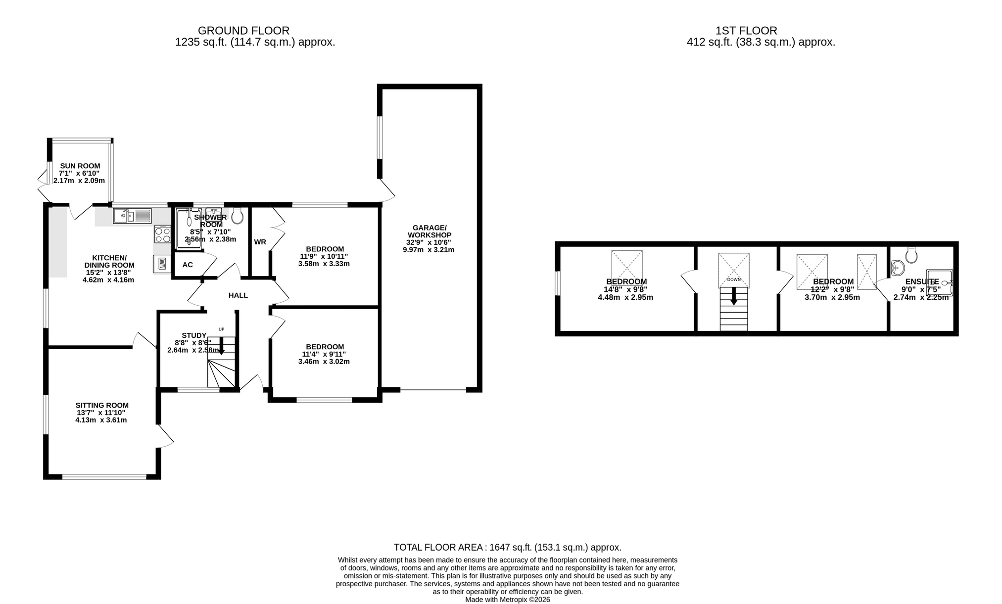
This substantial four-bedroom detached chalet bungalow offers versatile accommodation arranged over two floors, including spacious living areas and well-proportioned bedrooms. The property enjoys gardens to the side and rear with patio and lawn, together with driveway parking for multiple vehicles leading to a larger than average garage. Further benefits include roof-mounted photovoltaic and solar thermal panels, installed and owned outright. The property is available with no onward chain and vacant possession.

Accommodation
Stepping into the property, you are welcomed by a central entrance hallway which provides access to all of the ground floor accommodation and immediately highlights the home’s impressive proportions and practical layout. To the right of the hall are two well-appointed ground floor bedrooms, both light and airy rooms enjoying pleasant natural light. One of the bedrooms benefits from built-in wardrobe storage, providing useful hanging and shelving space. Serving this level is a neatly presented family shower room, fitted with a generous shower enclosure, wash basin with shelving beneath, WC and a useful cupboard housing the boiler.Moving through the hallway you arrive at the spacious kitchen/dining room, a sociable and well-designed space, perfect for modern family living. The kitchen area is fitted with a range of modern wall, base and drawer units, complemented by integrated oven and hob, with additional space provided for a freestanding fridge/freezer. The layout offers ample work surface and storage, making it both practical and stylish. The dining area comfortably accommodates a table and chairs, creating an ideal setting for everyday family meals or entertaining guests. A door from the kitchen leads into the conservatory/utility room, a useful additional space fitted with plumbing for laundry appliances. This room also provides access directly out to the rear garden. From the dining area a door opens into the sitting room, a beautifully bright triple-aspect room flooded with natural light throughout the day, and also benefitting from a door providing access out to the front of the property. Completing the ground floor accommodation is a versatile study area, ideal for those working from home or as use as a hobby room.

The stairs rise to a spacious landing, illuminated by a Velux window which allows natural light to filter into the upper level, with further Velux windows continuing into the bedrooms. From the landing, doors lead to two further double bedrooms, both well-proportioned rooms benefitting from Velux windows and ample eaves storage space, providing useful storage. One of the bedrooms enjoys the added advantage of its own en suite shower room, fitted with a shower enclosure, wash basin and WC.

Outside
The property benefits from a garden extending to the side and rear, providing a pleasant and private outdoor setting. To the side is a paved patio area, ideal for outdoor seating and al fresco dining. From here, the garden opens out to an area of lawn, creating an attractive central space bordered by decorative planting beds with a variety of mature shrubs, flowers and seasonal planting which add colour and interest throughout the year. A further paved patio area can be found towards the rear of the garden, offering additional space for seating or enjoying the sun at different times of the day. There is also a greenhouse and planting area, well suited to those with an interest in gardening or growing produce.

To the front of the property there is an area of gravel edged with established shrubs, designed for ease of maintenance. A driveway provides parking for multiple vehicles and leads to a larger than average garage, fitted with an electric up-and-over door, power and lighting, and a pedestrian door providing access to the rear garden.

Location
Leigh Furlong Road is situated on the south side of Street and is a well-regarded mature road, approached off Middle Leigh and close to amenities. Street is a thriving mid-Somerset town famous as the home of Millfield School and Clarks Shoes. Street offers a good range of shopping facilities including Clarks Village complex of factory shopping outlets, recreational facilities including theatre, tennis, bowls, and both indoor and open-air swimming pools. The historic town of Glastonbury is within 3 miles, the Cathedral City of Wells 9 miles and the nearest M5 interchange at Dunball, Bridgwater is within 14 miles. Bristol, Bath, Taunton and Exeter are each within 33, 33 and 26 miles distant respectively.

Directions
Follow the High Street with The Bear Inn on your left. Continue along the High Street passing Avalon Guns on the left hand side. Turn next left into Stonehill and continue around a left bend. Turn right into Leigh Furlong Road and follow the road around to the left. Number 37 will be found just ahead of you, where the road bears around to the right and will be easily identified by our for sale board.

Material Information
All available property information can be provided upon request from Holland & Odam. For confirmation of mobile phone and broadband coverage, please visit checker.ofcom.org.uk

Identity Verification
To ensure full compliance with current legal requirements, all buyers are required to verify their identity and risk status in line with anti-money laundering (AML) regulations before we can formally proceed with the sale. This process includes a series of checks covering identity verification, politically exposed person (PEP) screening, and AML risk assessment for each individual named as a purchaser. In addition, for best practice, we are required to obtain proof of funds and where necessary, to carry out checks on the source of funds being used for the purchase. These checks are mandatory and must be completed regardless of whether the purchase is mortgage-funded, cash, or part of a related transaction. A disbursement of £49 per individual (or £75 per director for limited company purchases) is payable to cover all aspects of this compliance process. This fee represents the full cost of conducting the required checks and verifications. You will receive a secure payment link and full instructions directly from our compliance partner, Guild365, who carry out these checks on our behalf.

Important Information

  • This is a Freehold property.
  • This Council Tax band for this property is: D

Property Ref: SCJ885512

Share:

Similar Properties

Harvesters Drive, Street

4 Bedroom Detached House | £399,950

We are pleased to bring to market this attractive and well appointed four bedroom home, offering versatile family living...

Greinton Road, Moorlinch

4 Bedroom Detached House | £399,950

Occupying an elevated position in the picturesque village of Moorlinch, Rowan House is a detached four-bedroom home pres...

Northbrook Road, Shapwick

4 Bedroom Semi-Detached House | £399,950

A deceptively spacious Victorian semi-detached house in the popular village of Shapwick, offering four bedrooms, charact...

Goose Lane, Chilton Polden

4 Bedroom Detached House | £399,999

A beautifully converted barn offering characterful accommodation arranged around a private courtyard in the sought-after...

Wood Lane, Stawell

4 Bedroom Semi-Detached House | £400,000

We are pleased to bring to market this superb four bedroom semi-detached home offering spacious and versatile accommodat...

Main Street, Walton

3 Bedroom Semi-Detached House | Offers in excess of £400,000

A rare opportunity to acquire two neighbouring period cottages in the heart of Walton, available together and ideally su...

Holland & Odam (Street)

Street, Somerset, BA16 0BJ

01458 841411

How much is your home worth?

Use our short form to request a valuation of your property.

Request a Valuation

Mortgage Calculator

Amount Borrowed: £
Total Amount Repayable: £
Total Monthly Payment: £
©2026 The Guild of Property Professionals. All rights reserved. Terms and Conditions | Privacy Policy | Cookie Policy | Complaints Policy | Members Login
The Guild of Property Professionals Trading Address: 121 Park Lane, London W1K 7AG. GPEA Limited. Registered in England & Wales.  Company No: 02819824.  Registered Office Address: 2 St. Stephen's Court, St. Stephen's Road, Bournemouth, Dorset, England, BH2 6LA.  VAT Registration No: 576 8795 61
Book a Property Valuation Update Cookies Preferences