High Street, Street

Guide Price
£475,000
SSTC
This property listing is now SSTC

3 Bedroom Semi-Detached House for sale in Street

3 3 3
  • A superb opportunity to acquire a freehold retail unit, previously a bakery, with spacious flat over and cottage
  • Altogether covering in excess of 4,500 sqft of versatile accommodation
  • Flat comprising sitting room, kitchen/diner, bathroom, double bedroom and large attic bedroom
  • Cottage comprising sitting room, kitchen/diner, garden room/bedroom and shower/utility, bedroom and bathroom
  • Boasting sunny garden, ample parking and workshop/garage

A unique opportunity to acquire a spacious retail unit with self-contained flat over and charming cottage tucked away from the High Street with sunny garden, ample parking and garage/workshop. Together covering a generous 4,500 sqft of accommodation, offering endless possibilities for redevelopment (subject to planning permission and necessary consents) or running your own business.

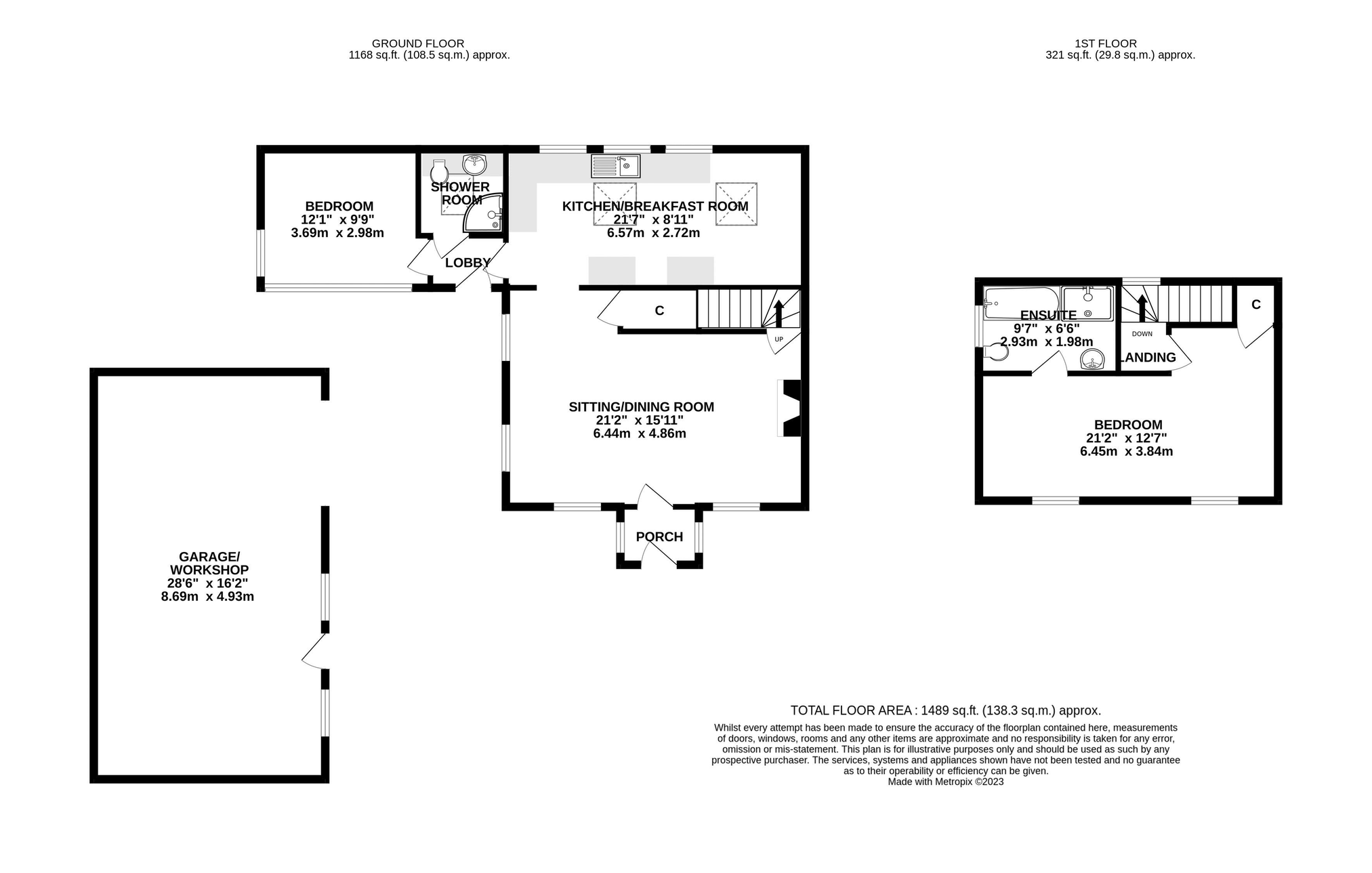
Accommodation
The ground floor of the cottage comprises a spacious sitting room featuring oak flooring, open fire with Victorian cast iron fire surround and french doors opening out on to the garden, flooding the space with natural light and offering a seamless indoor-outdoor flow. The kitchen/dining room is a great size, with ample space for entertaining and cooking, fitted with base, wall and drawer units, sink unit, worktops and space for freestanding appliances. Continue into a rear hall hall where doors open onto the garden and a stylishly appointed utility/shower room which is a practical addition next to the ground floor bedroom which overlooks the garden.
Upstairs, there is a light and airy bedroom, once two rooms, it is now a generous size and benefits from a en-suite bathroom with panelled bath, shower enclosure, wash basin and WC.

Outside
The garden lies to the front and side of the property, and boasts a sunny aspect. Currently laid to lawn and gravel for ease of maintenance with two large greenhouses, perfect for those with green fingers. There is ample off-street parking, as well as an open-fronted garage and workshop with power and light.

Location
Street is a busy town in mid Somerset well known for the good facilities it provides especially shopping with Clarks Village and the High Street, followed by recreational and sports activities at the Victoria Club and the football ground. The historic town of Glastonbury is 2 miles, the Cathedral City of Wells 8 miles and the nearest M5 motorway interchange at Dunball, Bridgwater (Junction 23) is 12 miles. Bristol, Bath, Taunton and Yeovil are approximately 33 miles, 30 miles, 26 miles and 15 miles respectively.

Directions
From the High Street proceed in a westerly direction passing Living Homes on the right, continue until you reach Abbey Garage on the left and Shepherds Bakery is directly opposite on your right.

Material Information
All available property information can be provided upon request from Holland & Odam. For confirmation of mobile phone and broadband coverage, please visit checker.ofcom.org.uk

Identity Verification
To ensure full compliance with current legal requirements, all buyers are required to verify their identity and risk status in line with anti-money laundering (AML) regulations before we can formally proceed with the sale. This process includes a series of checks covering identity verification, politically exposed person (PEP) screening, and AML risk assessment for each individual named as a purchaser. In addition, for best practice, we are required to obtain proof of funds and where necessary, to carry out checks on the source of funds being used for the purchase. These checks are mandatory and must be completed regardless of whether the purchase is mortgage-funded, cash, or part of a related transaction. A disbursement of £49 per individual (or £75 per director for limited company purchases) is payable to cover all aspects of this compliance process. This fee represents the full cost of conducting the required checks and verifications. You will receive a secure payment link and full instructions directly from our compliance partner, Guild365, who carry out these checks on our behalf.

Important Information

  • This is a Freehold property.

Property Ref: 552333_SCJ445326

Share:

Similar Properties

Chapel Hill, Ashcott

3 Bedroom Cottage | £475,000

A superb opportunity to purchase this charming and tastefully presented period property boasting generously proportioned...

Church Lane, Chilton Polden

4 Bedroom Detached Bungalow | £450,000

A detached four-bedroom bungalow set on a generous corner plot in the popular Somerset village of Chilton Polden. This v...

Willmotts Close, Chilton Polden

4 Bedroom Bungalow | £439,950

An excellent opportunity to purchase this beautifully presented and well maintained three bedroom bungalow with the adde...

Riggiston Barns, Walton

3 Bedroom Barn Conversion | Offers Over £500,000

Situated on the edge of the popular village of Walton, this beautifully presented three-bedroom semi-detached converted...

Bath Road, Ashcott

4 Bedroom Semi-Detached House | £575,000

A charming four-bedroom semi-detached village home steeped in character, showcasing exposed wooden beams, low ceilings a...

Pit Hill Lane, Moorlinch

4 Bedroom Character Property | £575,000

A beautiful, characterful Grade II listed thatched cottage with workshops, enclosed garden & development potential. Quin...

Holland & Odam (Street)

Street, Somerset, BA16 0BJ

01458 841411

How much is your home worth?

Use our short form to request a valuation of your property.

Request a Valuation

Mortgage Calculator

Amount Borrowed: £
Total Amount Repayable: £
Total Monthly Payment: £
©2026 The Guild of Property Professionals. All rights reserved. Terms and Conditions | Privacy Policy | Cookie Policy | Complaints Policy | Members Login
The Guild of Property Professionals Trading Address: 121 Park Lane, London W1K 7AG. GPEA Limited. Registered in England & Wales.  Company No: 02819824.  Registered Office Address: 2 St. Stephen's Court, St. Stephen's Road, Bournemouth, Dorset, England, BH2 6LA.  VAT Registration No: 576 8795 61
Book a Property Valuation Update Cookies Preferences