Green Lane, Street

£317,500
SSTC
This property listing is now SSTC

4 Bedroom Semi-Detached House for sale in Street

2 4 2
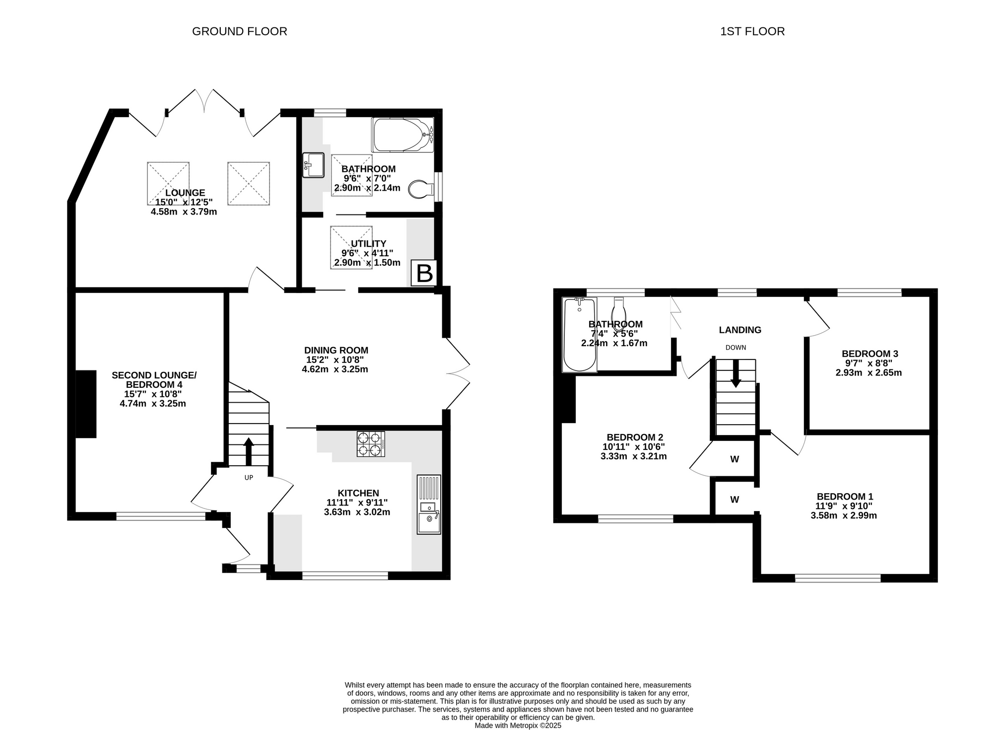
  • Bright and spacious lounge featuring Velux windows, underfloor heating, French doors with 'tilt and turn' side windows that open onto the child and pet garden perfect for relaxing or entertaining.
  • Wrap-around, enclosed gardens with mature, established borders, designed for low-maintenance living, with a private decked area to the rear—perfect for outdoor dining and year-round enjoymen...
  • Stylish ground floor bathroom fitted with a luxurious double Japanese soaking tub with spa features and rainfall shower, complemented by built-in storage units for a sleek and practical finish.
  • Attractive kitchen with granite worktops, Canadian maple fronted units, integrated oven and hob, plus space for a dishwasher and fridge/freezer; Indian slate flooring continues into the dining roo...
  • Flexible second reception room or optional fourth bedroom featuring a fireplace—ideal as a cosy lounge, home office, or creative hobby space depending on lifestyle needs.
  • On the first floor, three generously sized bedrooms provide comfortable and well-proportioned accommodation, each featuring built-in/fitted wardrobes.
  • A recently updated and well-appointed bathroom serves the floor, featuring a panelled bath with shower over, wash basin and WC.
  • Additional practical features include fitted cupboards in the useful utility room, entrance porch, driveway parking for two vehicles, and an electric hook-up point—ideal for a caravan or mot...

This well appointed and attractively presented, corner plot, semi-detached home has been thoughtfully extended to create a light, spacious and versatile living environment, making it an appealing choice for a wide range of buyers. Offering flexible accommodation with the option of complete ground floor living, it’s ideal for those looking to future-proof their next move. Well positioned within the town, the property boasts three/four double bedrooms, two/three reception rooms, two bathrooms, a utility room, and double width driveway offering parking for two vehicles.

Location
The property is situated in a highly sought after residential area of the town, within approximately three quarters of a mile of the town centre. Street is a popular mid Somerset town famous as the home of Clarks Shoes and Millfield School and now popular with shoppers visiting Clarks Village. Street provides primary schooling, Crispin Comprehensive School, Strode College, Strode Theatre, indoor and open air swimming pools and a choice of pubs and eating places. The historic town of Glastonbury is within 3 miles, the Cathedral City of Wells 9 miles and the M5 motorway interchange at Dunball, Bridgwater is approximately 14 miles. The major centres of Bristol, Bath and Taunton are all within an hour's drive.

Directions
From the High Street turn left into Leigh Road at the Library and follow the road until reaching the 'T' junction (Tanyard on the right). Turn right into Middle Leigh, and take the first turning left into Ivythorn Road and at the top of Ivythorn Road turn right into Green Lane. The property will be found a short distance on the right hand side.

Material Information
All available property information can be provided upon request from Holland & Odam. For confirmation of mobile phone and broadband coverage, please visit checker.ofcom.org.uk

Identity Verification
To ensure full compliance with current legal requirements, all buyers are required to verify their identity and risk status in line with anti-money laundering (AML) regulations before we can formally proceed with the sale. This process includes a series of checks covering identity verification, politically exposed person (PEP) screening, and AML risk assessment for each individual named as a purchaser. In addition, for best practice, we are required to obtain proof of funds and where necessary, to carry out checks on the source of funds being used for the purchase. These checks are mandatory and must be completed regardless of whether the purchase is mortgage-funded, cash, or part of a related transaction. A disbursement of £49 per individual (or £75 per director for limited company purchases) is payable to cover all aspects of this compliance process. This fee represents the full cost of conducting the required checks and verifications. You will receive a secure payment link and full instructions directly from our compliance partner, Guild365, who carry out these checks on our behalf.

Important Information

  • This is a Freehold property.

Property Ref: 552333_SCJ807970

Share:

Similar Properties

Glaston Road, Street

4 Bedroom End of Terrace House | £317,500

We are delighted to present this beautifully presented four-bedroom Victorian end-of-terrace home, offering generous and...

Ivythorn Road, Street

3 Bedroom Semi-Detached House | £310,000

Recently refurbished throughout, this attractive and mature three-bedroom home offers stylish, ready-to-move-into accomm...

Stonehill, Street

3 Bedroom End of Terrace House | £299,950

Advantageously available with no onward chain is this deceptively spacious three-bedroom end of terrace home, beautifull...

Ringolds Way, Street

4 Bedroom Semi-Detached House | £318,500

This extended four-bedroom semi-detached property provides generous and well-balanced living space, perfect for modern f...

Middle Brooks, Street

3 Bedroom Semi-Detached House | £318,500

A well-presented and extended three-bedroom home in a popular and established area of Street. Featuring a superb modern...

Moccasin Way, Street

4 Bedroom Townhouse | £319,950

Immaculately presented and exceptionally well maintained, this four-bedroom townhouse offers spacious, well-proportioned...

Holland & Odam (Street)

Street, Somerset, BA16 0BJ

01458 841411

How much is your home worth?

Use our short form to request a valuation of your property.

Request a Valuation

Mortgage Calculator

Amount Borrowed: £
Total Amount Repayable: £
Total Monthly Payment: £
©2025 The Guild of Property Professionals. All rights reserved. Terms and Conditions | Privacy Policy | Cookie Policy | Complaints Policy | Members Login
The Guild of Property Professionals Trading Address: 121 Park Lane, London W1K 7AG. GPEA Limited. Registered in England & Wales.  Company No: 02819824.  Registered Office Address: 2 St. Stephen's Court, St. Stephen's Road, Bournemouth, Dorset, England, BH2 6LA.  VAT Registration No: 576 8795 61
Book a Property Valuation Update Cookies Preferences