Woking, Surrey, GU21

£400,000
SSTC
This property listing is now SSTC

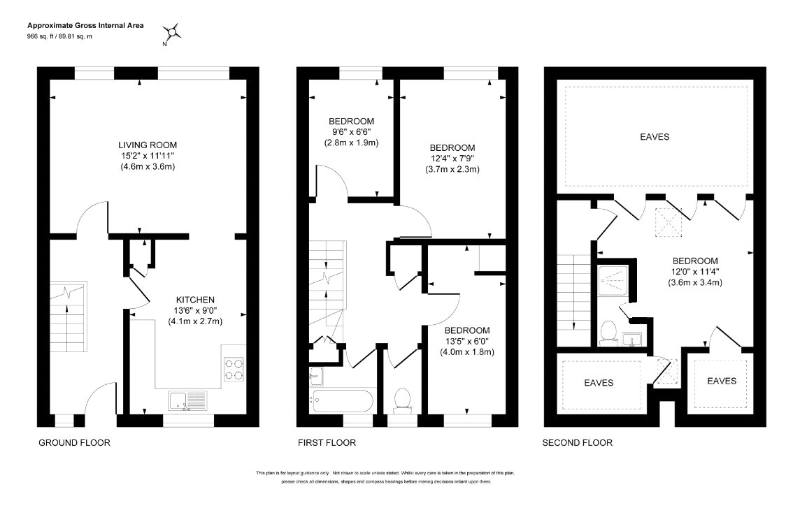
4 Bedroom Terraced House for sale in Surrey

1 4 2
  • Four Bedrooms
  • Kitchen/Breakfast Room
  • Accommodation Over Three Floors
  • Master Bedroom With En Suite
  • Recently Updated Family Bathroom
  • Allocated Parking
  • Close to Shops
  • Within Easy Reach of Bus Links Offering Easy Access to Woking Town Centre

This well-presented four-bedroom mid-terrace home offers spacious and versatile living across three floors, making it an ideal choice for families or those looking for extra room to grow. The ground floor features a generously sized front-aspect kitchen/breakfast room fitted with a range of base and eye level shaker style units, an integrated oven with gas hob and space for further appliances. A door leads to a rear aspect lounge that provides a welcoming space to relax, with direct access to the garden.
A standout feature of this property is the thoughtfully converted loft, which now serves as a superb master bedroom complete with its own ensuite shower room, offering both comfort and privacy. The first floor comprises three additional well-proportioned bedrooms and a modern family bathroom.
The property also benefits from one allocated parking space and is conveniently located close to local shops and bus links, providing easy access to Woking town centre and mainline train station.
Offering a great blend of space, comfort and convenience, this home is well suited to modern family life and deserves to be seen to be fully appreciated.
Location
Knaphill village has a vibrant range of shops, pubs and restaurants, which includes a Post Office. For more comprehensive shopping, Sainsbury's superstore is approximately quarter of a mile away. For commuting, Brookwood station provides a regular service direct to London Waterloo, Woking and Guildford. For those who enjoy the outdoors, there is Brookwood Country Park, Sheets Heath and Basingstoke Canal close by, which is ideal for dog walking or a family stroll.

Important Information

  • This is a Freehold property.

Property Ref: KNA250316

Share:

Similar Properties

Bisley, Woking, Surrey, GU24

2 Bedroom Semi-Detached House | £400,000

Offered to the market with no onward chain, Heatherside is a charming character cottage enjoying a delightful position o...

Knaphill, Woking, Surrey, GU21

3 Bedroom End of Terrace House | Offers in excess of £400,000

A spacious end of terrace family home located in a pleasant cul-de-sac on the fringes of Knaphill village and within eas...

St Johns, Woking, Surrey, GU21

2 Bedroom Detached Bungalow | Offers in excess of £400,000

This detached bungalow enjoys an enviable position on the Hermitage Development in St Johns, set in a quiet cul de sac,...

Knaphill, Woking, Surrey, GU21

3 Bedroom End of Terrace House | £410,000

** NO ONWARD CHAIN ** A spacious end of terrace family home located in a pleasant cul de sac a short walk from Knaphill...

Knaphill, Woking, Surrey, GU21

2 Bedroom Semi-Detached House | £415,000

An immaculately presented semi-detached home, conveniently located within easy reach of Brookwood Station, providing dir...

Knaphill, Surrey, GU21

3 Bedroom Semi-Detached House | Offers in excess of £420,000

This well-presented semi-detached home is situated on a sought-after residential road, just a short walk from local shop...

Seymours (Knaphill)

Knaphill, Surrey, GU21 2PP

01483 798969

How much is your home worth?

Use our short form to request a valuation of your property.

Request a Valuation

Mortgage Calculator

Amount Borrowed: £
Total Amount Repayable: £
Total Monthly Payment: £
©2026 The Guild of Property Professionals. All rights reserved. Terms and Conditions | Privacy Policy | Cookie Policy | Complaints Policy | Members Login
The Guild of Property Professionals Trading Address: 121 Park Lane, London W1K 7AG. GPEA Limited. Registered in England & Wales.  Company No: 02819824.  Registered Office Address: 2 St. Stephen's Court, St. Stephen's Road, Bournemouth, Dorset, England, BH2 6LA.  VAT Registration No: 576 8795 61
Book a Property Valuation Update Cookies Preferences