Knaphill, Woking, Surrey, GU21

£415,000
SSTC
This property listing is now SSTC

2 Bedroom Semi-Detached House for sale in Woking

1 2 1
  • Walking Distance to Brookwood Mainline Station
  • Two Double Bedrooms
  • Two Allocated Parking Spaces
  • Within Easy Reach of Knaphill Village
  • Downstairs W/C
  • Contemporary Kitchen
  • Living/Dining Room
  • Close to Brookwood Commonlands

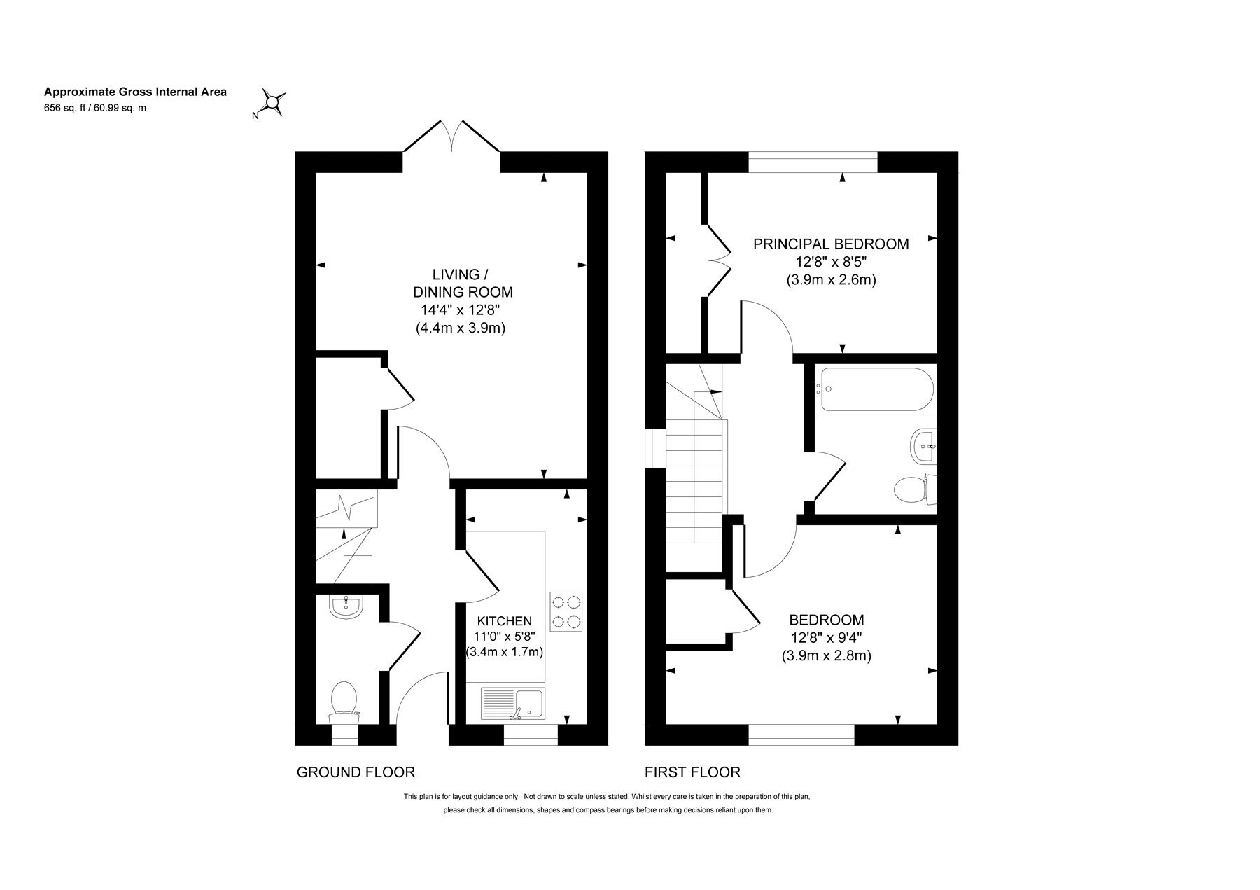
An immaculately presented semi-detached home, conveniently located within easy reach of Brookwood Station, providing direct access to London Waterloo. The property features a bright and pleasant rear-aspect living/dining room with patio doors opening onto the south facing garden. To the front, there is a contemporary fitted kitchen offering a good range of eye and base level units, complemented by an excellent selection of integrated appliances. A downstairs cloakroom completes the ground floor accommodation.
Upstairs, the property offers two well-proportioned double bedrooms, both with built in wardrobes. The family bathroom is fitted with a modern three piece suite comprising a wash hand basin, WC and bath with shower attachment.
Outside
The rear garden is south facing and includes a well maintained lawn and patio, creating an ideal space for relaxing or entertaining. To the front, the property benefits from two allocated parking spaces positioned in front of the house. Early viewings are highly recommended.
Location
Knaphill village offers a vibrant selection of shops, pubs, restaurants, as well as a Post Office and pharmacy. For more extensive shopping needs, a Sainsbury's superstore is located approximately a quarter of a mile away. Brookwood Station provides regular rail services to London Waterloo, Woking and Guildford. For outdoor enthusiasts, Brookwood Country Park is nearby, offering excellent walking routes for families and dog owners alike.
N.B Annual charges apply £380.00

Important Information

  • This is a Freehold property.

Property Ref: KNA250502

Share:

Similar Properties

Knaphill, Woking, Surrey, GU21

3 Bedroom End of Terrace House | £410,000

** NO ONWARD CHAIN ** A spacious end of terrace family home located in a pleasant cul de sac a short walk from Knaphill...

Bisley, Woking, Surrey, GU24

2 Bedroom Semi-Detached House | £400,000

Offered to the market with no onward chain, Heatherside is a charming character cottage enjoying a delightful position o...

Knaphill, Woking, Surrey, GU21

3 Bedroom End of Terrace House | Offers in excess of £400,000

A spacious end of terrace family home located in a pleasant cul-de-sac on the fringes of Knaphill village and within eas...

Knaphill, Surrey, GU21

3 Bedroom Semi-Detached House | Offers in excess of £420,000

This well-presented semi-detached home is situated on a sought-after residential road, just a short walk from local shop...

Knaphill, Woking, Surrey, GU21

3 Bedroom Terraced House | Guide Price £425,000

An extended terraced home, ideally located just a short walk from Knaphill Village, which offers a wide range of ameniti...

Bisley, Woking, Surrey, GU24

2 Bedroom Semi-Detached House | Guide Price £425,000

This executive style semi detached home, originally built by Redrow Homes, offers a superb move in ready opportunity in...

Seymours (Knaphill)

Knaphill, Surrey, GU21 2PP

01483 798969

How much is your home worth?

Use our short form to request a valuation of your property.

Request a Valuation

Mortgage Calculator

Amount Borrowed: £
Total Amount Repayable: £
Total Monthly Payment: £
©2026 The Guild of Property Professionals. All rights reserved. Terms and Conditions | Privacy Policy | Cookie Policy | Complaints Policy | Members Login
The Guild of Property Professionals Trading Address: 121 Park Lane, London W1K 7AG. GPEA Limited. Registered in England & Wales.  Company No: 02819824.  Registered Office Address: 2 St. Stephen's Court, St. Stephen's Road, Bournemouth, Dorset, England, BH2 6LA.  VAT Registration No: 576 8795 61
Book a Property Valuation Update Cookies Preferences