Bisley, Woking, Surrey, GU24

Guide Price
£425,000
SSTC
This property listing is now SSTC

2 Bedroom Semi-Detached House for sale in Woking

1 2 2
  • Two Double Bedrooms
  • Two Ensuite Bathrooms
  • Driveway Providing Parking For Two Cars
  • Downstairs Cloakroom
  • Close to Shops
  • Within Easy Reach of Brookwood Mainline Station
  • Quiet Cul de Sac Location
  • Rear Garden Approx. 35ft
  • Close to the M3

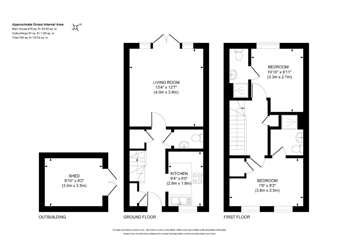
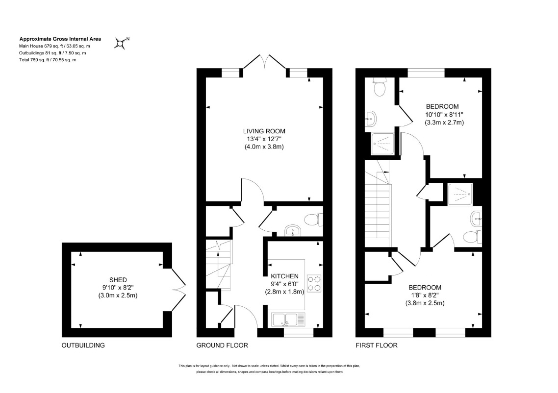
This executive style semi detached home, originally built by Redrow Homes, offers a superb move in ready opportunity in the highly desirable village of Bisley. Situated just over a mile from Brookwood mainline station, it provides excellent access to local amenities and convenient transport links.
Presented in excellent condition, the interior has been immaculately cared for by the current owner. The property boasts two spacious double bedrooms, each enjoying its own luxurious ensuite shower room. One of the bedrooms also benefits from built-in wardrobes, adding valuable storage and enhancing practicality, making this home ideal for both homeowners and investors.
The ground floor features a stylish front aspect kitchen fitted with high quality units and a range of integrated appliances, including a dishwasher, fridge freezer, double oven and gas hob. To the rear, a bright and generously sized lounge/dining room opens onto the garden through double doors, creating a seamless indoor–outdoor flow perfect for relaxing or entertaining. Amtico flooring runs throughout and a modern downstairs cloakroom completes the ground floor.
Outside, the appeal continues with a beautifully maintained rear garden, mainly laid to lawn and complemented by a smart patio area, ideal for al fresco dining or simply enjoying the sunshine.
Location
Bisley village sits conveniently for access to both Woking (3.4 Miles) and Guildford (7.7 miles) whilst the M3 is approximately 2 miles. There is a primary school in the village with secondary schools being easily accessible in West End (Gordon's) and St John's (Winston Churchill). There is a local Sainsbury's within the village as well as an excellent continental butcher. A larger Sainsbury's superstore is within a mile in nearby Knaphill. For those who enjoy the outdoors Bisley village is surrounded by acres of common land at nearby Brentmoor Heath as well as Stafford Lake. Nearby Brookwood station provides a regular direct service to Waterloo.
N.B Annual Service Charges Apply £197.04

Important Information

  • This is a Freehold property.

Property Ref: KNA250475

Share:

Similar Properties

Knaphill, Woking, Surrey, GU21

2 Bedroom Semi-Detached House | £425,000

A beautifully presented semi-detached home, ideally situated within walking distance of both Brookwood Railway Station a...

Knaphill, Woking, Surrey, GU21

3 Bedroom Terraced House | Guide Price £425,000

An extended terraced home, ideally located just a short walk from Knaphill Village, which offers a wide range of ameniti...

Knaphill, Woking, Surrey, GU21

4 Bedroom Terraced House | £425,000

This extended terraced home is in need of modernisation and offers generous and versatile accommodation, arranged over t...

Knaphill, Woking, Surrey, GU21

3 Bedroom Terraced House | £430,000

A well presented mid terrace family home located a short walk from Knaphill Village High Street and within easy access t...

Bisley, Woking, Surrey, GU24

3 Bedroom End of Terrace House | £435,000

** NO ONWARD CHAIN ** A well presented end of terrace neo-Georgian style home located in an extremely pleasant cul de sa...

Knaphill, Woking, Surrey, GU21

2 Bedroom End of Terrace House | £435,000

This end of terrace home is situated within the recently built Brookwood Farm development in Knaphill and offers two gen...

Seymours (Knaphill)

Knaphill, Surrey, GU21 2PP

01483 798969

How much is your home worth?

Use our short form to request a valuation of your property.

Request a Valuation

Mortgage Calculator

Amount Borrowed: £
Total Amount Repayable: £
Total Monthly Payment: £
©2026 The Guild of Property Professionals. All rights reserved. Terms and Conditions | Privacy Policy | Cookie Policy | Complaints Policy | Members Login
The Guild of Property Professionals Trading Address: 121 Park Lane, London W1K 7AG. GPEA Limited. Registered in England & Wales.  Company No: 02819824.  Registered Office Address: 2 St. Stephen's Court, St. Stephen's Road, Bournemouth, Dorset, England, BH2 6LA.  VAT Registration No: 576 8795 61
Book a Property Valuation Update Cookies Preferences