Knaphill, Woking, Surrey, GU21

£425,000
SSTC
This property listing is now SSTC

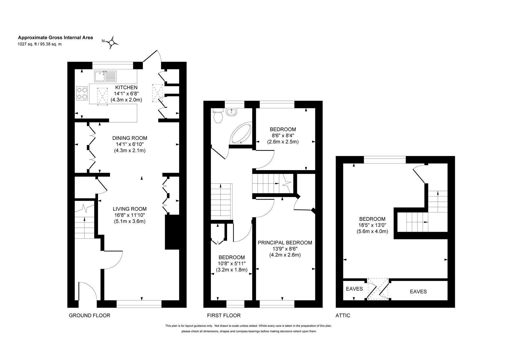
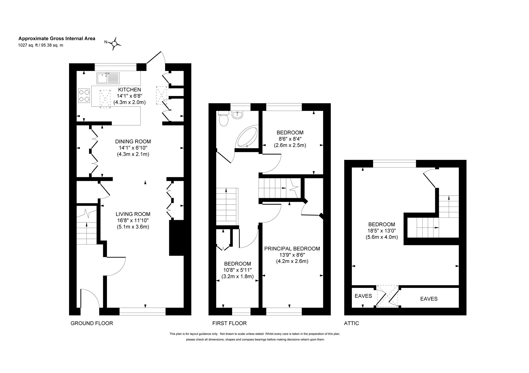
4 Bedroom Terraced House for sale in Woking

2 4 1
  • Walking Distance to Knaphill Village
  • Loft Conversion Creating a Fourth Bedroom
  • Ground Floor Extension Creating Open Plan Kitchen Dining Room
  • Four Bedrooms
  • Close to Bus Links Offering Easy Access To Woking Town Centre

This extended terraced home is in need of modernisation and offers generous and versatile accommodation, arranged over three well-planned floors, making it ideal for growing families.
The ground floor comprises a welcoming front aspect lounge, enhanced by bespoke fitted shelving and units that provide both style and practical storage. To the rear, a thoughtfully designed extension has created a spacious open-plan kitchen and dining area, forming the heart of the home and offering an excellent space for everyday living and entertaining, with views over the rear garden.
On the first floor are three well proportioned bedrooms, all served by a family bathroom. The top floor features a loft conversion that provides an impressive double bedroom, offering a private retreat or flexible space for guests or home working.
Externally, the property benefits from a pleasant rear garden, mainly laid to lawn, ideal for families and outdoor enjoyment. To the front is a further garden area, which offers potential to be converted into a driveway, subject to the necessary planning permissions. There is also the opportunity to park at the rear subject to availability.
Location
Knaphill village has a vibrant range of shops, pubs, restaurants and a Post Office. For more comprehensive shopping Sainsbury's superstore is approximately quarter of a mile away. For commuting, nearby Brookwood station provides a regular service direct to Waterloo. Woking and Guildford. For those who enjoy the outdoors there is Stafford Lake which is ideal for dog walking and nearby Brookwood Country Park ideal for a family stroll on a Sunday.

Important Information

  • This is a Freehold property.

Property Ref: KNA130124

Share:

Similar Properties

Bisley, Woking, Surrey, GU24

2 Bedroom Semi-Detached House | Guide Price £425,000

This executive style semi detached home, originally built by Redrow Homes, offers a superb move in ready opportunity in...

Knaphill, Woking, Surrey, GU21

3 Bedroom Terraced House | Guide Price £425,000

An extended terraced home, ideally located just a short walk from Knaphill Village, which offers a wide range of ameniti...

Knaphill, Surrey, GU21

3 Bedroom Semi-Detached House | Offers in excess of £420,000

This well-presented semi-detached home is situated on a sought-after residential road, just a short walk from local shop...

Bisley, Woking, Surrey, GU24

3 Bedroom End of Terrace House | £435,000

** NO ONWARD CHAIN ** A well presented end of terrace neo-Georgian style home located in an extremely pleasant cul de sa...

West End, Woking, Surrey,, GU24

2 Bedroom Semi-Detached House | £435,000

This modern semi-detached home enjoys a quiet spot, within this highly sought after development built by Taylor Wimpey H...

West End, Woking, Surrey, GU24

2 Bedroom Semi-Detached House | £439,950

Situated within a gated development in the heart of West End, this excellent condition, well presented home offers spaci...

Seymours (Knaphill)

Knaphill, Surrey, GU21 2PP

01483 798969

How much is your home worth?

Use our short form to request a valuation of your property.

Request a Valuation

Mortgage Calculator

Amount Borrowed: £
Total Amount Repayable: £
Total Monthly Payment: £
©2026 The Guild of Property Professionals. All rights reserved. Terms and Conditions | Privacy Policy | Cookie Policy | Complaints Policy | Members Login
The Guild of Property Professionals Trading Address: 121 Park Lane, London W1K 7AG. GPEA Limited. Registered in England & Wales.  Company No: 02819824.  Registered Office Address: 2 St. Stephen's Court, St. Stephen's Road, Bournemouth, Dorset, England, BH2 6LA.  VAT Registration No: 576 8795 61
Book a Property Valuation Update Cookies Preferences