Bisley, Woking, Surrey, GU24

£435,000
SSTC
This property listing is now SSTC

3 Bedroom End of Terrace House for sale in Woking

1 3 1
  • NO ONWARD CHAIN
  • End Of Terrace
  • Three Bedrooms
  • Two Reception Areas
  • Kitchen
  • Bathroom
  • Garage
  • Village Location

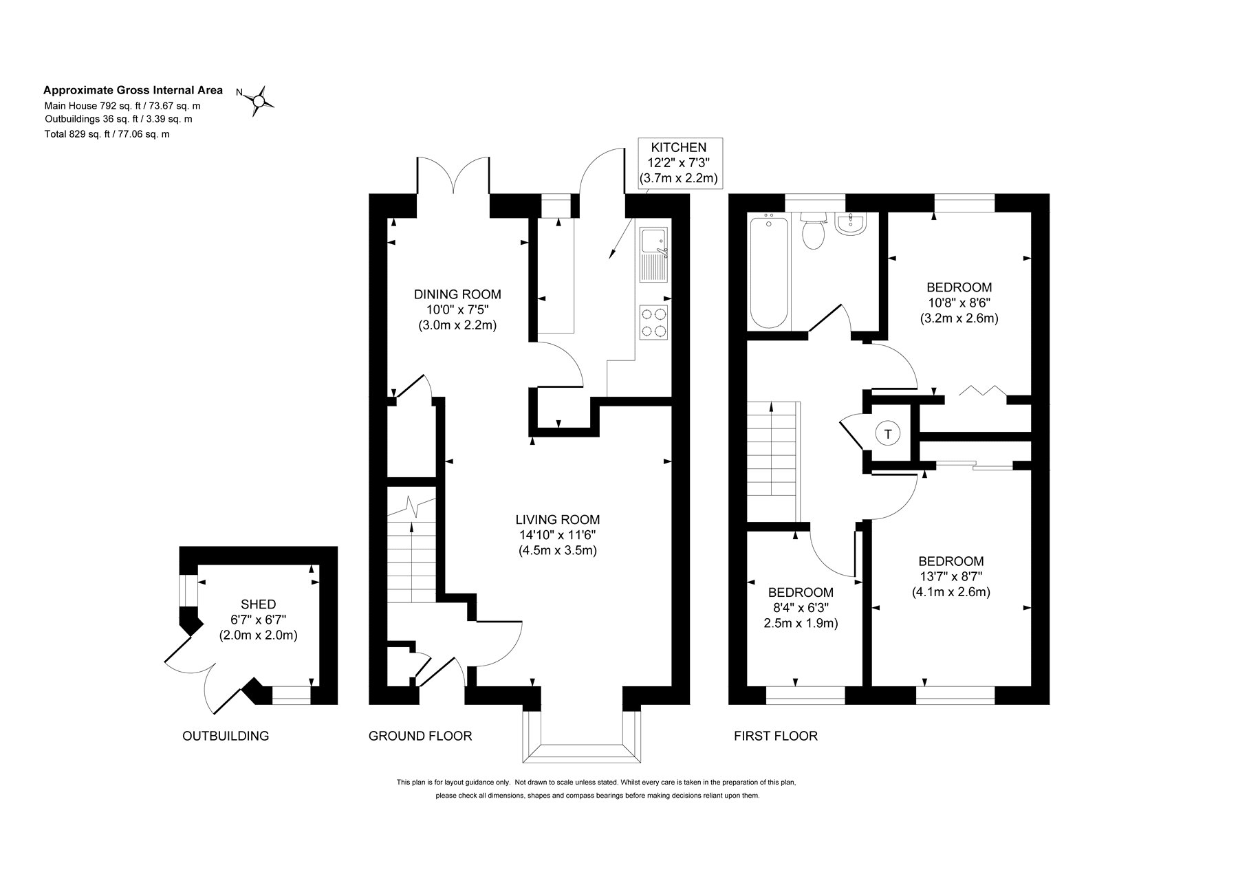
** NO ONWARD CHAIN ** A well presented end of terrace neo-Georgian style home located in an extremely pleasant cul de sac, in the sought after village of Bisley, a short walk from the local primary school.
The accommodation is light and airy throughout with a generous ground floor reception arrangement creating two delightful reception areas. Adjacent is a comprehensively fitted kitchen with a built-in oven and hob and a rear door to the garden.
Upstairs is no less impressive with three generous bedrooms, two of which are doubles with built in wardrobes. All have the use of a white three piece family bathroom. Other notable features include UPVC double glazing and gas central heating.
Outside
The rear garden enjoys a pleasant Easterly aspect with a patio to the rear leading to lawn bordered by seasonal shrub beds. A further sun terrace to the rear adjoins a generous shed as well as a rear access gate. A garage comes with the property which is located in a nearby block. Resident parking is available to the front of the property.

Location
Bisley village sits conveniently for access to both Woking (3.4 Miles) and Guildford (7.7 miles) whilst the M3 is approximately 2 miles. There is a primary school in the village with secondary schools being easily accessible in West End (Gordon's) and St John's (Winston Churchill). There is a local Sainsbury's within the village as well as an excellent continental butcher. A larger Sainsbury's superstore is within a mile in nearby Knaphill.
For those who enjoy the outdoors Bisley village is surrounded by acres of common land at nearby Brentmoor Heath as well as Stafford Lake. Nearby Brookwood station provides a regular direct service to Waterloo.

Important Information

  • This is a Freehold property.

Property Ref: KNA250246

Share:

Similar Properties

West End, Woking, Surrey,, GU24

2 Bedroom Semi-Detached House | £435,000

This modern semi-detached home enjoys a quiet spot, within this highly sought after development built by Taylor Wimpey H...

Knaphill, Woking, Surrey, GU21

3 Bedroom Terraced House | Guide Price £425,000

An extended terraced home, ideally located just a short walk from Knaphill Village, which offers a wide range of ameniti...

Knaphill, Woking, Surrey, GU21

4 Bedroom Terraced House | £425,000

This extended terraced home is in need of modernisation and offers generous and versatile accommodation, arranged over t...

West End, Woking, Surrey, GU24

2 Bedroom Semi-Detached House | £439,950

Situated within a gated development in the heart of West End, this excellent condition, well presented home offers spaci...

St Johns, Woking, Surrey, GU21

3 Bedroom End of Terrace House | £439,950

This larger than average end of terrace home is well presented throughout and provides accommodation that begins with a...

Brookwood, Woking, Surrey, GU24

2 Bedroom House | £445,000

This wonderful Victorian cottage perfectly combines period character with modern convenience, ideally located just a sho...

Seymours (Knaphill)

Knaphill, Surrey, GU21 2PP

01483 798969

How much is your home worth?

Use our short form to request a valuation of your property.

Request a Valuation

Mortgage Calculator

Amount Borrowed: £
Total Amount Repayable: £
Total Monthly Payment: £
©2026 The Guild of Property Professionals. All rights reserved. Terms and Conditions | Privacy Policy | Cookie Policy | Complaints Policy | Members Login
The Guild of Property Professionals Trading Address: 121 Park Lane, London W1K 7AG. GPEA Limited. Registered in England & Wales.  Company No: 02819824.  Registered Office Address: 2 St. Stephen's Court, St. Stephen's Road, Bournemouth, Dorset, England, BH2 6LA.  VAT Registration No: 576 8795 61
Book a Property Valuation Update Cookies Preferences