Brookwood, Woking, Surrey, GU24

£445,000
SSTC
This property listing is now SSTC

2 Bedroom House for sale in Woking

2 2 1
  • Walking Distance to Brookwood Mainline Station
  • South Facing Garden in Excess of 110sqft
  • Two Double Bedrooms
  • Two Reception Rooms
  • Impressive Outbuilding with Power
  • Close to Shops
  • A Short Walk From the Basingstoke Canal
  • Character Features Throughout

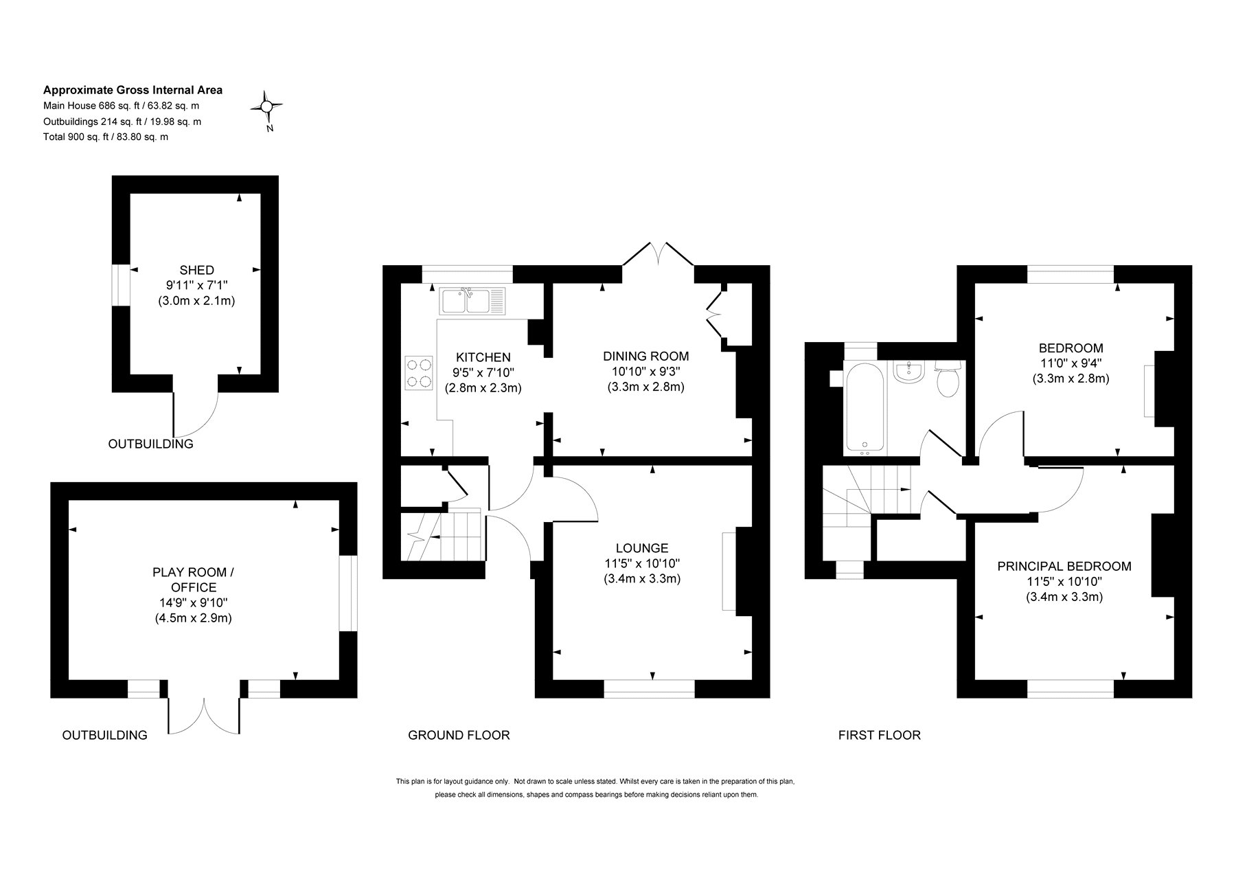
This wonderful Victorian cottage perfectly combines period character with modern convenience, ideally located just a short walk from Brookwood Mainline Station.
Accommodation comprises two well-proportioned double bedrooms, each featuring an original cast iron fireplace. The bedrooms share a stylish family bathroom fitted with a traditional white suite including a wash hand basin, WC, and bath. White metro tiles complete the space with a timeless, elegant finish.
The ground floor offers two inviting reception rooms. The front aspect lounge features a beautiful Victorian archway fireplace, solid wood flooring and a cast iron column radiator, creating a warm and welcoming atmosphere. To the rear, the dining room adjoins the kitchen, which has been thoughtfully fitted with a range of base and eye-level units, solid wood worktops, and space for appliances.
Outside, the property enjoys a substantial south facing garden extending to over 110ft, an ideal space for relaxation and outdoor entertaining. Towards the end of the garden sits The Green Retreat; an impressive outbuilding with power and cabled Wi-FI, offering the perfect space for a home office, studio, or hobby room.
This charming period home combines classic style, generous outdoor space, and convenient access to transport links, making it a must-see for commuters and character-home enthusiasts alike.

Location
Brookwood enjoys easy access to the station which is right in the heart of the village and provides a regular direct service to Waterloo. Nearby Knaphill has a good range of day to day shops whilst Guildford, approximately 7 miles and Woking, approximately 3.5 miles provide more extensive shopping facilities as well as theatres, bars and restaurants. Closer to home there is excellent pub dining at the Nags Head in Knaphill and the White Hart in nearby Pirbright Village. The general surrounds of the village are delightful with the Basingstoke Canal providing miles of tree lined towpath for jogging and dog walking. The village also has a primary school whilst nearby St Johns provides secondary education from Winston Churchill School.

Important Information

  • This is a Freehold property.

Property Ref: KNA250299

Share:

Similar Properties

West End, Woking, Surrey, GU24

2 Bedroom Semi-Detached House | £439,950

Situated within a gated development in the heart of West End, this excellent condition, well presented home offers spaci...

St Johns, Woking, Surrey, GU21

3 Bedroom End of Terrace House | £439,950

This larger than average end of terrace home is well presented throughout and provides accommodation that begins with a...

Knaphill, Woking, Surrey, GU21

2 Bedroom End of Terrace House | £435,000

This end of terrace home is situated within the recently built Brookwood Farm development in Knaphill and offers two gen...

West End, Woking, Surrey, GU24

2 Bedroom Semi-Detached House | Offers in excess of £450,000

This beautifully presented semi-detached home occupies an enviable position within the sought-after, recently built Oaks...

West End, Woking, Surrey,, GU24

2 Bedroom Terraced House | Offers in excess of £450,000

This beautifully presented terraced home is offered to the market in excellent condition and is ideally situated within...

Knaphill, Woking, Surrey, GU21

3 Bedroom End of Terrace House | Offers in excess of £450,000

Presented to the market in superb condition, this attractive executive home is tucked away in a quiet private cul-de-sac...

Seymours (Knaphill)

Knaphill, Surrey, GU21 2PP

01483 798969

How much is your home worth?

Use our short form to request a valuation of your property.

Request a Valuation

Mortgage Calculator

Amount Borrowed: £
Total Amount Repayable: £
Total Monthly Payment: £
©2026 The Guild of Property Professionals. All rights reserved. Terms and Conditions | Privacy Policy | Cookie Policy | Complaints Policy | Members Login
The Guild of Property Professionals Trading Address: 121 Park Lane, London W1K 7AG. GPEA Limited. Registered in England & Wales.  Company No: 02819824.  Registered Office Address: 2 St. Stephen's Court, St. Stephen's Road, Bournemouth, Dorset, England, BH2 6LA.  VAT Registration No: 576 8795 61
Book a Property Valuation Update Cookies Preferences