West End, Woking, Surrey, GU24

Offers in excess of
£450,000
SSTC
This property listing is now SSTC

2 Bedroom Semi-Detached House for sale in Woking

1 2 2
  • Beautifully Landscaped Rear Garden
  • Driveway With Parking For Two Cars
  • Stunning Condition
  • Downstairs Cloakroom
  • High End Kitchen With Siemens Appliances
  • Ensuite to Master
  • Walking Distance to Gordons School
  • Two Double Bedrooms With Built in Wardrobes
  • Pergola Covered Decking Area

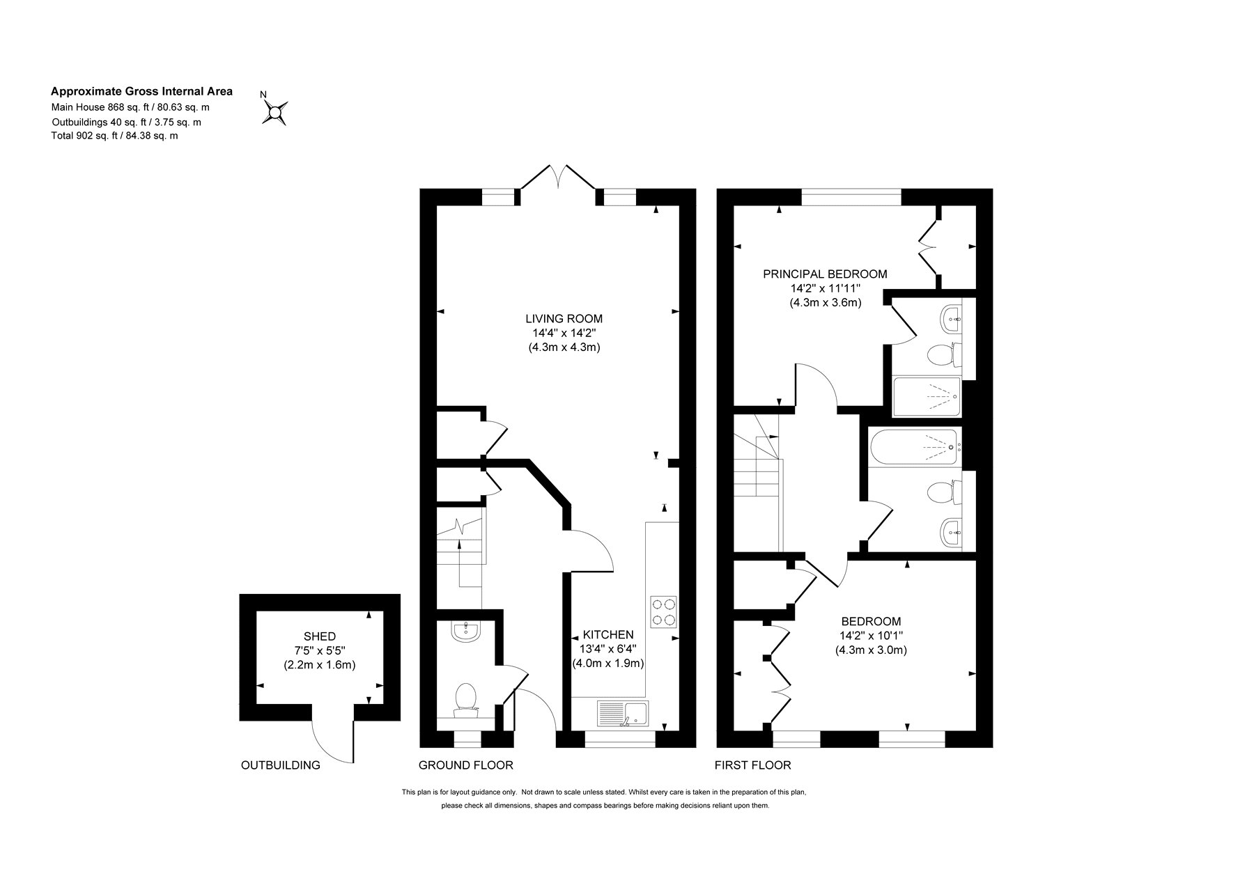
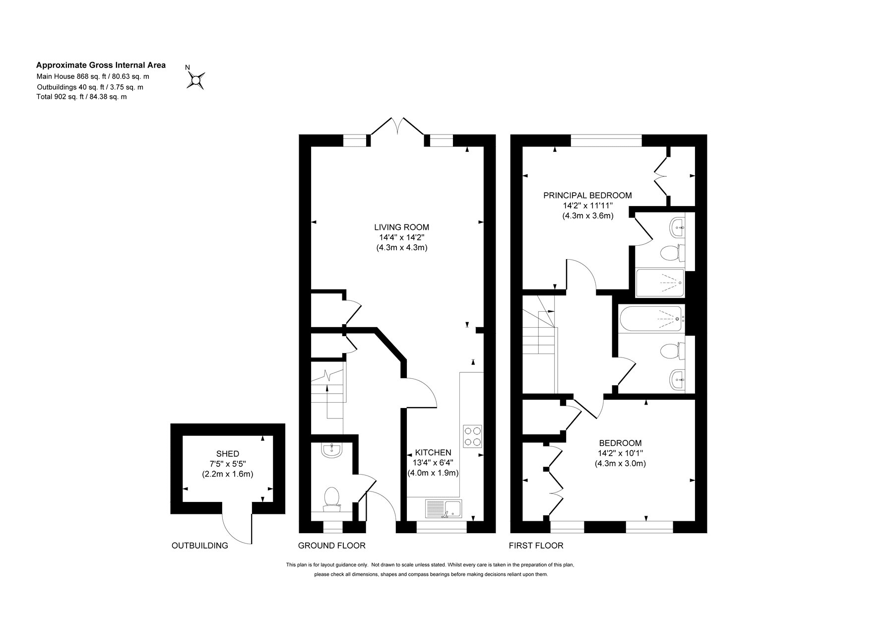
This beautifully presented semi-detached home occupies an enviable position within the sought-after, recently built Oaks Meadow Development in West End and is offered to the market in excellent condition throughout.
Finished to an exceptional standard, the property offers well balanced accommodation comprising two generous double bedrooms, each featuring floor to ceiling built-in wardrobes. The principal bedroom further benefits from a luxurious ensuite shower room with underfloor heating. This feature also extends to the stylish family bathroom, fitted with a contemporary three piece suite including a vanity wash hand basin, WC, and a bath with a wall mounted shower, all complemented by floor to ceiling tiling.
On the ground floor, the front aspect kitchen is fitted with a range of shaker style units perfectly paired with composite stone worktops and upstands. A full complement of integrated Siemens appliances, including a double oven, gas hob, dishwasher, and washing machine adds to the sleek, modern finish.
To the rear is a living/dining room with French doors that open onto the rear garden, flooding the space with natural light. A cloakroom/WC completes the ground floor accommodation.
Outside there is a sunny rear garden that comes laid to lawn with a patio and pergola covered decking area that are ideal for relaxing or entertaining. To the front, the property boasts a well-maintained garden and a private driveway with parking for two vehicles.
Location
The village of West End is ideally located for commuters, with easy access to Junction 3 of the M3, offering connections to Heathrow and Gatwick Airports. The area is well served by highly regarded schools, including Gordons School and Holy Trinity Primary School.
Gosden Parade provides a convenient selection of local shops, including a newsagent, hairdresser, and coffee shop. Dining options are excellent, with The Inn at West End located in the village and a variety of popular pubs and restaurants nearby in Chobham. For rail commuters, Brookwood Station (approximately 2.3 miles away) offers regular direct services to London Waterloo.
N.B Annual charges apply £303.59pa

Important Information

  • This is a Freehold property.

Property Ref: KNA250416

Share:

Similar Properties

West End, Woking, Surrey,, GU24

2 Bedroom Terraced House | Offers in excess of £450,000

This beautifully presented terraced home is offered to the market in excellent condition and is ideally situated within...

Knaphill, Woking, Surrey, GU21

3 Bedroom End of Terrace House | Offers in excess of £450,000

Presented to the market in superb condition, this attractive executive home is tucked away in a quiet private cul-de-sac...

West End, Woking, Surrey, GU24

3 Bedroom Terraced House | Offers in excess of £450,000

Offered to the market with no onward chain, this well presented three bedroom terraced home provides comfortable family...

West End, Woking, Surrey, GU24

2 Bedroom Semi-Detached House | £465,000

Situated in a quiet cul-de-sac on the highly sought-after Rose Meadow development in West End, this modern semi detached...

Knaphill, Woking, Surrey, GU21

3 Bedroom Semi-Detached Bungalow | £465,000

Offered to the market with no onward chain, this extended semi-detached bungalow is tucked away in a quiet cul-de-sac wi...

Knaphill, Woking, GU21

3 Bedroom Terraced House | Offers in excess of £475,000

This stunning mid terrace home is offered to the market in excellent condition and is located within easy reach of Brook...

Seymours (Knaphill)

Knaphill, Surrey, GU21 2PP

01483 798969

How much is your home worth?

Use our short form to request a valuation of your property.

Request a Valuation

Mortgage Calculator

Amount Borrowed: £
Total Amount Repayable: £
Total Monthly Payment: £
©2026 The Guild of Property Professionals. All rights reserved. Terms and Conditions | Privacy Policy | Cookie Policy | Complaints Policy | Members Login
The Guild of Property Professionals Trading Address: 121 Park Lane, London W1K 7AG. GPEA Limited. Registered in England & Wales.  Company No: 02819824.  Registered Office Address: 2 St. Stephen's Court, St. Stephen's Road, Bournemouth, Dorset, England, BH2 6LA.  VAT Registration No: 576 8795 61
Book a Property Valuation Update Cookies Preferences