West End, Woking, Surrey, GU24

£465,000
SSTC
This property listing is now SSTC

2 Bedroom Semi-Detached House for sale in Woking

1 2 1
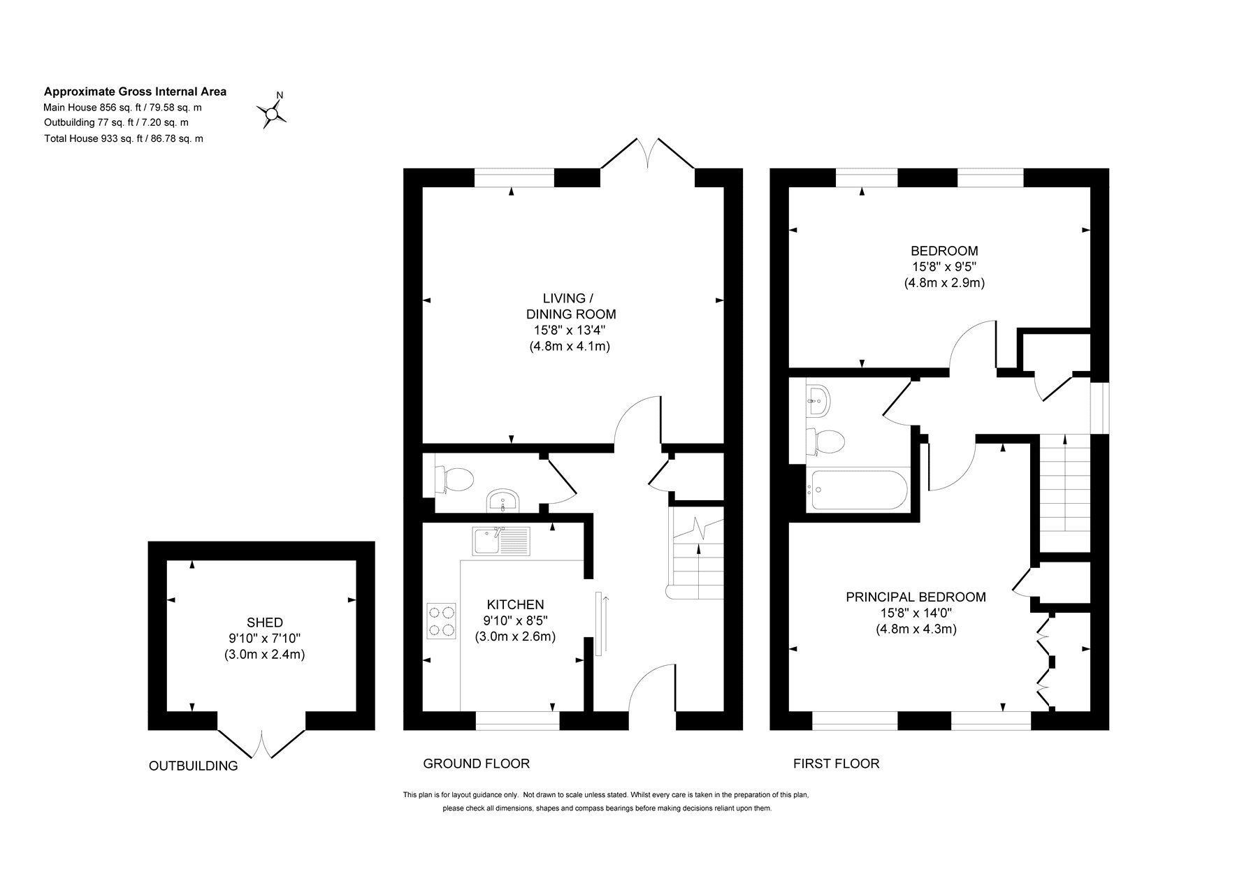
  • Quiet Cul De Sac
  • Two Double Bedrooms
  • Built in Wardrobe to Master
  • Well Fitted Kitchen
  • Downstairs WC
  • Living/Dining Room
  • Pleasant Rear Garden
  • Two Allocated Parking Spaces
  • Close to Local Schools and Amenities

Situated in a quiet cul-de-sac on the highly sought-after Rose Meadow development in West End, this modern semi detached home offers stylish and well balanced accommodation ideal for first time buyers, professionals, or small families.
The property features two generous double bedrooms, with the principal bedroom benefiting from built-in wardrobes. Both bedrooms are served by a contemporary family bathroom fitted with a three piece suite comprising a wash hand basin, W.C. and bath with wall mounted shower and glass shower screen. Stylish floor to ceiling tiling completes this modern space.
On the ground floor, the front aspect kitchen is fitted with a range of shaker style base and eye level units and includes an integrated double oven, gas hob, fridge/freezer and dishwasher. A convenient downstairs cloakroom adds further practicality. To the rear, a spacious living/dining room provides an excellent living and entertaining space, with doors opening directly onto the rear garden.
Outside, the pleasant rear garden is mainly laid to lawn, while the front of the property offers two allocated parking spaces.
The location is particularly well served, with highly regarded local schools including Gordon's School and Holy Trinity nearby, along with excellent transport links via the M3 and Brookwood mainline station.
Location
The village of West End is ideally located for commuters, with easy access to Junction 3 of the M3, offering connections to Heathrow and Gatwick Airports. The area is well served by highly regarded schools, including Gordon's School and Holy Trinity Primary School.
Gosden Parade provides a convenient selection of local shops, including a newsagent, hairdresser, and coffee shop. Dining options are excellent, with The Inn at West End located in the village and a variety of popular pubs and restaurants nearby in Chobham. For rail commuters, Brookwood Station (approximately 2.3 miles away) offers regular direct services to London Waterloo.
N.B Annual Charges Apply £600.00

Important Information

  • This is a Freehold property.

Property Ref: KNA240555

Share:

Similar Properties

Knaphill, Woking, Surrey, GU21

3 Bedroom Semi-Detached Bungalow | £465,000

Offered to the market with no onward chain, this extended semi-detached bungalow is tucked away in a quiet cul-de-sac wi...

West End, Woking, Surrey, GU24

2 Bedroom Semi-Detached House | Offers in excess of £450,000

This beautifully presented semi-detached home occupies an enviable position within the sought-after, recently built Oaks...

West End, Woking, Surrey,, GU24

2 Bedroom Terraced House | Offers in excess of £450,000

This beautifully presented terraced home is offered to the market in excellent condition and is ideally situated within...

Knaphill, Woking, Surrey, GU21

3 Bedroom Semi-Detached House | £475,000

This semi-detached home is ideally situated within a short walk of Knaphill village that offers a wide range of amenitie...

Knaphill, Woking, GU21

3 Bedroom Terraced House | Offers in excess of £475,000

This stunning mid terrace home is offered to the market in excellent condition and is located within easy reach of Brook...

Knaphill, Woking, Surrey, GU21

3 Bedroom Detached House | Offers in excess of £479,950

This attractive detached character home is offered in good decorative order throughout and conveniently located within e...

Seymours (Knaphill)

Knaphill, Surrey, GU21 2PP

01483 798969

How much is your home worth?

Use our short form to request a valuation of your property.

Request a Valuation

Mortgage Calculator

Amount Borrowed: £
Total Amount Repayable: £
Total Monthly Payment: £
©2026 The Guild of Property Professionals. All rights reserved. Terms and Conditions | Privacy Policy | Cookie Policy | Complaints Policy | Members Login
The Guild of Property Professionals Trading Address: 121 Park Lane, London W1K 7AG. GPEA Limited. Registered in England & Wales.  Company No: 02819824.  Registered Office Address: 2 St. Stephen's Court, St. Stephen's Road, Bournemouth, Dorset, England, BH2 6LA.  VAT Registration No: 576 8795 61
Book a Property Valuation Update Cookies Preferences