West End, Woking, Surrey,, GU24

Offers in excess of
£450,000
SSTC
This property listing is now SSTC

2 Bedroom Terraced House for sale in Woking

1 2 2
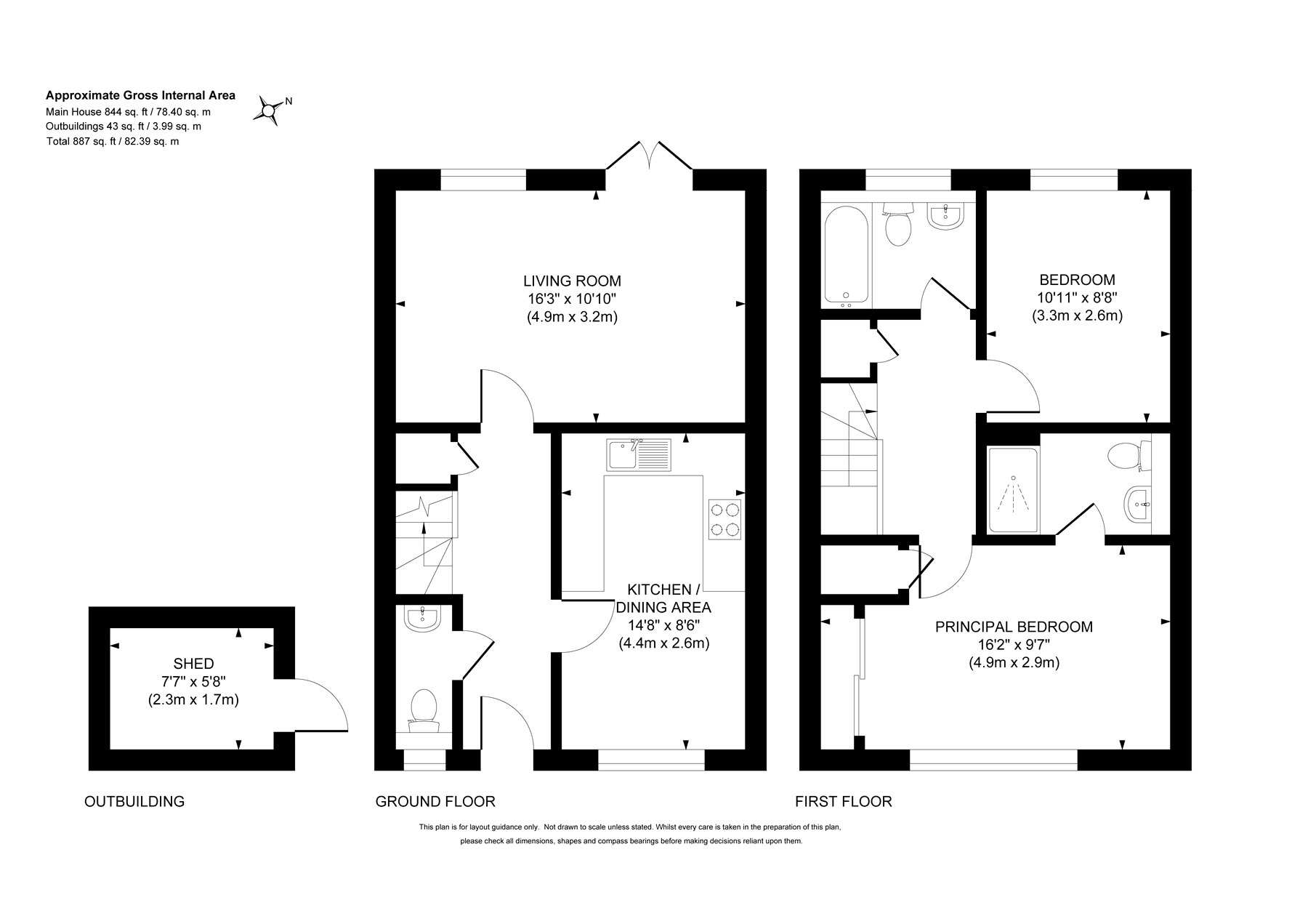
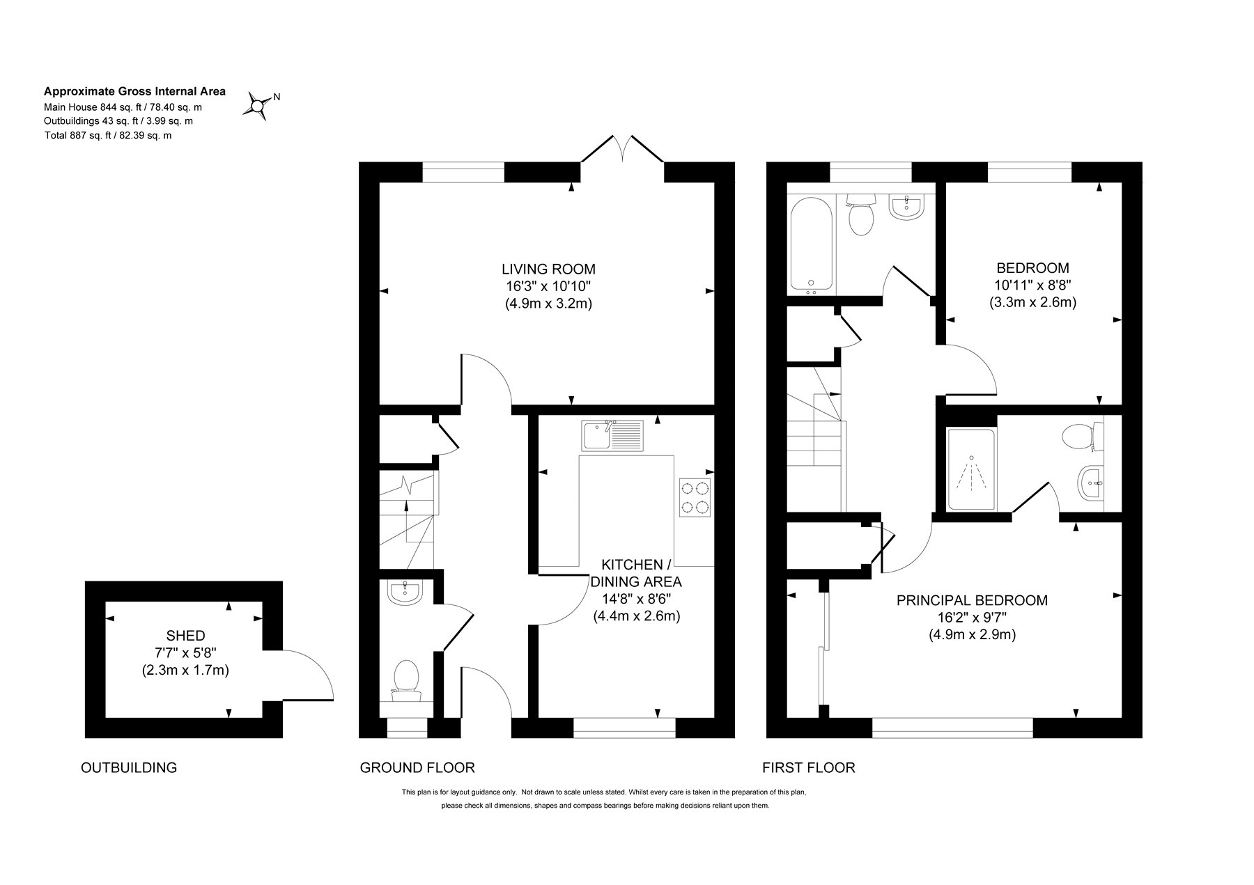
  • Two Double Bedrooms
  • Ensuite to Master
  • Kitchen/Breakfast Room
  • Driveway Providing Parking For Two Car
  • Approx. 700m of Gordons School
  • Spacious Lounge
  • Downstairs Cloakroom
  • Stunning Condition

This beautifully presented terraced home is offered to the market in excellent condition and is ideally situated within 700m of the highly sought after Gordons School in West End. The property offers deceptively spacious accommodation, including two generously sized double bedrooms. The principal bedroom benefits from built-in wardrobes and a modern ensuite shower room, while the family bathroom features a contemporary suite with a vanity unit, wash hand basin, WC, and bath.
On the ground floor, the impressive front aspect kitchen/breakfast room has been finished to a high specification. It features a range of base and eye level units complemented by elegant stone worktops and includes integrated appliances such as an oven with gas hob, fridge freezer, and dishwasher. The room also offers ample space for a dining table, creating the perfect setting for family meals or entertaining. To the rear, the bright and welcoming lounge opens through double doors to the garden. A convenient downstairs cloakroom completes the accommodation.
The rear garden has been well maintained, providing an ideal space to relax or entertain outdoors. At the front, the property benefits from a driveway offering parking for two vehicles. Early viewings are highly recommended.
Location
West End village enjoys excellent transport links, with Junction 3 of the M3 offering easy access to Heathrow and Gatwick airports. The area is well served for education, with two outstanding schools — the renowned Gordons School and Holy Trinity Primary School — both nearby. The Gosden Parade offers a variety of local amenities, including a newsagent, butcher, hairdresser, and coffee shop. Dining options are excellent, with The Inn at West End in the village and a selection of popular pub-restaurants in nearby Chobham. Brookwood Station is approximately 2.3 miles away, providing a regular direct service to London Waterloo.
N.B Annual charges apply £431.71pa

Important Information

  • This is a Freehold property.

Property Ref: KNA250186

Share:

Similar Properties

West End, Woking, Surrey, GU24

2 Bedroom Semi-Detached House | Offers in excess of £450,000

This beautifully presented semi-detached home occupies an enviable position within the sought-after, recently built Oaks...

Knaphill, Woking, Surrey, GU21

3 Bedroom End of Terrace House | Offers in excess of £450,000

Presented to the market in superb condition, this attractive executive home is tucked away in a quiet private cul-de-sac...

West End, Woking, Surrey, GU24

3 Bedroom Terraced House | Offers in excess of £450,000

Offered to the market with no onward chain, this well presented three bedroom terraced home provides comfortable family...

West End, Woking, Surrey, GU24

2 Bedroom Semi-Detached House | £465,000

Situated in a quiet cul-de-sac on the highly sought-after Rose Meadow development in West End, this modern semi detached...

Knaphill, Woking, Surrey, GU21

3 Bedroom Semi-Detached Bungalow | £465,000

Offered to the market with no onward chain, this extended semi-detached bungalow is tucked away in a quiet cul-de-sac wi...

Knaphill, Woking, GU21

3 Bedroom Terraced House | Offers in excess of £475,000

This stunning mid terrace home is offered to the market in excellent condition and is located within easy reach of Brook...

Seymours (Knaphill)

Knaphill, Surrey, GU21 2PP

01483 798969

How much is your home worth?

Use our short form to request a valuation of your property.

Request a Valuation

Mortgage Calculator

Amount Borrowed: £
Total Amount Repayable: £
Total Monthly Payment: £
©2026 The Guild of Property Professionals. All rights reserved. Terms and Conditions | Privacy Policy | Cookie Policy | Complaints Policy | Members Login
The Guild of Property Professionals Trading Address: 121 Park Lane, London W1K 7AG. GPEA Limited. Registered in England & Wales.  Company No: 02819824.  Registered Office Address: 2 St. Stephen's Court, St. Stephen's Road, Bournemouth, Dorset, England, BH2 6LA.  VAT Registration No: 576 8795 61
Book a Property Valuation Update Cookies Preferences