Woking, Surrey, GU21

£400,000
SSTC
This property listing is now SSTC

2 Bedroom Semi-Detached House for sale in Surrey

2 2 1
  • No Onward Chain
  • Potential to Extend STPP
  • Garage
  • Two Reception Rooms
  • Rear Garden in Excess of 80ft
  • Driveway Providing Off Street Parking
  • Close to Bus Links Offering Easy Access to Woking Town Centre
  • Close to the Hermitage School

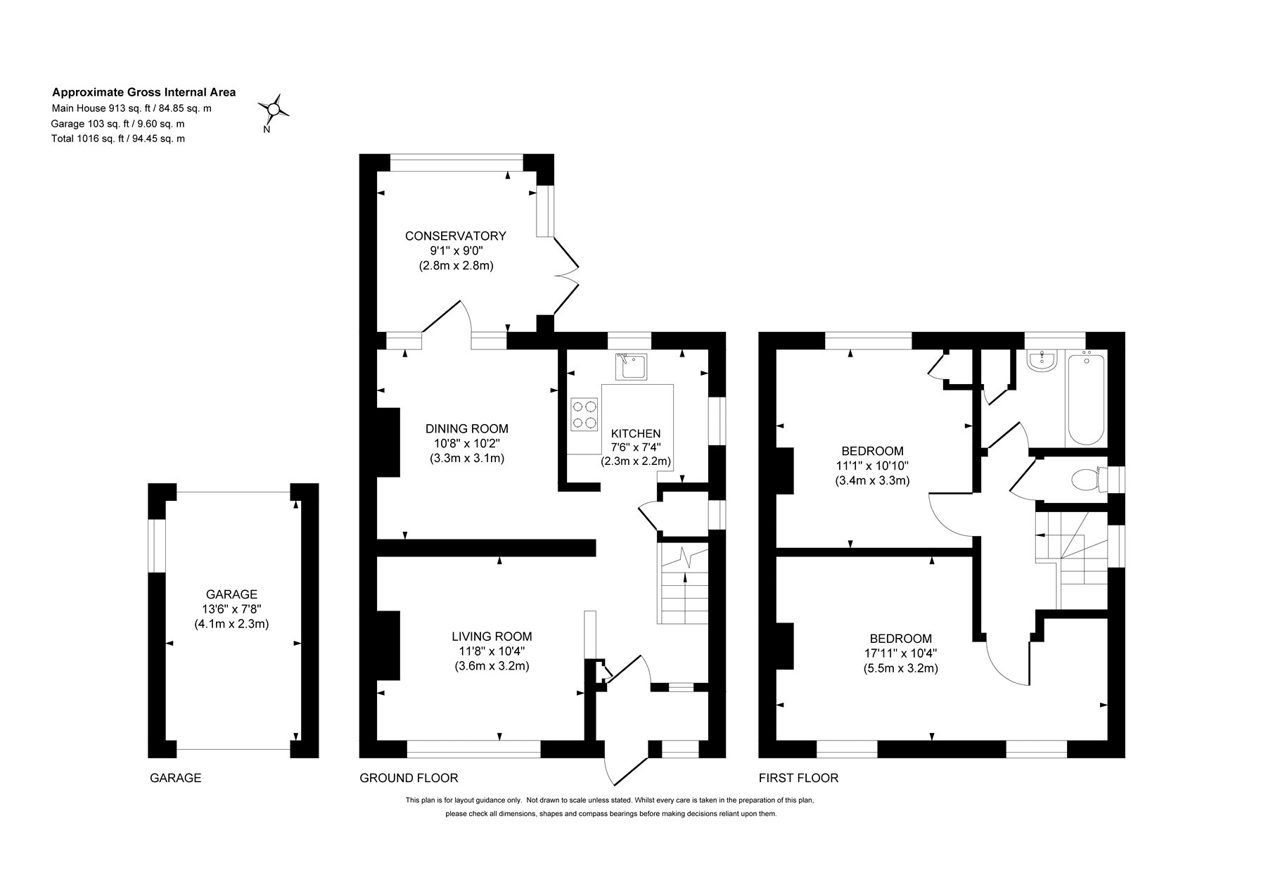
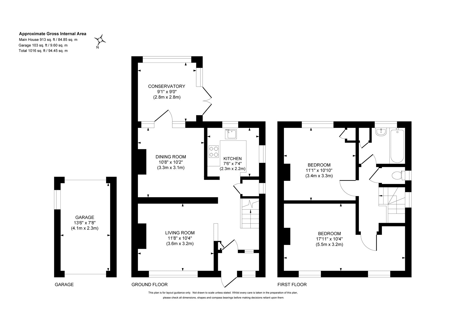
Offered to the market with no onward chain, this semi-detached home presents an excellent opportunity for buyers looking to modernise and add value.The property originally offered three bedrooms but has since been reconfigured to provide two generously sized bedrooms; the layout could easily be reverted back to three if desired. While some modernisation is required, the house offers significant potential to extend (subject to the necessary planning permissions).The ground floor comprises two reception rooms, a kitchen located to the rear, and a conservatory, providing flexible living and entertaining space. Externally, the property benefits from a rear garden in excess of 80ft, ideal for families and keen gardeners alike.Further features include a garage and a private driveway providing off-street parking.The property is conveniently located within walking distance of Hermitage and Winston Churchill schools, with bus links nearby offering easy access to Woking town centre.An ideal purchase for those seeking a well-located home with scope to personalise and enhance.

Location

St Johns village has a bustling high street providing a good range of day to day shops as well as enjoying the delights of the Basingstoke Canal with its pretty tow paths. Woking is approximately one mile away which has excellent shopping facilities as well as one of the best services to Waterloo stations anywhere in the area. The village has access to several good primary schools as well as Winston Churchill secondary school.

Important Information

  • This is a Freehold property.

Property Ref: KNA250142

Share:

Similar Properties

Bisley, Woking, Surrey, GU24

2 Bedroom Semi-Detached House | £400,000

Offered to the market with no onward chain, Heatherside is a charming character cottage enjoying a delightful position o...

Knaphill, Woking, Surrey, GU21

3 Bedroom End of Terrace House | Offers in excess of £400,000

A spacious end of terrace family home located in a pleasant cul-de-sac on the fringes of Knaphill village and within eas...

St Johns, Woking, Surrey, GU21

2 Bedroom Detached Bungalow | Offers in excess of £400,000

This detached bungalow enjoys an enviable position on the Hermitage Development in St Johns, set in a quiet cul de sac,...

Knaphill, Woking, Surrey, GU21

3 Bedroom End of Terrace House | £410,000

** NO ONWARD CHAIN ** A spacious end of terrace family home located in a pleasant cul de sac a short walk from Knaphill...

Knaphill, Woking, Surrey, GU21

2 Bedroom Semi-Detached House | £415,000

An immaculately presented semi-detached home, conveniently located within easy reach of Brookwood Station, providing dir...

Knaphill, Surrey, GU21

3 Bedroom Semi-Detached House | Offers in excess of £420,000

This well-presented semi-detached home is situated on a sought-after residential road, just a short walk from local shop...

Seymours (Knaphill)

Knaphill, Surrey, GU21 2PP

01483 798969

How much is your home worth?

Use our short form to request a valuation of your property.

Request a Valuation

Mortgage Calculator

Amount Borrowed: £
Total Amount Repayable: £
Total Monthly Payment: £
©2026 The Guild of Property Professionals. All rights reserved. Terms and Conditions | Privacy Policy | Cookie Policy | Complaints Policy | Members Login
The Guild of Property Professionals Trading Address: 121 Park Lane, London W1K 7AG. GPEA Limited. Registered in England & Wales.  Company No: 02819824.  Registered Office Address: 2 St. Stephen's Court, St. Stephen's Road, Bournemouth, Dorset, England, BH2 6LA.  VAT Registration No: 576 8795 61
Book a Property Valuation Update Cookies Preferences