Guildford, Surrey, GU4

Guide Price
£290,000
SSTC
This property listing is now SSTC

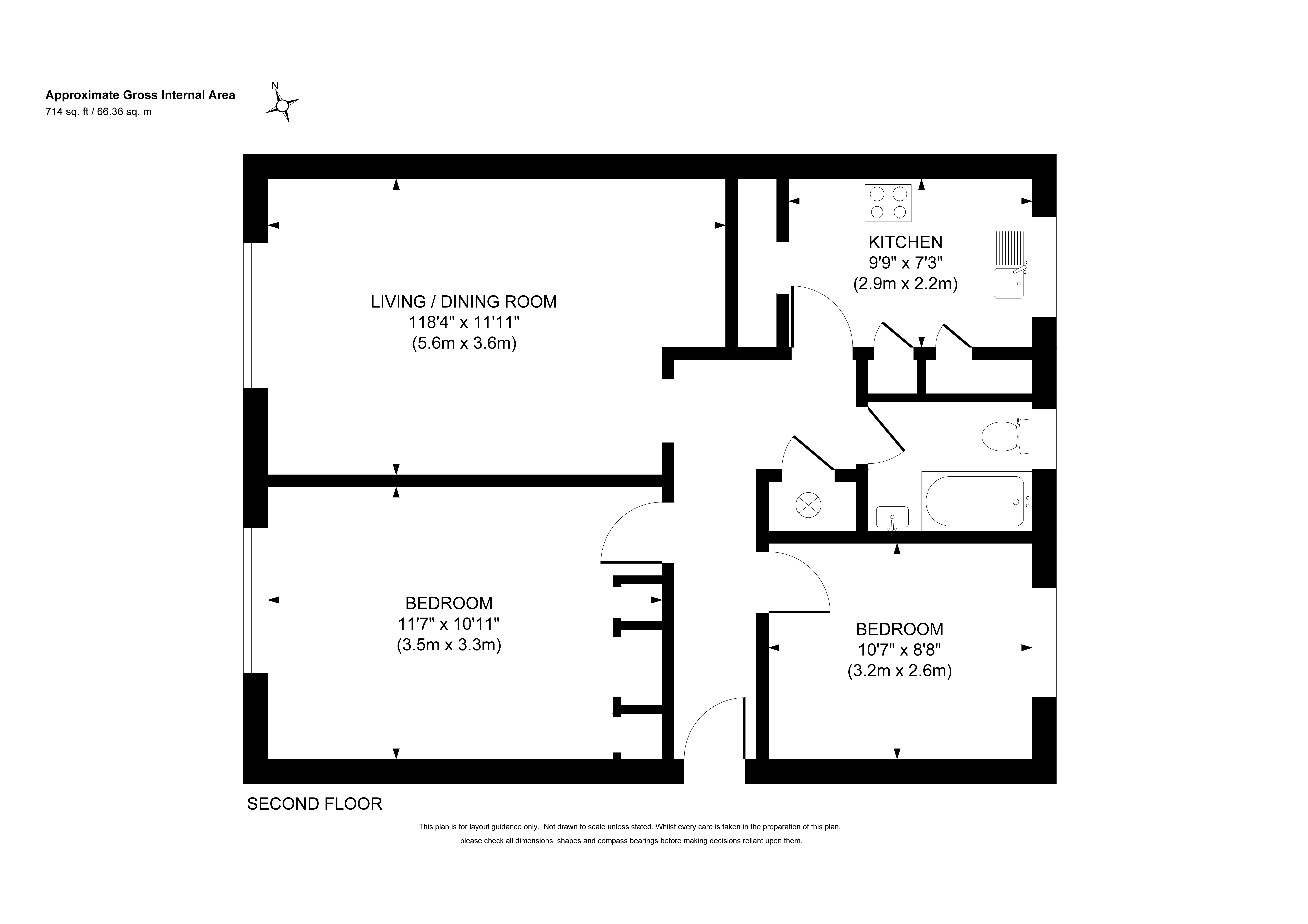
2 Bedroom Apartment for sale in Surrey

1 2 1
  • Share of freehold
  • Top floor apartment
  • Recently refurbished kitchen
  • Modern decor
  • Recently re-wired
  • Residents parking
  • Close to local amenities
  • Ultrafast broadband available

Nestled on the top floor of a well-situated building in Burpham, this beautifully redesigned apartment offers a stylish and cohesive living experience. Every detail has been thoughtfully curated to blend modern design with comfort, making it an ideal home for those who appreciate both aesthetics and practicality.The heart of the home is a sleek Howdens kitchen, featuring contemporary grey shaker-style cabinetry paired with crisp white countertops and a playful tiled splashback. Integrated appliances and a pantry cupboard add convenience, while an enlarged internal window to the dining area brings in extra light and a sense of openness. The living room exudes warmth, with wood-style flooring and soft beige tones creating a welcoming atmosphere. Matching cabinetry beneath the kitchen window ties the spaces together with a seamless flow.The principal bedroom is a standout, with stylish wall panelling in a rich brown hue set against creamy walls, offering a trendy yet calming retreat. Thoughtfully designed fitted wardrobes provide ample storage without compromising on elegance. The second bedroom, equally versatile, features warm teal walls and would make an ideal home office or guest room. The bathroom adds a splash of vibrancy with large blue tiles surrounding the bath and sink, complemented by clean white tiling throughout the rest of the space.

Grosvenor Court is situated close to Sutherland Memorial Park in a very convenient location within two miles of Guildford town centre and easy access to Stoke Park and the Spectrum Leisure Centre. Burpham shops and a Sainsburys and Aldi Supermarket are both within walking distance. George Abbot Secondary school and Burpham Primary schools are also a short walk away and the position is very convenient for access the A3 which is approximately 0.25 miles giving access to the M25 at junction 10. Guildford mainline station is approximately 2 miles away.

Important Information

  • This is a Share of Freehold property.

Property Ref: BUR250256

Share:

Similar Properties

Merrow, Guildford, Surrey, GU4

1 Bedroom End of Terrace House | Guide Price £285,000

This charming one-bedroom house in Woodger Close, Guildford, offers a stylish and contemporary living space. The propert...

Burpham, Guildford, Surrey, GU4

1 Bedroom End of Terrace House | Guide Price £285,000

This well-presented end of terrace house in Burpham offers a bright and comfortable living space, ideal for a single occ...

Merrow Park, Guildford, Surrey, GU4

1 Bedroom End of Terrace House | Guide Price £285,000

This charming one-bedroom house in Woodger Close, Guildford, offers a stylish and contemporary living space. The propert...

Boxgrove, Guildford, Surrey, GU1

2 Bedroom Apartment | Guide Price £295,000

This well-presented third-floor apartment in Jordans Close, Guildford, offers a bright and spacious living environment w...

Guildford, Surrey, GU4

1 Bedroom Semi-Detached House | Guide Price £295,000

This charming semi-detached one-bedroom home is nestled in the heart of Burpham, offering a peaceful residential setting...

Guildford, Surrey, GU4

2 Bedroom Apartment | Guide Price £300,000

This modern first floor apartment in Merrow forms part of a well-maintained residential development, set within attracti...

Seymours (Burpham)

Burpham, Surrey, GU1 1YP

01483 300667

How much is your home worth?

Use our short form to request a valuation of your property.

Request a Valuation

Mortgage Calculator

Amount Borrowed: £
Total Amount Repayable: £
Total Monthly Payment: £
©2026 The Guild of Property Professionals. All rights reserved. Terms and Conditions | Privacy Policy | Cookie Policy | Complaints Policy | Members Login
The Guild of Property Professionals Trading Address: 121 Park Lane, London W1K 7AG. GPEA Limited. Registered in England & Wales.  Company No: 02819824.  Registered Office Address: 2 St. Stephen's Court, St. Stephen's Road, Bournemouth, Dorset, England, BH2 6LA.  VAT Registration No: 576 8795 61
Book a Property Valuation Update Cookies Preferences