Guildford, Surrey, GU4

Guide Price
£295,000
SSTC
This property listing is now SSTC

1 Bedroom Semi-Detached House for sale in Surrey

2 1 1
  • Freehold
  • Semi-detached
  • Modern kitchen and bathroom
  • Conservatory
  • Private garden
  • Allocated parking
  • Ultrafast broadband available

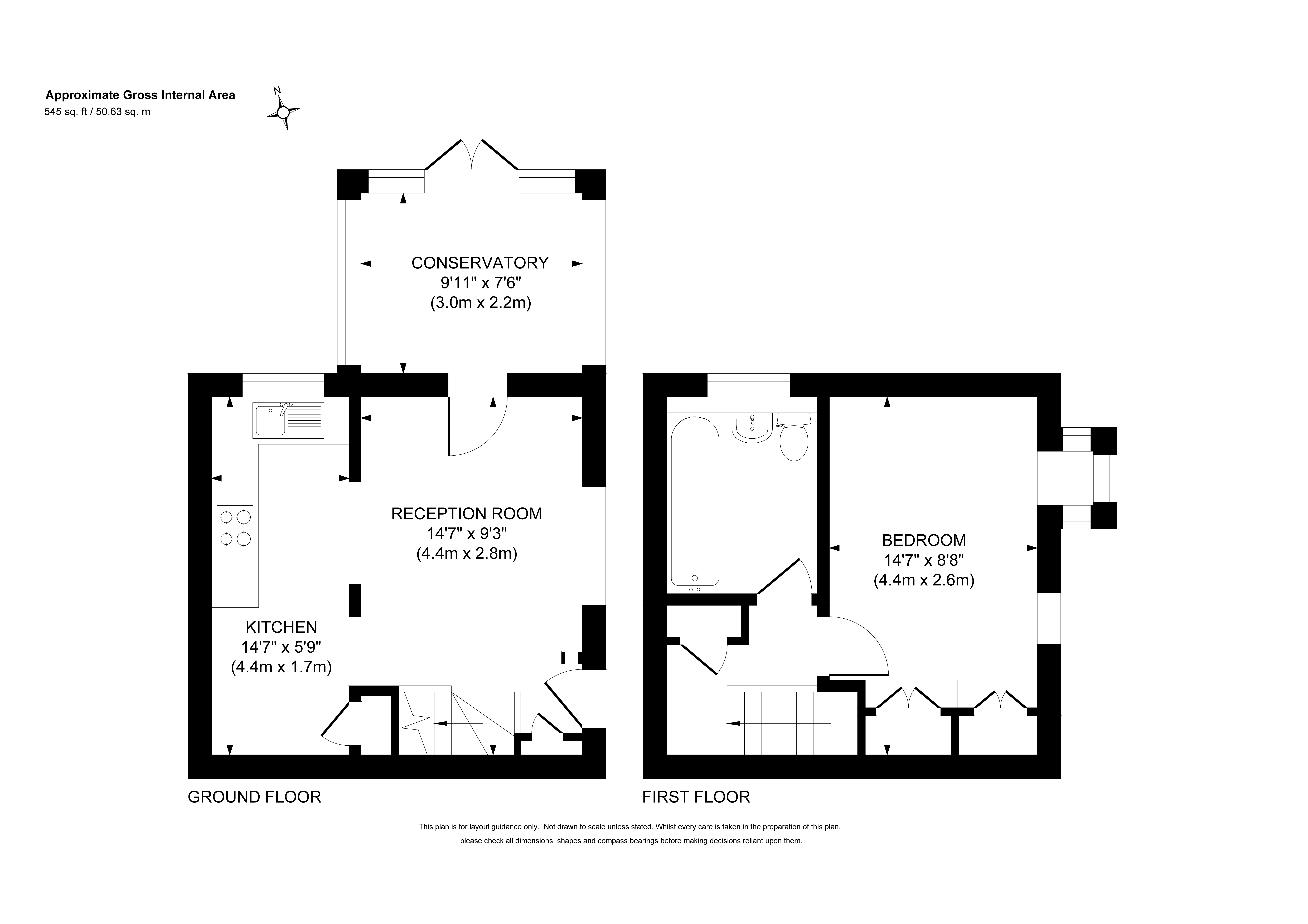
This charming semi-detached one-bedroom home is nestled in the heart of Burpham, offering a peaceful residential setting with the convenience of nearby amenities. With an allocated parking space and excellent transport links, it's ideally positioned for both local living and commuting to Guildford, London, or Portsmouth via the nearby A3.

Inside, the property presents a fresh and inviting atmosphere. The living room features wood flooring and crisp white walls, creating a neutral canvas ready for personal touches. The kitchen, fitted in 2015, showcases classic white shaker-style cabinetry and tiled Karndean flooring, complemented by a peekaboo window that connects it to the living space and enhances the open feel of the ground floor.

A standout feature of the home is the conservatory, a rare addition for properties of this type. It offers a versatile extra room that leads directly to the private rear garden through double doors. The garden is thoughtfully designed for both privacy and entertaining, with mature hedging, secure fencing, a patio area, and a built-in brick barbecue.

Upstairs, the bedroom continues the home's clean aesthetic with soft carpeting and white walls. Two built-in cupboards provide practical storage, while the modern bathroom adds a touch of sophistication with sleek tiling, Karndean flooring and contemporary white fittings.

Beyond the property itself, residents benefit from close proximity to popular shops including Sainsbury's and Aldi, as well as the green open spaces of Sutherland Memorial Park. Whether you're seeking a peaceful retreat or a well-connected base, this home offers a balanced blend of comfort, style, and convenience.

Important Information

  • This is a Freehold property.

Property Ref: BUR250384

Share:

Similar Properties

Boxgrove, Guildford, Surrey, GU1

2 Bedroom Apartment | Guide Price £295,000

This well-presented third-floor apartment in Jordans Close, Guildford, offers a bright and spacious living environment w...

Guildford, Surrey, GU4

2 Bedroom Apartment | Guide Price £290,000

Nestled on the top floor of a well-situated building in Burpham, this beautifully redesigned apartment offers a stylish...

Merrow, Guildford, Surrey, GU4

1 Bedroom End of Terrace House | Guide Price £285,000

This charming one-bedroom house in Woodger Close, Guildford, offers a stylish and contemporary living space. The propert...

Guildford, Surrey, GU4

2 Bedroom Apartment | Guide Price £300,000

This modern first floor apartment in Merrow forms part of a well-maintained residential development, set within attracti...

Burpham, Guildford, Surrey, GU4

2 Bedroom Retirement Property | Guide Price £300,000

This newly refurbished semi-detached retirement bungalow offers stylish, low-maintenance living in a peaceful and well-k...

Burpham, Guildford, Surrey, GU1

2 Bedroom Apartment | Guide Price £310,000

The property is a bright, spacious 2 bedroom first-floor apartment overlooking the quiet communal rear garden of The Clo...

Seymours (Burpham)

Burpham, Surrey, GU1 1YP

01483 300667

How much is your home worth?

Use our short form to request a valuation of your property.

Request a Valuation

Mortgage Calculator

Amount Borrowed: £
Total Amount Repayable: £
Total Monthly Payment: £
©2026 The Guild of Property Professionals. All rights reserved. Terms and Conditions | Privacy Policy | Cookie Policy | Complaints Policy | Members Login
The Guild of Property Professionals Trading Address: 121 Park Lane, London W1K 7AG. GPEA Limited. Registered in England & Wales.  Company No: 02819824.  Registered Office Address: 2 St. Stephen's Court, St. Stephen's Road, Bournemouth, Dorset, England, BH2 6LA.  VAT Registration No: 576 8795 61
Book a Property Valuation Update Cookies Preferences