Guildford, Surrey, GU4

Guide Price
£550,000
SSTC
This property listing is now SSTC

3 Bedroom End of Terrace House for sale in Surrey

1 3 2

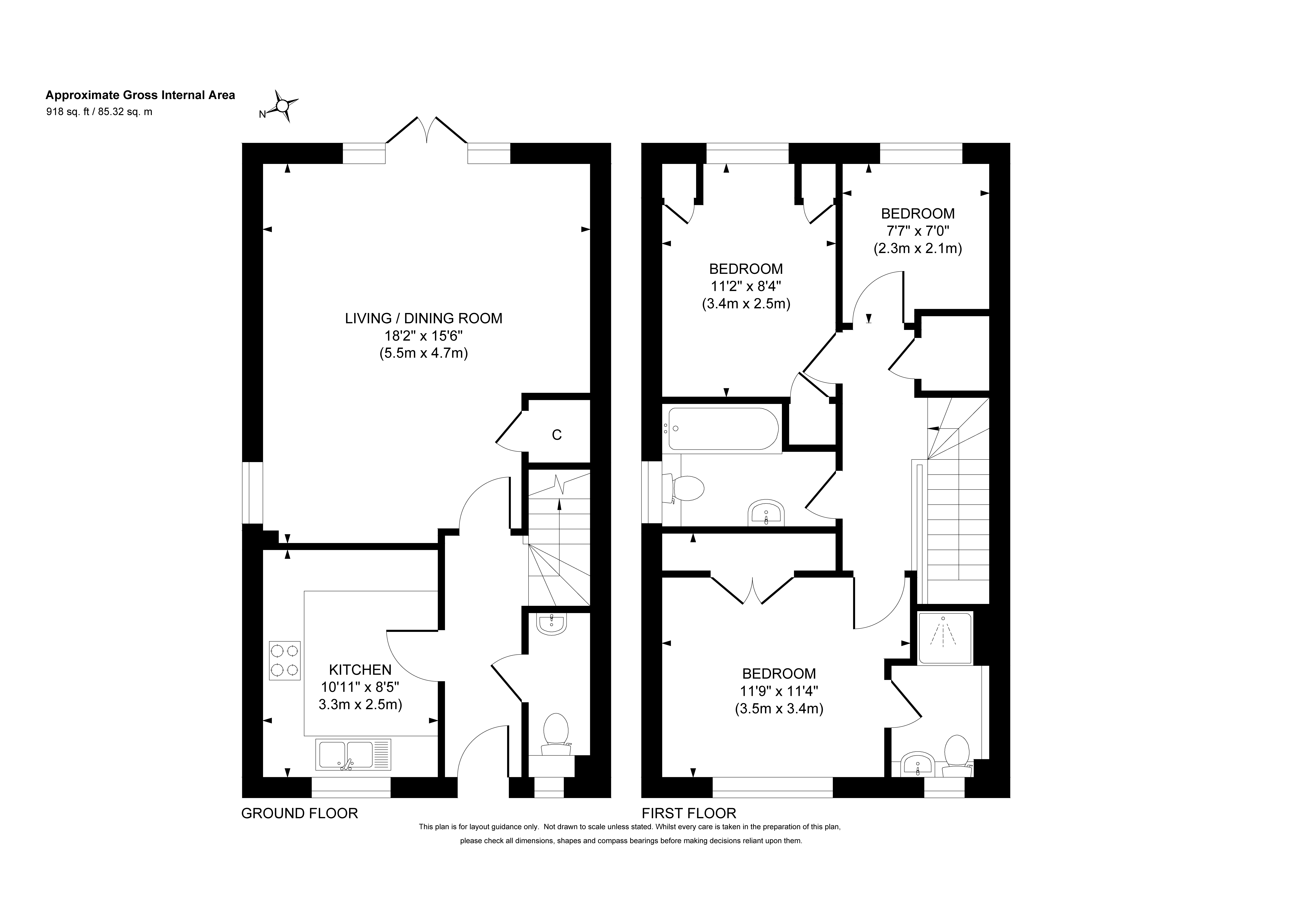
This attractive home offers modern living in a beautifully presented space, complete with two parking spaces and a private garden. The property has been decorated to a high standard throughout, blending style and practicality to create a welcoming and versatile family home.The ground floor features a contemporary kitchen with dark wood-effect cabinetry, sleek black countertops, and ample cupboard space. To the rear, the spacious living and dining room is an inviting area with wood-effect flooring, cream walls, and a striking feature dark blue wall. Double glass doors flood the space with natural light and provide direct access to the garden. A built-in entertainment unit in rich dark wood tones serves as a stylish focal point. Completing the downstairs is a convenient cloakroom.Upstairs, the principal bedroom is generous in size and finished in calming neutral tones. Built-in wardrobes add practicality, while the en-suite offers modern fittings, including a stand-up shower and a heated towel rail. The second bedroom is also well-proportioned, decorated in pale blue tones and benefitting from fitted wardrobes. The third bedroom, with baby blue walls, is perfect for a guest room, nursery, or home office. A family bathroom continues the home's clean, modern design with white tiling around the bath/shower and a decorative trim.The outdoor space is both private and stylish, with fencing enclosing the neat garden. A tiled patio area leads onto a well-maintained lawn, and a raised patio at the rear creates an ideal spot for entertaining or relaxing. This well-appointed home is ready to move into and offers both comfort and practicality in a desirable setting.

Merrow Park is situated approximately 3 miles to the North East of Guildford Town Centre, which provides a wide range of shopping amenities together with two stations having services to London.   Within the development there is a doctor's surgery, a chemist and a delicatessen, with a Sainsbury s super store at nearby Burpham. The Spectrum leisure complex offering a variety of activities is within 2 miles as is access onto the A3 northbound carriageway leading to London and the M25 interchange which is gained from the outskirts of Burpham. Both St Peters Roman Catholic School and George Abbot School are located within one mile and Merrow Infant School is within walking distance.

Important Information

  • This is a Freehold property.

Property Ref: 417896_BUR250302

Share:

Similar Properties

Guildford, Surrey, GU4

4 Bedroom Link Detached House | Guide Price £550,000

Located in a small cul-de-sac within Weybrook Park, close to Burpham Village amenities and popular schools, a three-bedr...

Jacob's Well, Guildford, Surrey, GU4

3 Bedroom Semi-Detached House | Guide Price £550,000

This beautifully presented semi-detached house is located in the desirable area of Jacob's Well and has been finished to...

Guildford, Surrey, GU1

3 Bedroom End of Terrace House | Guide Price £550,000

This attractive end-of-terrace house offers a wonderful opportunity for buyers seeking a move-in-ready home with a smoot...

Burpham, Guildford, Surrey, GU4

3 Bedroom End of Terrace House | Guide Price £560,000

A three-bedroom end-of-terrace house which has been extended to create spacious family living accommodation with a large...

Merrow, Guildford, Surrey, GU1

2 Bedroom Semi-Detached House | Guide Price £570,000

This charming two-bedroom character cottage is located in a sought-after road close to Merrow Downs and local amenities....

Merrow Park, Guildford, Surrey, GU4

3 Bedroom Link Detached House | Guide Price £572,500

This beautifully presented three bedroom link detached house is located in the desirable area of Merrow Park, close to l...

Seymours (Burpham)

Burpham, Surrey, GU1 1YP

01483 300667

How much is your home worth?

Use our short form to request a valuation of your property.

Request a Valuation

Mortgage Calculator

Amount Borrowed: £
Total Amount Repayable: £
Total Monthly Payment: £
©2025 The Guild of Property Professionals. All rights reserved. Terms and Conditions | Privacy Policy | Cookie Policy | Complaints Policy | Members Login
The Guild of Property Professionals Trading Address: 121 Park Lane, London W1K 7AG. GPEA Limited. Registered in England & Wales.  Company No: 02819824.  Registered Office Address: 2 St. Stephen's Court, St. Stephen's Road, Bournemouth, Dorset, England, BH2 6LA.  VAT Registration No: 576 8795 61
Book a Property Valuation Update Cookies Preferences