Leach Lane, Sutton Leach, St Helens, WA9 4NA

Offers Over
£395,000
SSTC
This property listing is now SSTC

3 Bedroom Detached House for sale in Sutton Leach

3 3 2
  • EPC: D
  • Council Tax Band: D - St Helens
  • Freehold
  • No Chain
  • Detached Edwardian Property
  • Three Reception Rooms
  • Annex To The Rear
  • Three / Four Good Sized Bedrooms
  • Large Driveway
  • Triple Glazed And New Roof (2025)

Positioned within a highly sought-after residential setting, this distinguished three/four-bedroom detached freehold residence offers an exceptional opportunity to acquire a home that harmoniously balances timeless character with modern-day sophistication. Impeccably presented and thoughtfully designed, the property exudes an understated elegance that will appeal to buyers in search of a refined and versatile living environment.

Attention to detail is evident throughout, with recent upgrades including triple glazing and a newly fitted roof, delivering both energy efficiency and long-term peace of mind. From the moment you step inside, the sense of space and comfort is immediately apparent. Through the entrance porch and hallway, the principal lounge is generously proportioned, showcasing a warm and inviting atmosphere that is ideal for both everyday living and formal occasions. A secondary sitting room provides a more intimate retreat, perfect for relaxation or quiet reflection. The formal dining room creates an elegant backdrop for hosting family gatherings or entertaining guests, while the open-plan kitchen and living area forms the true heart of the home. Designed with both style and practicality in mind, this space seamlessly blends contemporary convenience with a welcoming ambience, making it perfectly suited to modern lifestyles.

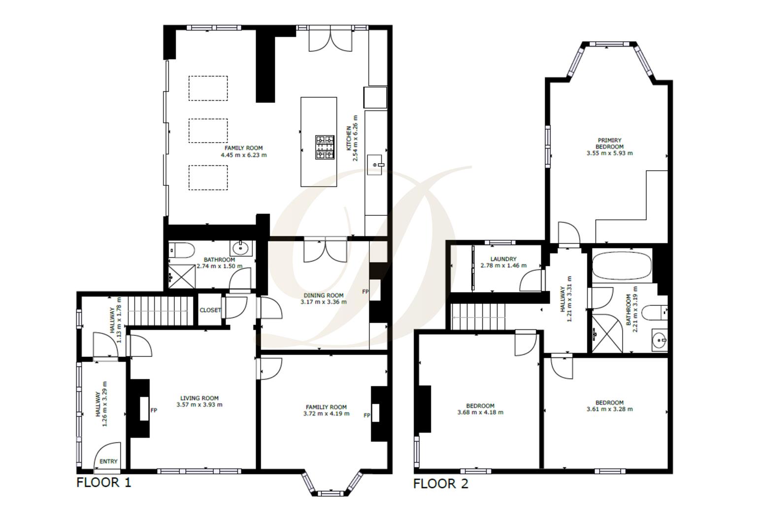
To the first floor hosts three well-appointed double bedrooms and a further fourth room currently utilised as a utility adds further adaptability, perfectly suited as a nursery, dressing room, or fourth bedroom.

Externally, the property benefits from a generous driveway with capacity for four to five vehicles, a rare advantage in such a desirable location. To the rear, a self-contained annexe further elevates the home's versatility, offering endless potential for guest accommodation, multi-generational living, or a private home office.

EPC: D

Entrance | Hallway - 1.26 x 3.29 (4'1" x 10'9") -

Hallway - 1.13 x 1.78 (3'8" x 5'10") -

Reception Room One - 3.57 x 3.93 (11'8" x 12'10") -

Reception Room Two - 3.72 x 4.19 (12'2" x 13'8") -

Reception Room Three - 3.17 x 3.36 (10'4" x 11'0") -

Kitchen - 2.54 x 6.23 (8'3" x 20'5") -

Family Area - 4.45 x 6.23 (14'7" x 20'5") -

First Floor Landing - 1.21 x 3.31 (3'11" x 10'10") -

Bathroom - 2.21 x 3.19 (7'3" x 10'5") -

Bedroom One - 3.55 x 5.93 (11'7" x 19'5") -

Bedroom Two - 3.68 x 4.18 (12'0" x 13'8") -

Bedroom Three - 3.61 x 3.28 (11'10" x 10'9") -

Can Be Utilised As:- Bedroom Four | Utility Room - 2.78 x 1.46 (9'1" x 4'9") -

Property Ref: 485005_34124915

Share:

Similar Properties

Knowsley Park Lane, Prescot, L34 3NA

3 Bedroom Detached Bungalow | Offers Over £395,000

David Davies Sales & Lettings Agent is delighted to present this exceptional detached split-level bungalow located on th...

Hill Top Road, Rainford, St Helens, WA11 7QS

3 Bedroom Detached House | £385,000

David Davies Sales & Lettings are delighted to present this three-bedroom detached dormer bungalow, offering an exceptio...

Highfield Drive, Crank, St Helens, WA11 7SE

3 Bedroom Detached House | £380,000

David Davies Sales and Lettings are pleased to present this spacious and extended traditional detached property to the s...

Garswood Road, Billinge, Wigan, WN5 7TH

3 Bedroom Detached Bungalow | Offers Over £425,000

It is with great pleasure that we offer to the sales market this very well presented three bedroomed, detached, FREEHOLD...

Potteries Way, Rainford, St Helens, WA11 8GP

4 Bedroom Detached House | Guide Price £425,000

David Davies Sales And Lettings Agent bring to the sales market this immaculate four bedroomed detached family home. The...

Ashfield Crescent, Billinge, Wigan, WN5 7TE

4 Bedroom Detached House | Guide Price £430,000

David Davies Sales & Lettings Agent are delighted to have the opportunity to bring to the sales market this four bedroom...

David Davies Estate Agent (St Helens)

St Helens, Lancashire, WA10 4RB

01744885753

How much is your home worth?

Use our short form to request a valuation of your property.

Request a Valuation

Mortgage Calculator

Amount Borrowed: £
Total Amount Repayable: £
Total Monthly Payment: £
©2025 The Guild of Property Professionals. All rights reserved. Terms and Conditions | Privacy Policy | Cookie Policy | Complaints Policy | Members Login
The Guild of Property Professionals Trading Address: 121 Park Lane, London W1K 7AG. GPEA Limited. Registered in England & Wales.  Company No: 02819824.  Registered Office Address: 2 St. Stephen's Court, St. Stephen's Road, Bournemouth, Dorset, England, BH2 6LA.  VAT Registration No: 576 8795 61
Book a Property Valuation Update Cookies Preferences