South Brentor, Tavistock

Offers in excess of
£300,000
SSTC
This property listing is now SSTC

2 Bedroom Barn Conversion for sale in TAVISTOCK

1 2 1
  • Character Barn Conversion
  • Beautiful Far-Reaching Views
  • Spacious Kitchen/Dining Room
  • Separate Sitting Room with Log Burner
  • Double Glazing Throughout
  • Enclosed Garden + Shed
  • Parking for 2 Cars
  • No Onward Chain

Situated in South Brentor on the outskirts of Tavistock is Rose Barn, part of a small complex of barns. The property has been sympathetically converted retaining many of the original roof timbers, some of which have been left exposed adding to the atmosphere of the barn. Oak doors and inset ceiling spotlights make attractive finishing touches as well. You walk through the stable door into a good sized living room with fitted kitchen at one end of the room with plenty of space for a dining table and perhaps seating to enjoy the rural views from the French doors. The modern kitchen has a built in double oven and slimline dishwasher, with space for a washing machine. The sitting room is dual aspect with a part vaulted ceiling, wood burner and enjoys uninterrupted rural views from the rear. Upstairs there are two bedrooms and a modern bathroom with shower. There is double glazing and an electric Thermaflow High-Efficiency central heating system with radiators throughout. The gardens to the rear have a decked area and good sized lawn backing onto fields and enjoying panoramic rural views. There is parking for two cars to the front with an electric gated shared entrance. The property is offered to the market with no onward chain.

Canopy with light over wooden stable door with inset window giving access to:

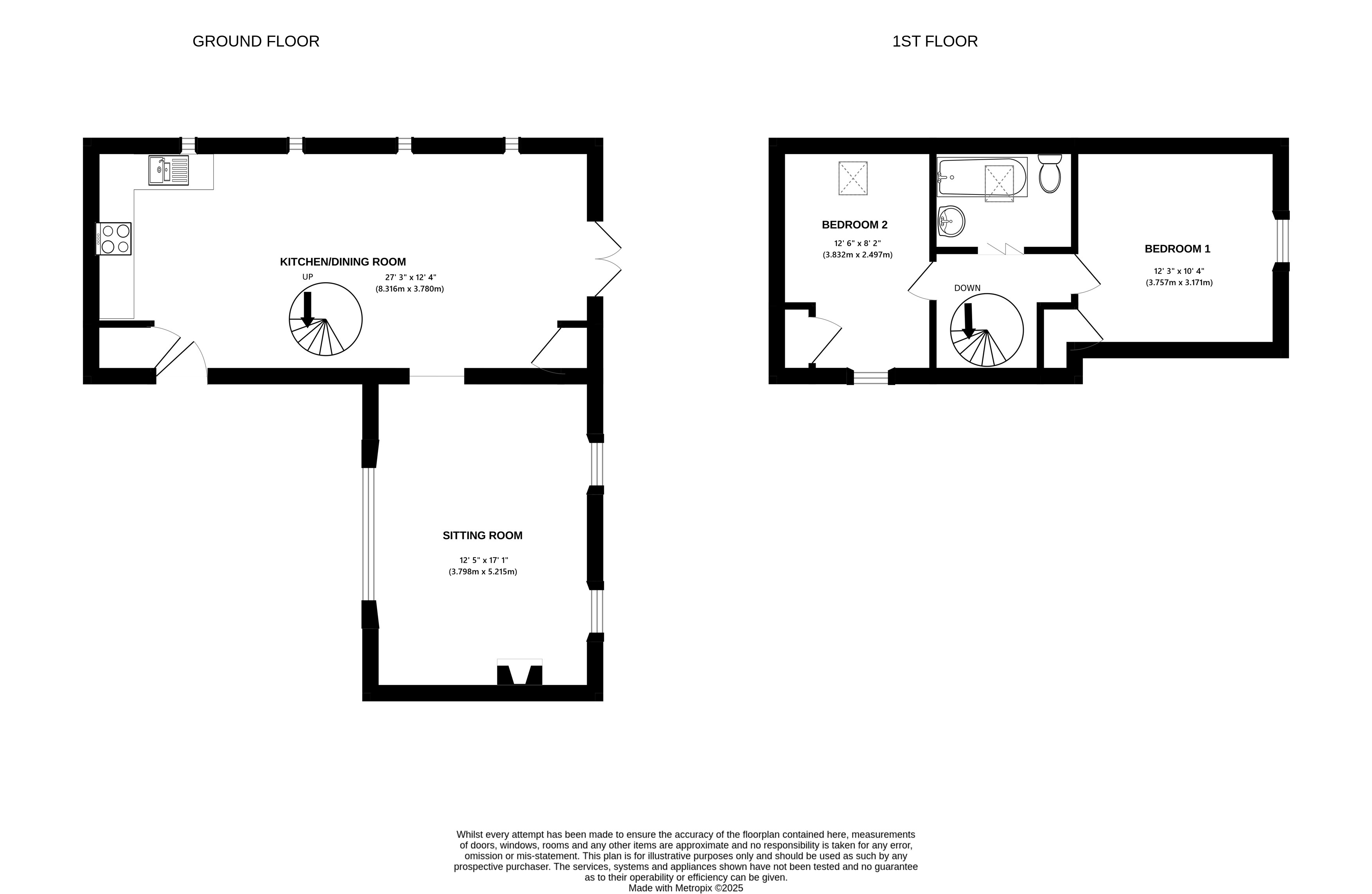
LIVING ROOM/KITCHEN (27' 3" x 12' 4" (8.316m x 3.780m))
Open plan living room with fitted base units and drawers to one end in country cream under roll edge work surfaces with upstands, matching wall cupboards, integrated whirlpool slimline dishwasher, built in stainless steel whirlpool electric double oven with eye level grill, inset four ring electric ceramic hob with cooker hood over and stainless steel splashback, inset stainless steel sink unit with mixer tap, spiral staircase to the first floor, four glazed niche windows to side, inset ceiling lighting, cupboard housing the electric central heating system and hot water cylinder, space for washing machine and fridge/freezer, two radiators, storage cupboard, French doors to the garden, opening to:

SITTING ROOM (12' 5" x 17' 1" (3.798m x 5.215m))
Bright and airy room with vaulted ceiling and two exposed wooden beams, double glazed window to front and two double glazed windows to rear enjoying lovely views over the countryside, wood burner set on a slate hearth with matching back, TV point, wall lights, radiator.

LANDING
Part vaulted ceiling, with part exposed wooden A frame.

MASTER BEDROOM (12' 3" x 10' 4" (3.757m x 3.171m))
Double glazed window to rear enjoying rural views, part vaulted ceiling with exposed beams, inset ceiling lighting, radiator, recess open storage cupboard, built in wardrobe with hanging rail, TV point.

BEDROOM TWO (12' 6" x 8' 2" (3.832m x 2.497m))
Double glazed window to front and velux window to rear, inset ceiling lighting and exposed beams, radiator, TV point, built in wardrobe.

BATHROOM
Suite in white comprising, panelled bath with mixer tap and mains shower over, glazed shower screen, wash hand basin with mixer tap and vanity cupboard under, shaver point, low flush WC, ladder style electric radiator, tiled surrounds and around bath, part vaulted ceiling with exposed beams, inset ceiling lighting and extractor, double glazed velux window.

EXTERNAL
The rear garden backs onto fields and enjoys uninterrupted panoramic countryside views with a decked terrace from the living room/kitchen enclosed by wooden balustrade which steps down to a good sized lawn and an area laid to slate chippings which gives access to the under decking storage area which is ideal for logs storage etc, outside tap. A private shared driveway to the front gives access to a double hard standing laid to slate chippings providing parking for two cars.   

SERVICES
Mains water, electric and shared septic tank.

OUTGOINGS
We understand the property is in band 'B' for council tax purposes by internet enquiry with West Devon Borough Council.

VIEWING
By appointment with Kirby Estate Agents on 01822 612010.

TENURE
Freehold.

MOBILE AND BROADBAND COVERAGE
To check broadband and mobile phone coverage please visit Ofcom here:
ofcom.org.uk/phones-telecoms-and-internet/advice-for-consumers/advice/ofcom-checker

FLOOR PLAN DISCLAIMER
These plans are set out as a guideline only and should not be relied upon as a representation of fact. They are intended for information purposes only and are not to scale.               

PLEASE NOTE
We may refer buyers and sellers through our panel of Conveyancers. It is your decision whether you choose to use their services. Should you decide to use their services you should know that we would receive a referral fee of £150 from them for recommending you. As we provide them with a regular supply of work you benefit from a competitive price.

We also refer buyers and sellers to our Financial Advisers. It is your decision whether you choose to use their services. Should you decide to use any of their services you should be aware that we would receive a average referral fee of £200 from them for recommending you.

You are not under any obligation to use the services of any of the recommended providers, though should you accept our recommendation the provider is expected to pay us the corresponding referral fee.

Prior to a sale being agreed and solicitors instructed, prospective purchasers will be required to produce identification documents to comply with Money Laundering regulations.

MONEY LAUNDERING
Before any sale is formally agreed, we have a legal obligation under the Money Laundering regulations and Terrorist Financing Act 2017 to obtain proof of your identity and of your address, take copies and retain on file for five years and will only be used for this purpose.

We carry out this through a secure platform to protect your data. Each purchaser will be required to pay £20 upon an offer verbally being agreed to carry out these checks prior to the property being advertised as sale agreed.

what3words: downhill.dolphins.snowmen

Important Information

  • This is a Freehold property.
  • This Council Tax band for this property is: B

Property Ref: 7101_L710212

Share:

Similar Properties

Buckland Monachorum, Yelverton

4 Bedroom Terraced House | Guide Price £300,000

A spacious FOUR BEDROOM property in BUCKLAND MONACHORUM with parking for THREE CARS, large CONSERVATORY, two bathrooms a...

Gunnislake, Cornwall

3 Bedroom Cottage | £300,000

A quirky CHARACTER cottage in Middle Dimson, GUNNISLAKE. With an OPEN PLAN feel, garden room, pretty LANDSCAPED GARDEN,...

Mary Tavy, Tavistock

3 Bedroom Semi-Detached House | Guide Price £265,000

An extended THREE BEDROOM semi-detached home in MARY TAVY, with TWO PARKING SPACES, spacious KITCHEN/DINER, downstairs C...

Drakewalls, Gunnislake

4 Bedroom Detached Bungalow | £320,000

A spacious and well presented 4 DOUBLE BEDROOM bungalow with GARAGE and parking for 3 CARS in Drakewalls, Gunnislake.

Tavistock

2 Bedroom Retirement Property | £330,000

Two bedroom RETIREMENT apartment in FITZFORD LODGE Tavistock with LIFT ACCESS and COMMUNAL FACILITIES including coffee l...

Tavistock

4 Bedroom Town House | Guide Price £330,000

A modern 3/4 BEDROOM town house in TAVISTOCK with a complete ONWARD CHAIN + VIEWS, stylish OPEN PLAN ground floor, good...

Kirby Estate Agents (Tavistock)

Rowden Wood Road, Pitts Cleave, Tavistock, Devon, PL19 0NU

01822 612010

How much is your home worth?

Use our short form to request a valuation of your property.

Request a Valuation

Mortgage Calculator

Amount Borrowed: £
Total Amount Repayable: £
Total Monthly Payment: £
©2026 The Guild of Property Professionals. All rights reserved. Terms and Conditions | Privacy Policy | Cookie Policy | Complaints Policy | Members Login
The Guild of Property Professionals Trading Address: 121 Park Lane, London W1K 7AG. GPEA Limited. Registered in England & Wales.  Company No: 02819824.  Registered Office Address: 2 St. Stephen's Court, St. Stephen's Road, Bournemouth, Dorset, England, BH2 6LA.  VAT Registration No: 576 8795 61
Book a Property Valuation Update Cookies Preferences