Wick Road, Teddington

Guide Price
£900,000
SSTC
This property listing is now SSTC

3 Bedroom House for sale in Teddington

2 3 1
  • Character Property
  • Tall ceilings
  • Working Fireplaces
  • Scope to Enlarge STPP
  • Close to Good Schools
  • Sunny Garden
  • Hampton Wick Mainline Station
  • Popular Sideroad



Miles & Bird Estate Agents are proud to present this traditional bay fronted Victorian property in a popular side road location - close to Hampton Wick station and Langdon & Royal Bushy Parks - with high ceilings, working fireplace and a sunny private rear garden.   


 


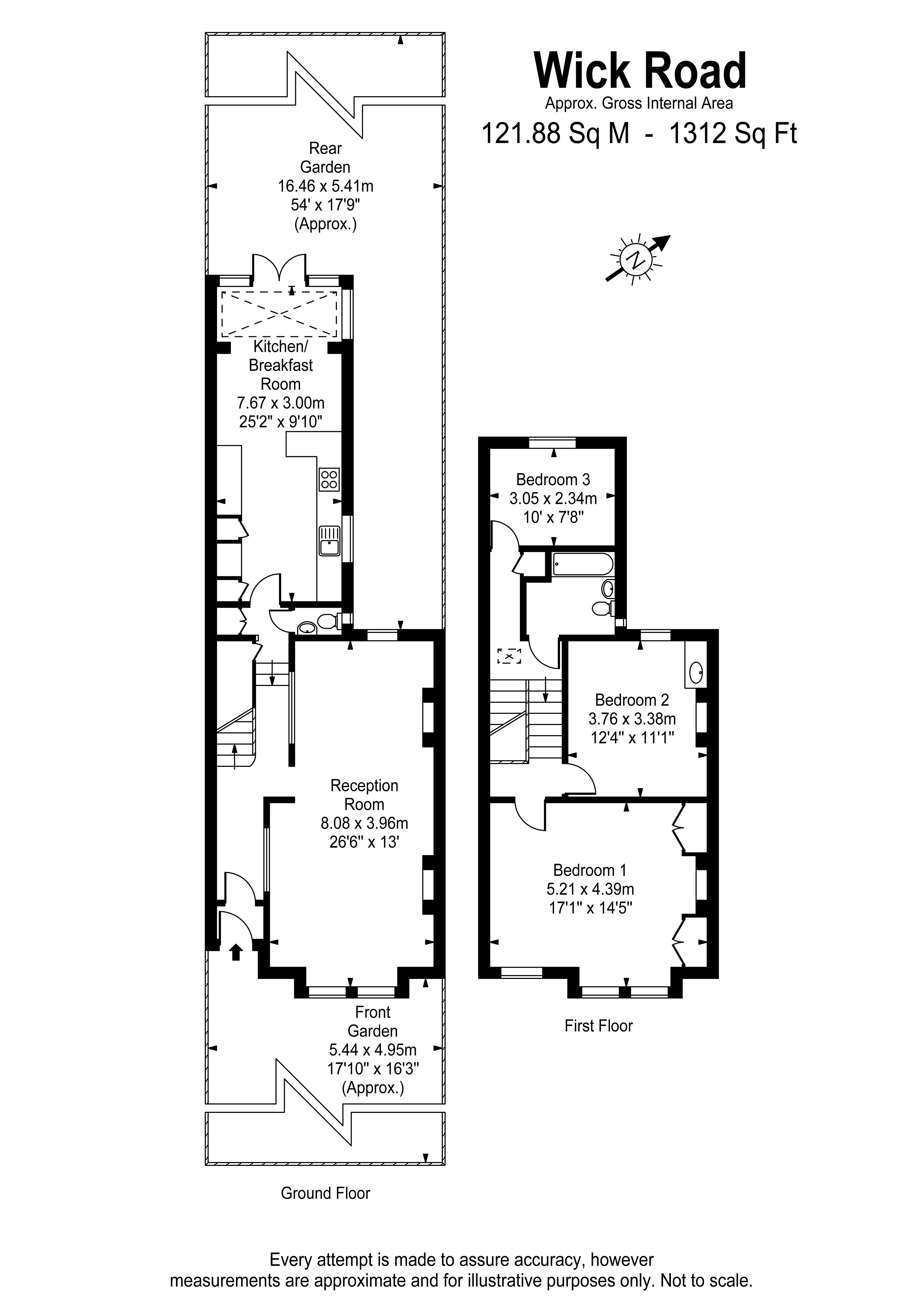
This charming Victorian property boasts attractive "London stock" brickwork, and forms part a delightful terrace of seven houses all enjoying established front gardens with mature trees and hedges.  Internally the floor area already extends to approx. 1,350 sqft / 125 sqm, to represent the natural footprint of the original house, so it could be enlarged quite considerably with a loft extension (creating two further bedrooms and bathroom).  There is also plenty of space to develop the ground floor, both additions would increase the total floor area to approx. 1,900 sqft / 176 sqm.  This work would of course require local authority consent, but likely granted under simple permitted development. 


 


The ground floor provides a comfortable open plan feel with partial "wall openings" for a good visual effect and distribution of light.  The accommodation consists of an elegant double reception room with high ceiling (9' 7" / 2.9m in height) and features two limestone fireplaces, picture rails and cornicing, and is laid with light Oak flooring that also extends through the entrance hall.  An inner lobby provides understairs storage, further cloaks cupboard and a separate guest W/C with wash basin.  To complete the ground floor an extended kitchen / breakfast room measuring over 25 ft in length, has lots of storage, and provides space for all necessary appliances.  A new Vaillant boiler was installed September 2016.  


 


The first floor, again with good ceiling height, features an interesting split-level landing with large skylight window.  The upper landing opens to two double bedrooms, the main bedroom with a lovely cast iron fireplace, the room measuring a sizeable 17' x 14'.  This room could easily be divided to add a bathroom, study or nursery (if desired) and would still be left with a good double bedroom.  The rooms features a lovely window seat to the bay and built-in alcove wardrobes.  On the lower landing is access to a good size third bedroom, airing cupboard, and family bathroom.  


 


Externally the gardens are well stocked, the rear garden has an Indian sandstone patio with the remainder being lawned.  With its westerly aspect the patio is a good space to catch late afternoon early evening sunset.  External light over the patio, water tap and two timber storage sheds are located down the side return.  There is also useful rear pedestrian access.         

 

 

 

 

Important Information

  • This is a Freehold property.

Property Ref: EAXML14612_7759544

Share:

Similar Properties

Matham Road, East Molesey

3 Bedroom House | Offers in excess of £900,000

An elegant late Victorian semi-detached villa of immense charm and character situated in one of East Molesey's most desi...

Hurst Lane, East Molesey

3 Bedroom House | Guide Price £900,000

A well presented 1950s three-bedroomed detached house enjoying a secluded road position with substantial gardens offerin...

Greenwood Road, Thames Ditton

3 Bedroom House | Guide Price £900,000

This most appealing Tudor style detached family home falls within the catchment of the highly sought after Hinchley Wood...

Walton Road, East Molesey

4 Bedroom House | Guide Price £920,000

A charming four bedroom, three bathroom, semi-detached family home complimented by a superb 60 x 25ft south facing rear...

Nightingale Road, West Molesey

4 Bedroom House | Guide Price £925,000

An extended and tastefully renovated four bedroom, three bathroom, family home set within a highly coveted Molesey side...

Nightingale Road, West Molesey

3 Bedroom House | Guide Price £925,000

A classic Victorian bay-fronted three bedroom, two bathroom, semi-detached family home with private off-street parking a...

Miles & Bird (East Molesey)

East Molesey, Surrey, KT8 9HA

020 3875 3875

How much is your home worth?

Use our short form to request a valuation of your property.

Request a Valuation

Mortgage Calculator

Amount Borrowed: £
Total Amount Repayable: £
Total Monthly Payment: £
©2026 The Guild of Property Professionals. All rights reserved. Terms and Conditions | Privacy Policy | Cookie Policy | Complaints Policy | Members Login
The Guild of Property Professionals Trading Address: 121 Park Lane, London W1K 7AG. GPEA Limited. Registered in England & Wales.  Company No: 02819824.  Registered Office Address: 2 St. Stephen's Court, St. Stephen's Road, Bournemouth, Dorset, England, BH2 6LA.  VAT Registration No: 576 8795 61
Book a Property Valuation Update Cookies Preferences