Walton Road, East Molesey

Guide Price
£920,000
SSTC
This property listing is now SSTC

4 Bedroom House for sale in East Molesey

2 4 3
  • Handsome Edwardian Semi
  • Charming Period Features
  • Extended & Refurbished
  • Open plan Kitchen/Dining/Living
  • Heart of East Molesey
  • Bi-fold doors to Garden
  • South Facing Garden
  • Three bathrooms
  • Private OSP
  • Downstairs W.C 

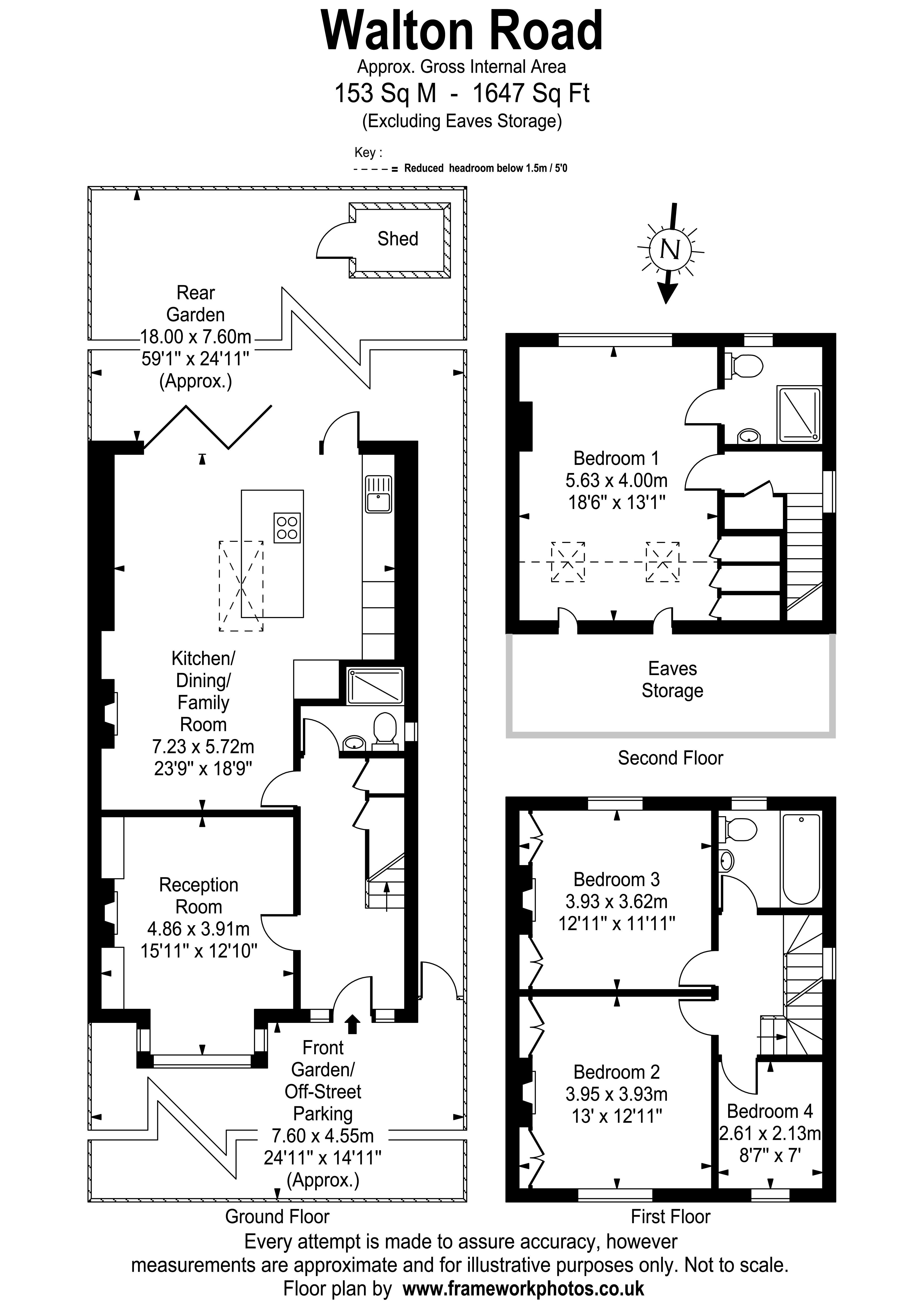
A charming four bedroom, three bathroom, semi-detached family home complimented by a superb 60 x 25ft south facing rear garden and private off-street-parking.



This delightful Edwardian period property has been tastefully refurbished and extended by the current owners to effortlessly combine classic elegance with modern furnishings.  Delightful period features are on display in abundance with high ceilings, column radiators, and decorative cast-iron fireplaces; all beautifully off-set against a back drop of both contemporary and traditional colour palettes.  



The ground floor provides a traditional covered storm porch with pendant lamp, panelled front door with frosted side panes and a numbered fanlight.  This leads to a good size hallway with built-in shoe and meter cupboards, as well two useful under stair store cupboards; one housing space for a condenser dryer.  The front sitting room is an inviting space with its bay window and a captivating working fireplace centred around matching alcove cabinetry and floating shelves.  



At the back of the house the original middle reception room and single kitchen are now combined with a 'full width' rear extension to create a show stopping open-plan kitchen/dining/family room with skylight and bi-fold doors opening out to same-level decking.   



A stylish kitchen with its central breakfast island comes with a range of integrated appliances, and also provides spaces for a plumbed American style Fridge-freezer and wine cooler.  The entire space overlooks the garden, and bathes in natural light.  The family and dining areas flow seamlessly into each other; the focal point of the sitting area is an impressive limestone fireplace having cast-iron centrepiece with Art-Nouveau tiled slips. Inbuilt ceiling speakers are fitted to the two main reception rooms, as well as the top floor principle bedroom and ensuite shower room. To complete the ground floor there is wet-room style shower room and combined guest W.C fitted with Geberit sanitary ware.  



An original staircase with balustrades and newel posts rises to the first floor landing.  This lovely staircase continues to the top floor.   The first floor has equally good ceiling height, and reveals three bedrooms (two doubles and a good single), the two doubles both feature fitted wardrobes and ornamental fireplaces.  A family bathroom with natural slate tiling, and Villeroy & Boch sanity ware completes this floor.  The whole top floor is dedicated to a principle bedroom suite again with lots of natural light, fitted storage, and a modern fitted ensuite shower room.  An attractive floor-to-ceiling window is worthy of particular note which enjoys elevated views over gardens and trees.         



Outside, a fabulous sunny rear garden boasts an incredibly private and secluded outlook for such a central location.   It is well maintained with central lawn and raised decking adjacent to the house, external wall lights, power and water tap; the whole garden is surrounded by close-boarded fencing, and has useful side access.  In addition, a rear area houses useful bike store and tool sheds.   



Location:  Located in the heart of Molesey with everything accessible and on the doorstep.  Superb local amenities, shops & restaurants and Tesco local is less than 2 minutes walk.  Popular Bridge Road, often referenced as Hampton Court Village, has popular independent retailers, pavement cafes, and restaurants, as well as Hampton Court Station (0.65 miles) providing regular trains into London Waterloo from 35 minutes. Direct road links via the nearby A3, M3 and M25 make for easy access to London’s airports.  Recreational facilities are plentiful including East Molesey Cricket and Boat Clubs, both found on Thames towpath.  Hampton Court Palace plays host to an array of cultural and music festivals during summer months, whilst two Royal Parks (plus Hurst Park) provide beautiful green open spaces for walking, jogging and cycling all year round.  Elmbridge Borough is also popular with families due to excellent schooling options, including nearby Orchard infant, and St. Lawrence Junior with St. Albans Catholic Primary School awarded best performing junior school by surrey county council in recent years.

 

Important Information

  • This is a Freehold property.

Property Ref: EAXML14612_12380986

Share:

Similar Properties

Wick Road, Teddington

3 Bedroom House | Guide Price £900,000

Miles & Bird Estate Agents are proud to present this traditional bay fronted Victorian property in a popular side road...

Matham Road, East Molesey

3 Bedroom House | Offers in excess of £900,000

An elegant late Victorian semi-detached villa of immense charm and character situated in one of East Molesey's most desi...

Hurst Lane, East Molesey

3 Bedroom House | Guide Price £900,000

A well presented 1950s three-bedroomed detached house enjoying a secluded road position with substantial gardens offerin...

Nightingale Road, West Molesey

3 Bedroom House | Guide Price £925,000

A classic Victorian bay-fronted three bedroom, two bathroom, semi-detached family home with private off-street parking a...

Nightingale Road, West Molesey

4 Bedroom Semi-Detached House | Guide Price £925,000

An extended and tastefully renovated four bedroom, three bathroom, family home set within a highly coveted Molesey side...

Quinton Road, Thames Ditton

3 Bedroom House | Asking Price £925,000

Miles & Bird are delighted to announce the launch of a pair of brand new semi-detached houses in a cul-de-sac location n...

Miles & Bird (East Molesey)

East Molesey, Surrey, KT8 9HA

020 3875 3875

How much is your home worth?

Use our short form to request a valuation of your property.

Request a Valuation

Mortgage Calculator

Amount Borrowed: £
Total Amount Repayable: £
Total Monthly Payment: £
©2026 The Guild of Property Professionals. All rights reserved. Terms and Conditions | Privacy Policy | Cookie Policy | Complaints Policy | Members Login
The Guild of Property Professionals Trading Address: 121 Park Lane, London W1K 7AG. GPEA Limited. Registered in England & Wales.  Company No: 02819824.  Registered Office Address: 2 St. Stephen's Court, St. Stephen's Road, Bournemouth, Dorset, England, BH2 6LA.  VAT Registration No: 576 8795 61
Book a Property Valuation Update Cookies Preferences