Sherwood Road, Tetbury

£360,000
SSTC
This property listing is now SSTC

2 Bedroom Semi-Detached House for sale in Tetbury

2 2 1
  • Semi-detached house
  • Excellent scope to extend and update
  • 2 bedrooms
  • Living room
  • Kitchen and garden room
  • Two driveways and garage
  • South-facing garden
  • Popular location convenient for the town centre

Description
This semi-detached house is located on Sherwood Road within a popular residential area conveniently close to Tetbury town centre. Occupying an impressive corner plot, the property presents significant potential for future expansion, with neighbouring homes having successfully undertaken attic conversions and extensions. A notable benefit of this home is its generous private parking, featuring a driveway at the front and an additional gated drive to the side, perfectly suited for a campervan or extra vehicles.
 
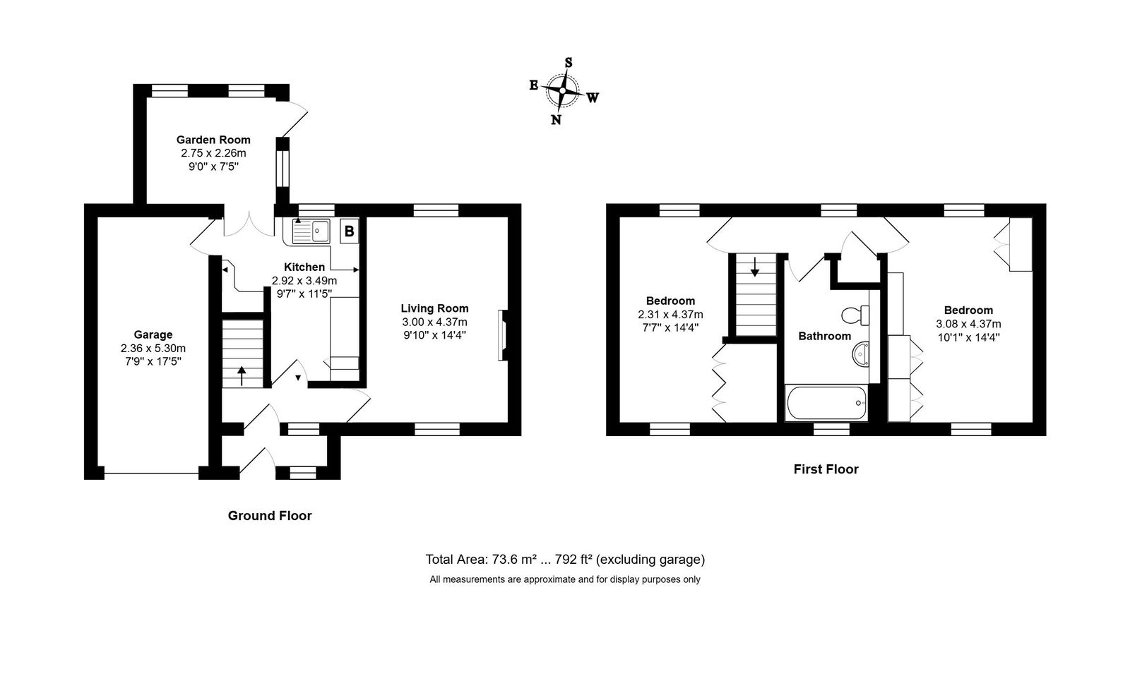
Spanning 792 sq ft, the internal living space on the ground floor includes a front porch, a dual-aspect living room, and a practical kitchen. The kitchen connects to a rear garden room, complete with underfloor heating. Furthermore, the kitchen offers convenient side access into the garage. Upstairs, the first floor comprises two dual-aspect bedrooms, both benefiting from fitted storage, alongside a family bathroom featuring a shower over the bath.
 
The sunny, south-facing rear garden is attractively landscaped into two distinct terraces featuring a patio area alongside a lawn, with an additional lower-level garden space for further enjoyment.
Situation
Tetbury is a thriving historic Cotswold market town with much of it dating back to the 17th and 18th Centuries. The town has a broad range of shops and amenities for everyday needs as well as a number of quality antique shops, excellent hotels, restaurants and cafes within the town centre. Further everyday needs include a large supermarket, hospital, surgeries and post office whilst there are also excellent schools catering for all ages. Voted by Country Life magazine recently as the third most desirable town in the country, Tetbury is situated within an Area of Outstanding Natural Beauty and is surrounded by delightful Cotswold Countryside where there are ample opportunities for walking. Conveniently located less than half an hour from both the M4 and M5 motorway, Tetbury is within easy reach of Cirencester, Cheltenham, Bath, Bristol and Swindon. Close by is the beautiful Forest Commission run Westonbirt Arboretum and King Charles' Highgrove Estate. There is good access to nearby Kemble Railway Station which provides regular fast services to London and other regional centres.
Additional Information
The property is Freehold with mains gas central heating, mains drainage, water and electricity. The property is located within the Cotswold Area of Outstanding Natural Beauty. Superfast broadband is available. Information taken from the Ofcom mobile and broadband checker, please see the website for more information and mobile phone coverage. Cotswold District Council Tax Band C.

Important Information

  • This is a Freehold property.
  • This Council Tax band for this property is: C

Property Ref: 1379408

Share:

Similar Properties

Long Street, Tetbury

2 Bedroom Apartment | £359,000

This substantial three-storey apartment offering around 1,270 sq.ft. of accommodation, boasts magnificent character and...

Watts Lane, Hullavington

2 Bedroom Semi-Detached House | £350,000

This stunning character cottage has undergone an extensive renovation finished to a very high standard. No onward chain.

Gloucester Street, Malmesbury

2 Bedroom Cottage | £350,000

Primely positioned opposite the Abbey, this characterful Grade II listed cottage features a plethora of charm.

The Street, Hullavington

3 Bedroom Bungalow | Guide Price £370,000

Set amongst front and rear gardens with plenty of parking and a garage, a detached modern 3 bedroom bungalow located wit...

Avenue De Gien, Malmesbury

4 Bedroom End of Terrace House | £390,000

With two driveways, a garage, and a south-facing enclosed garden, an excellent end of terraced three-storey modern famil...

Hunloke Way, Malmesbury

3 Bedroom End of Terrace House | £390,000

Enjoying peace and tranquillity, this well-presented 3 bedroom homes boasts a sunny waterside position overlooking the R...

James Pyle & Co (Sherston)

Swan Barton, Sherston, Wiltshire, SN16 0LJ

01666 840886

How much is your home worth?

Use our short form to request a valuation of your property.

Request a Valuation

Mortgage Calculator

Amount Borrowed: £
Total Amount Repayable: £
Total Monthly Payment: £
©2026 The Guild of Property Professionals. All rights reserved. Terms and Conditions | Privacy Policy | Cookie Policy | Complaints Policy | Members Login
The Guild of Property Professionals Trading Address: 121 Park Lane, London W1K 7AG. GPEA Limited. Registered in England & Wales.  Company No: 02819824.  Registered Office Address: 2 St. Stephen's Court, St. Stephen's Road, Bournemouth, Dorset, England, BH2 6LA.  VAT Registration No: 576 8795 61
Book a Property Valuation Update Cookies Preferences