The Forge and The Old Forge, West Lutton, Malton YO17 8TA

Guide Price
£850,000

4 Bedroom Detached House for sale in The Forge, West Lutton

3 4 2
  • MAIN HOUSE, STUDIO/OFFICE AND HOLIDAY COTTAGE
  • SUITABLE FOR MULTI-GENERATIONAL LIVING
  • IMMACULATELY PRESENTED TO A HIGH STANDARD
  • IDYLLIC AND PEACEFUL VILLAGE LOCATION
  • GARDEN, PATIO, SHED, GREENHOUSE, SUMMER HOUSE

This period-property dating back to 1855 comprises of a four-bedroom detached house 'The Forge', a large office/studio space, additional laundry room/utility and separate four-bedroom cottage 'The Old Forge' which has been recently used as a holiday cottage. Set back from the road, next to the village church and surrounded by open fields this property is a perfect place to retreat to and makes a fantastic family home, with a large garden, limestone patio, driveway and spacious garage with electric.

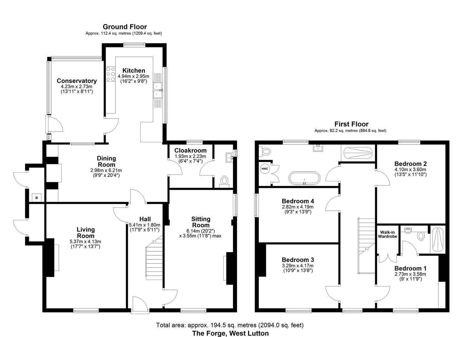
The Forge is exquisitely finished, with pine doors, oak flooring, wooden-sash windows and double-glazing throughout. In brief, the property comprises a hallway, sitting room and living room both with open fires, a spacious open-plan kitchen/dining room with log burning stove, cloakroom, wc and a beautiful conservatory with exposed brick overlooking the patio and garden. To the first floor are four well-proportioned double bedrooms, bedroom one is ensuite, with a walk-in wardrobe, and a spacious house bathroom comprises a walk-in shower and free-standing roll-top bath.

The studio/office space provides a unique work-from home location or could be used as additional holiday home or gym/yoga studio. Situated on the first floor, it has plenty of natural light, with stunning original exposed roof beams, engineered oak flooring and electric heating. The utility/laundry room boasts ample storage, a linen cupboard and plumbing for a washer and dryer.

The Old Forge is a single-storey four bedroom cottage retaining many original features which has been imaginatively renovated. The cottage has natural stone floors, beamed ceilings and a cosy wood burning stove set in a stunning brick fireplace modelled on one of the three original curved chimneys. The cottage has underfloor heating throughout, with thermostatic controls are in each room to allow individual room temperature control.

The Forge -

Hall - 5.41 x 1.80 (17'8" x 5'10") - Carpeted staircase, dado rail, solid oak floor.

Sitting Room - 6.14m x 3.55m (20'1" x 11'7") - Open fire, stone fireplace, coving, picture rails and solid oak floor.

Living Room - 5.37 x 4.13 (17'7" x 13'6") - Slate fireplace and gas fire, coving, picture rails and engineered oak floor.

Wc - Heated towel rail, burlington sink, tiled floor.

Dining Room - 2.98 x 6.21 (9'9" x 20'4") - Wood-burning stove, built-in cupboards and tiled floor.

Kitchen - 4.94 x 2.95 (16'2" x 9'8") - Dual-fuel range cooker, granite worktops, double ceramic belfast sink, integrated fridge, freezer and dishwasher, tiled splashback and upstands, tiled floor.

Cloakroom - 1.93 x 2.23 (6'3" x 7'3") - Wood panelled wall with coat hooks, tiled floor, plumbing and extractor for washer and tumble dryer, tiled floor.

Conservatory - 4.23 x 2.73 (13'10" x 8'11") - Bespoke design with coloured glass detail.

Landing -

Bedroom One - 2.73 x 3.58 (8'11" x 11'8") - Window to front aspect, coving, walk-in wardrobe, ensuite shower, toilet and vanity unit, tiled with vinyl flooring. Power sockets and tv point.

Bedroom Two - 4.10 x 3.60 (13'5" x 11'9") - Window to the rear, coving, power sockets.

Bedroom Three - 3.29 x 4.17 (10'9" x 13'8") - Window to the front aspect, coving, power sockets.

Bedroom Four - 2.82 x 4.19 (9'3" x 13'8") - Window to the side aspect, coving, power sockets.

Bathroom - Walk-in shower, cupboard with hot water tank and linen cupboard, pull-out storage cupboard, roll top bath, wood panelling and tiled floor.

Studio/Office - 4.63 x 12.65 (15'2" x 41'6") - Engineered oak floor, original beams, electric heaters, velux and upvc windows.

Laundry Room/Utility - 4.62 x 3.39 (15'1" x 11'1") - Plumbing for washer and dryer, ample storage, linen cupboards, limestone effect ceramic tiles.

The Old Forge -

The Old Forge Kitchen Living Area - 3.93 x 9.47 (12'10" x 31'0") - Open-plan kitchen/dining, electric range cooker, wood-burning stove, exposed brick fireplace.

The Old Forge Bedroom One - 3.79 x 3.40 (12'5" x 11'1") - Double ensuite with shower, electric heated towel rail, power socket, tv point and velux window.

The Old Forge Bedroom Two - 3.79 x 2.98 (12'5" x 9'9") - Original beams, tv point, power sockets, velux window.

The Old Forge Bedroom Three - 3.93 x 4.40 (12'10" x 14'5") - Original beams, tv point, power sockets.

The Old Forge Bedroom Four - 3.79 x 3.47 (12'5" x 11'4") - Original beams, tv point, power sockets.

The Old Forge Bathroom - Tiled shower bath, velux window, electric heated towel rail.

The Old Forge Garage - 4.70 x 8.94 (15'5" x 29'3") - Concrete floor, power, sockets, lighting.

The Old Forge Store - 4.85 x 3.05 (15'10" x 10'0") -

Garden - Limestone patio, water feature, lawn, summer house, green house and garden shed.

Driveway - Ample parking for multiple vehicles.

Location - West Lutton lies in the beautiful rolling countryside of the Wolds approximately 12 miles from Malton and some 10 miles from Driffield. There are good local facilities available in both towns and in Malton there is a railway station with regular connections to the East Coast and the City of York. In the village itself there is a primary school and pub. Situated in The Great Wolds Valley alongside The Gypsy Race, a stream which runs through the village and is fed by a natural spring, and overlooking an 'Area of Outstanding Natural Beauty.'

Property Ref: 324579_33934517

Share:

Similar Properties

18 Muston Road, Hunmanby, YO14 0JY

5 Bedroom Detached House | Guide Price £850,000

A RARE BLEND OF HERITAGE AND SEASIDE LIFESTYLE - GRACEFUL VICTORIAN LIVING CLOSE TO THE COAST - SEA VIEWSThis handsome f...

The Forge and The Old Forge, West Lutton, Malton YO17 8TA

4 Bedroom Detached House | Guide Price £850,000

This period-property dating back to 1855 comprises of a four-bedroom detached house 'The Forge', a large office/studio s...

18 Muston Road, Hunmanby, YO14 0JY

5 Bedroom Detached House | Guide Price £850,000

A RARE BLEND OF HERITAGE AND SEASIDE LIFESTYLE - GRACEFUL VICTORIAN LIVING CLOSE TO THE COAST - SEA VIEWSThis handsome f...

The Coach House, Low Street, Thornton Le Clay, York, YO60 7TG

5 Bedroom Detached House | Guide Price £865,000

Striking 5-bedroom home with bay windows. Generous living space, landscaped garden, paddock. Light-filled kitchen, loung...

The Coach House Low Street, Thornton Le Clay, York, YO60 7TG

5 Bedroom Detached House | Guide Price £865,000

A striking, double bay-fronted five-bedroom home in a peaceful village setting, The Coach House offers generous living s...

The Coach House Low Street, Thornton Le Clay, York, YO60 7TG

5 Bedroom Detached House | Guide Price £865,000

A striking, double bay-fronted five-bedroom home in a peaceful village setting, The Coach House offers generous living s...

Willowgreen Estate Agents (Malton)

Malton, North Yorkshire, YO17 7LY

01653 916600

How much is your home worth?

Use our short form to request a valuation of your property.

Request a Valuation

Mortgage Calculator

Amount Borrowed: £
Total Amount Repayable: £
Total Monthly Payment: £
©2026 The Guild of Property Professionals. All rights reserved. Terms and Conditions | Privacy Policy | Cookie Policy | Complaints Policy | Members Login
The Guild of Property Professionals Trading Address: 121 Park Lane, London W1K 7AG. GPEA Limited. Registered in England & Wales.  Company No: 02819824.  Registered Office Address: 2 St. Stephen's Court, St. Stephen's Road, Bournemouth, Dorset, England, BH2 6LA.  VAT Registration No: 576 8795 61
Book a Property Valuation Update Cookies Preferences