The Coach House Low Street, Thornton Le Clay, York, YO60 7TG

Guide Price
£865,000

5 Bedroom Detached House for sale in York

1 5 5
  • Striking five-bedroom residence
  • Peaceful village location
  • Showstopping kitchen/diner
  • Bi-fold doors & roof lantern
  • Juliet balconies & luxury bathrooms
  • Expansive gardens with 0.5 acre paddock
  • Dual-aspect lounge with log burner
  • Solar panels & eco touches

LOCATION
Tucked away in the peaceful North Yorkshire countryside, Thornton-le-Clay is a picturesque village full of rural charm and community spirit. Surrounded by rolling farmland and quiet lanes, it offers the perfect setting for those seeking a traditional village lifestyle.

The village itself is home to a well-regarded primary school, with day-to-day amenities available in nearby villages such as Foston and Strensall. Just a short drive away, Malton, Yorkshire’s Food Capital, provides an abundance of independent shops, award-winning markets, cafés, and restaurants, as well as excellent schooling, rail connections, and easy access to the A64 for York, Leeds and the coast.

For those who love the outdoors, the Howardian Hills Area of Outstanding Natural Beauty is close by, offering endless opportunities for walking, cycling and exploring.

With its charming setting, welcoming community, and convenient links to Malton and York, Thornton-le-Clay is a hidden gem for families, professionals, and anyone seeking a peaceful village home.

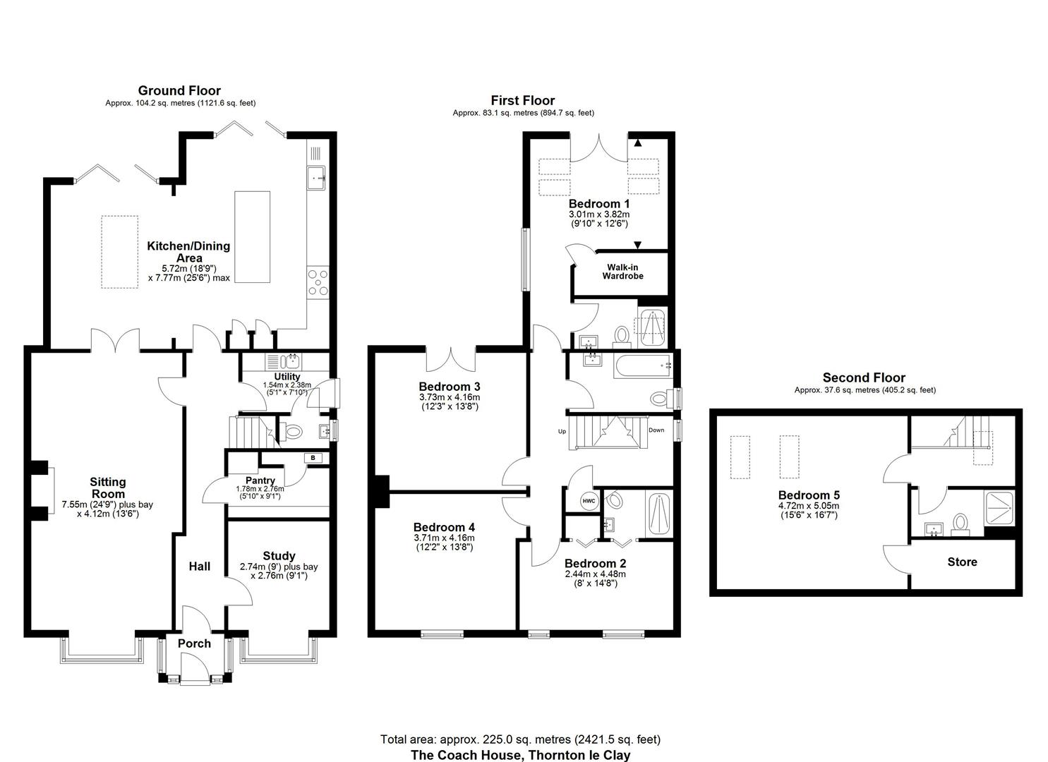
SITTING ROOM
7.55 x 4.12 (24'9" x 13'6")

KITCHEN/DINING ROOM
5.72 x 7.77 (18'9" x 25'5")

SNUG/STUDY
2.74 x 2.76 (8'11" x 9'0")

WALK-IN PANTRY
1.78 x 2.76 (5'10" x 9'0")

UTILITY
1.54 x 2.38 (5'0" x 7'9")

GUEST CLOAKROOM

MASTER BEDROOM
3.01 x 3.52 (9'10" x 11'6")

WALK IN WARDROBE

MAIN BEDROOM EN-SUITE

BEDROOM TWO
2.44 x 4.48 (8'0" x 14'8")

ENSUITE TWO

BEDROOM THREE
3.73 x 4.16 (12'2" x 13'7")

BEDROOM FOUR
3.71 x 4.16 (12'2" x 13'7")

BEDROOM FIVE
4.72 x 5.05 (15'5" x 16'6")

GUEST BATHROOM

EXTERIOR

EPC RATING C

COUNCIL TAX BAND F

Property Ref: 29709_34204287

Share:

Similar Properties

The Coach House Low Street, Thornton Le Clay, York, YO60 7TG

5 Bedroom Detached House | Guide Price £865,000

A striking, double bay-fronted five-bedroom home in a peaceful village setting, The Coach House offers generous living s...

The Coach House, Low Street, Thornton Le Clay, York, YO60 7TG

5 Bedroom Detached House | Guide Price £865,000

Striking 5-bedroom home with bay windows. Generous living space, landscaped garden, paddock. Light-filled kitchen, loung...

18 Muston Road, Hunmanby, YO14 0JY

5 Bedroom Detached House | Guide Price £850,000

A RARE BLEND OF HERITAGE AND SEASIDE LIFESTYLE - GRACEFUL VICTORIAN LIVING CLOSE TO THE COAST - SEA VIEWSThis handsome f...

4 Woodlands Close, Langton Road, Norton, Malton, YO17 9FN

4 Bedroom Detached House | Guide Price £875,000

Exceptional Four-Bedroom Detached Home with Landscaped Gardens, Bespoke Garden Office, and Luxury Features in a Private...

7 Broughton Rise, Malton, YO17 7BW

5 Bedroom Semi-Detached House | Guide Price £875,000

Beautifully refurbished 5-bed Victorian villa near Malton town centre. Original features blend with modern upgrades. Spa...

7, Broughton Rise, Malton, YO17 7BW

5 Bedroom Semi-Detached House | Offers Over £895,000

A beautifully extended and sympathetically refurbished five-bedroom Victorian villa set over four storeys, located withi...

Willowgreen Estate Agents (Malton)

Malton, North Yorkshire, YO17 7LY

01653 916600

How much is your home worth?

Use our short form to request a valuation of your property.

Request a Valuation

Mortgage Calculator

Amount Borrowed: £
Total Amount Repayable: £
Total Monthly Payment: £
©2026 The Guild of Property Professionals. All rights reserved. Terms and Conditions | Privacy Policy | Cookie Policy | Complaints Policy | Members Login
The Guild of Property Professionals Trading Address: 121 Park Lane, London W1K 7AG. GPEA Limited. Registered in England & Wales.  Company No: 02819824.  Registered Office Address: 2 St. Stephen's Court, St. Stephen's Road, Bournemouth, Dorset, England, BH2 6LA.  VAT Registration No: 576 8795 61
Book a Property Valuation Update Cookies Preferences