The Strand, Starcross, EX6

£469,950

4 Bedroom Detached House for sale in The Strand

2 4 2
  • UNIQUE DETACHED HOUSE
  • 4 BEDROOMS
  • MASTER BEDROOM WITH EN SUITE
  • UTILITY ROOM
  • LARGE GARAGE
  • ENCLOSED GARDEN
  • TUCKED AWAY LEVEL LOCATION
  • FREEHOLD
  • COUNCIL TAX BAND - C
  • EPC - C

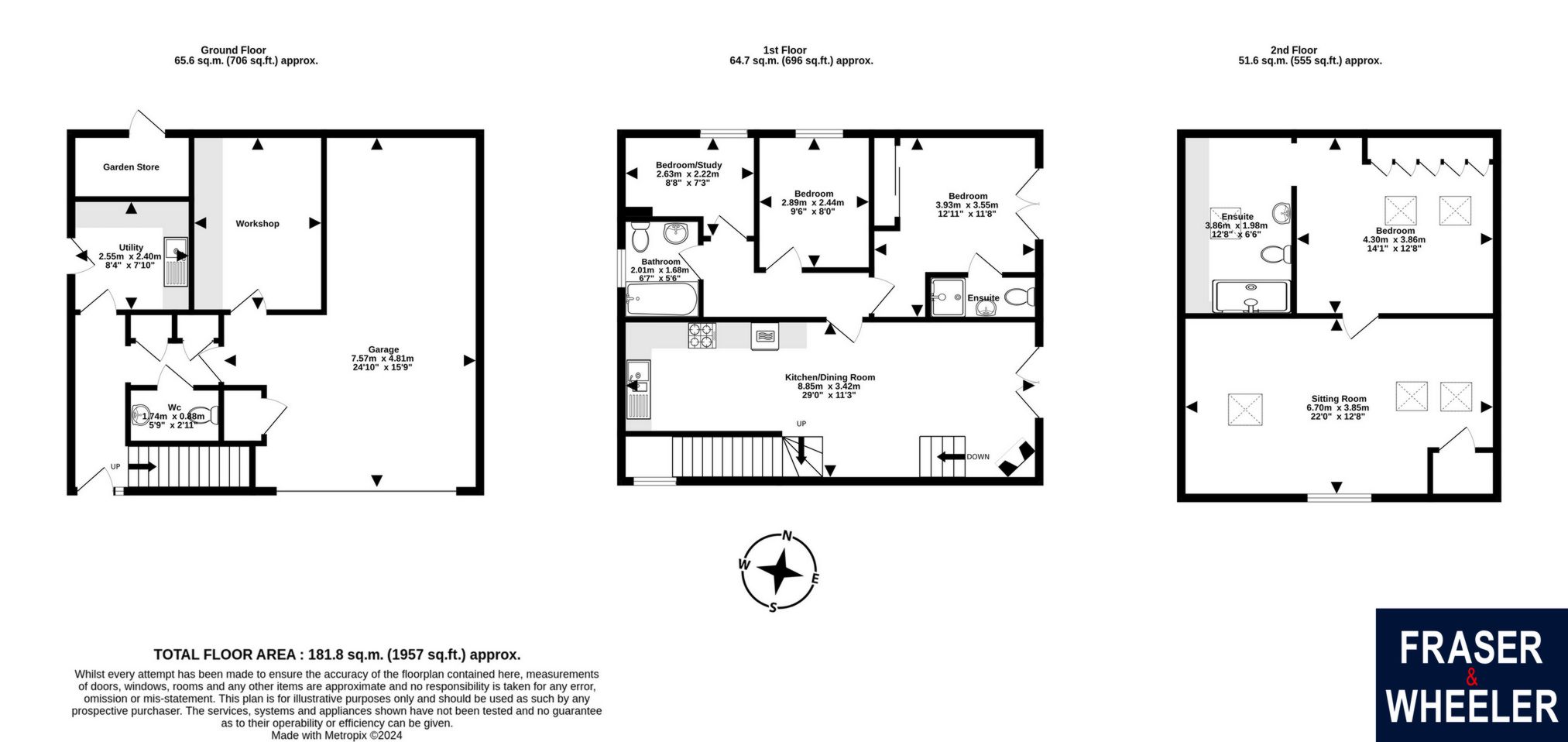
NO ONWARD CHAIN. A unique opportunity to purchase this 4 bedroom detached house of quality with accommodation arranged over 3 floors. The property is situated in a tucked away level position with the advantage of block paved parking behind an electric gate, large integral garage, luxury kitchen/dining room and enclosed garden. FREEHOLD, COUNCIL TAX BAND - C, EPC - C


FRONT DOOR AND SIDE WINDOW TO:

ENTRANCE HALL: Staircase with feature recessed lighting leading to the first floor with part open gallery, tiled floor with underfloor heating, large storage cupboards and doors to:


UTILITY ROOM: Obscure glazed door leading to the rear garden, base and eye level units with roll top work surfaces, stainless steel sink with drainer and mixer tap, plumbing, tiled splash backs and wall mounted fuse box.

CLOAKROOM: Suite comprising WC with concealed cistern, wash hand basin with vanity unit, heated towel rail and extractor fan.


INTEGRAL GARAGE: Electric door, light connected and access to:


WORKSHOP/OFFICE: Light and power connected. This space could be re-opened up to the garage to create a larger garage if necessary.


KITCHEN/DINING ROOM: A lovely light space with stainless steel and glass balustrade providing an open gallery to the ground floor, staircase leading to the second floor again with glass, stainless steel and recessed lighting, double glazed door to the front with Juliet Balcony, high gloss units with quartz worktops over, inset sink unit, electric hob with feature extractor over, eye level double oven, fitted dishwasher, fridge, under lighting, space for a good size table and chairs. Door to:


INNER HALL: Lighting and doors to:

BEDROOM 2: Fitted wardrobes, doors to the front with Juliet Balcony and door to:

EN SUITE SHOWER ROOM: Suite comprising WC, wash hand basin, shower enclosure, heated towel rail, extractor fan, tiled walls and floor.

BEDROOM 3: Window to the side and wall mounted TV point.

BEDROOM 4/STUDY: window to the side, currently used as an office but could be used as a single bedroom.

FAMILY BATHROOM: Suite comprising WC and sink unit in a concealed unit with storage, bath with rainfall shower and glass screen over, heated towel rail, tiled walls, floor and obscure glazed window to the rear.

SITTING ROOM: A lovely bright space with window to the side taking in some Estuary glimpses, 2 electrically operated Velux windows, eaves storage space , spot lights radiator and door to:


MASTER BEDROOM: Electrically operated Velux window, radiator, bespoke fitted wardrobes, spot lights and open to:


EN SUITE SHOWER ROOM: Electrically operated Velux window to the rear, Shower enclosure, WC, wash hand basin, bespoke fitted storage, spot lights, extractor and heated towel rail.


OUTSIDE: The property is approached via an electric gate providing access to number 1 and 2 Strand Gardens, a brick paved driveway provides off road parking and leads to the rear of the property and also provides access to the garage. The rear garden is level and mainly laid to lawn with paved patio, raised decking, majority wall sound and access to an external garden store.


AGENTS NOTE: The property has underfloor heating to the ground and first floor with radiators to the top floor. The property is also fitted with a mains sprinkler system.

Important Information

  • This is a Freehold property.

Property Ref: 11602778_FAW004149

Share:

Similar Properties

Finistere Avenue, Dawlish, EX7

4 Bedroom Detached House | £460,000

A delightful detached four bedroom home, built by award-winning Cavanna Homes. The house is part of a select development...

Little Week Lane, Dawlish, EX7

4 Bedroom Detached House | £450,000

Spacious detached chalet bungalow standing on a level plot, offering well presented and versatile accommodation. Recepti...

The Strand, Starcross, EX6

5 Bedroom Detached House | Offers in excess of £450,000

NO ONWARD CHAIN. A unique opportunity to purchase this 4/5 bedroom detached house of quality with accommodation arranged...

Gilpin Close, Dawlish, EX7

3 Bedroom Detached House | £475,000

A great opportunity to purchase this extended 3/4 bedroom house situated off a private road with a good degree of privac...

Priory Road, Dawlish, EX7

4 Bedroom Detached House | £475,000

Rare Coastal Gem in Dawlish � Versatile Detached Home with Annexe & Double Garage! Discover an extraordinary...

Marine Parade, Dawlish, EX7

12 Bedroom Detached House | Guide Price £490,000

Nestled on the picturesque seafront of Dawlish, Devon, stands this charming detached former guest house offering a uniqu...

Fraser & Wheeler (Dawlish) (Dawlish)

Dawlish, Devon, EX7 9HB

01626 862379

How much is your home worth?

Use our short form to request a valuation of your property.

Request a Valuation

Mortgage Calculator

Amount Borrowed: £
Total Amount Repayable: £
Total Monthly Payment: £
©2025 The Guild of Property Professionals. All rights reserved. Terms and Conditions | Privacy Policy | Cookie Policy | Complaints Policy | Members Login
The Guild of Property Professionals Trading Address: 121 Park Lane, London W1K 7AG. GPEA Limited. Registered in England & Wales.  Company No: 02819824.  Registered Office Address: 2 St. Stephen's Court, St. Stephen's Road, Bournemouth, Dorset, England, BH2 6LA.  VAT Registration No: 576 8795 61
Book a Property Valuation Update Cookies Preferences