This property listing is now SSTC

4 Bedroom Detached House for sale in Thetford

2 4 3
  • Brand New Detached Converted Barn
  • Four Bedrooms (Master En-Suite)
  • Small High Quality Development
  • Sitting Room and Kitchen/Dining Room
  • Utility Room and Study
  • Bathroom and Shower Room
  • Double Cart Shed
  • Garaging and Parking
  • High Specification
  • Viewing Advised

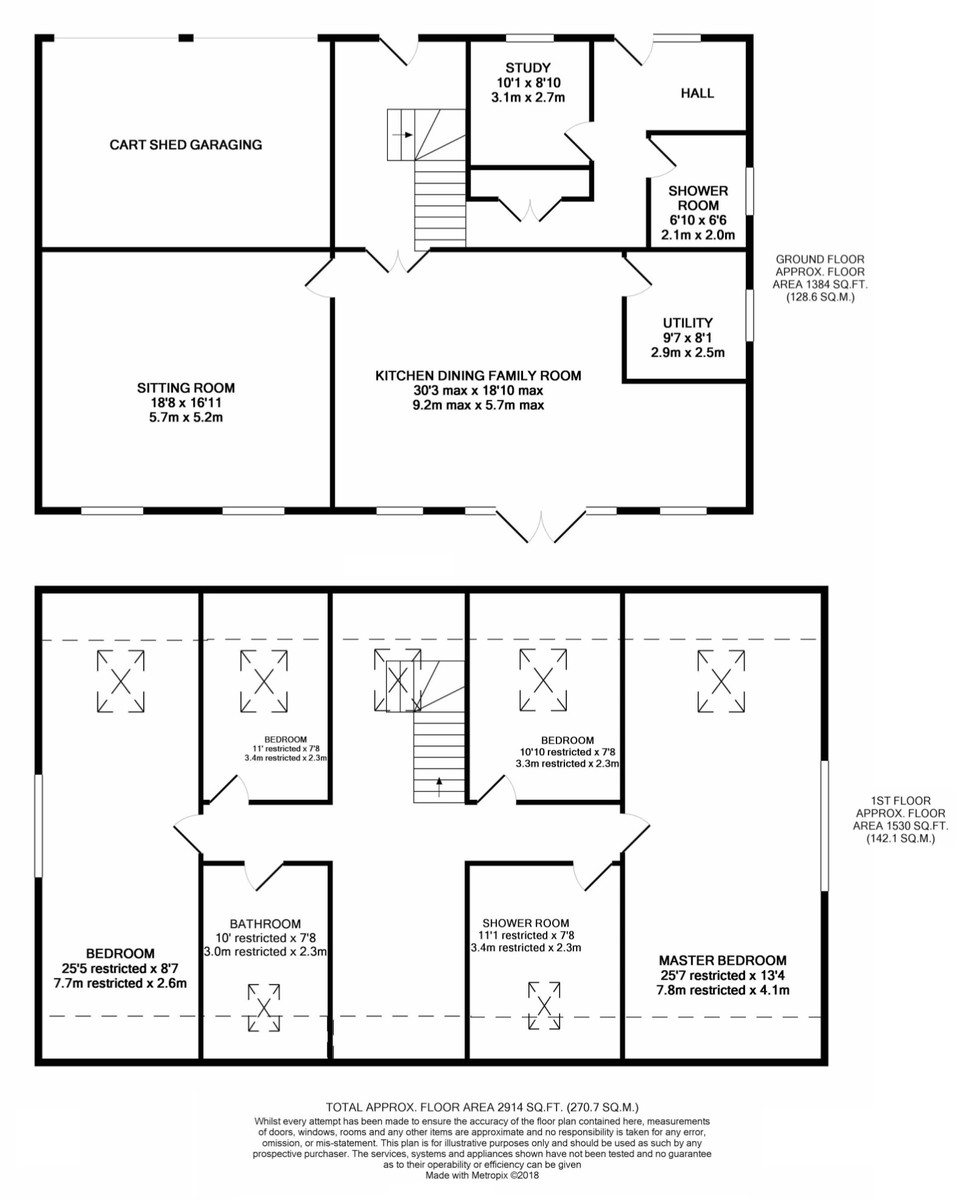
A beautiful brand new four bedroom detached converted barn in a high quality small development. The downstairs accommodation briefly comprises a spacious sitting room, large kitchen/dining room, utility room, generous study, boot room entrance and shower room. The first floor offers two double bedrooms, two single bedrooms, an en-suite to the master and a bathroom. The landing area is also spacious.

The specification is lavish and needs to be viewed to be appreciated. The specification includes underfloor heating downstairs, beautiful tiling mixed with luxurious carpets, delightful kitchen and utility rooms with lovely appliances such as the induction range, high quality oak touches such as the staircase and skirting boards, quality modern bathroom suites, nickel finish electrical sockets and stunning hardwood windows and doors.

Outside offers a double open fronted cart shed garaging, gardens, patio and ample visitor parking. Countryside views are of course in abundance. Contact Sowerbys for an accompanied tour of this very special property. 

ASHILL Ashill is a thriving village, enjoying having its own public house and primary school, located a short distance from the market towns of Dereham and Swaffham. Swaffham offers a range of shopping facilities including a Waitrose supermarket. There is easy access from Ashill to the A47, which is the Norwich Road, allowing further opportunity to enjoy the facilities that the city of Norwich offers, including a variety of shops, supermarkets and a train station allowing direct rail links to London Liverpool Street. In addition there are airport facilities at Norwich Airport. 

SERVICES CONNECTED Mains electricity and water, septic tank drainage and oil fired central heating (underfloor to ground floor and radiators to first floor). Telephone connected. 

ENERGY EFFICIENCY RATING To be confirmed. The reference number or full certificate can be obtained from Sowerbys upon request.
To retrieve the Energy Performance Certificate for this property please visit https://www.epcregister.com/ and enter in the reference number. 

COUNCIL TAX To be confirmed. 

AGENT'S NOTE The driveway up to the barn development will be shared along with shared parking areas. Barn two has an integral double open-fronted cart shed. 

WEBSITE TAGS New build, new home, new development  

Important Information

  • This is a Freehold property.

Property Ref: 59533_100439025792

Share:

Similar Properties

Ovington

6 Bedroom Detached House | Guide Price £475,000

Guide Price £475,000 - £500,000. A spacious and immaculately presented family home which has undergone compl...

Merton

4 Bedroom Barn Conversion | £465,000

A brand new and spacious barn conversion which offers open-plan accommodation with vaulted ceilings and modern living ov...

Watton

4 Bedroom Detached House | £450,000

An individual four bedroom property which sits on a plot in excess of 2 acres (stms). Requiring modernising and updating...

Merton

4 Bedroom Barn Conversion | £499,950

A brand new and spacious two storey barn conversion which offers open-plan accommodation with vaulted ceilings and moder...

Ashill

3 Bedroom Barn Conversion | £500,000

A newly completed barn conversion on a plot of approx. 1 acre (sts) in a small exclusive development with far reaching v...

East Harling

4 Bedroom Detached Bungalow | Guide Price £500,000

Guide Price £500,000 - £525,000. An immaculately presented detached bungalow in a popular village location....

Sowerbys Watton (Watton)

54 High Street, Watton, Norfolk, IP25 6AE

01953 884522

How much is your home worth?

Use our short form to request a valuation of your property.

Request a Valuation

Mortgage Calculator

Amount Borrowed: £
Total Amount Repayable: £
Total Monthly Payment: £
©2026 The Guild of Property Professionals. All rights reserved. Terms and Conditions | Privacy Policy | Cookie Policy | Complaints Policy | Members Login
The Guild of Property Professionals Trading Address: 121 Park Lane, London W1K 7AG. GPEA Limited. Registered in England & Wales.  Company No: 02819824.  Registered Office Address: 2 St. Stephen's Court, St. Stephen's Road, Bournemouth, Dorset, England, BH2 6LA.  VAT Registration No: 576 8795 61
Book a Property Valuation Update Cookies Preferences