Great Cressingham

£425,000
SSTC
This property listing is now SSTC

5 Bedroom Chalet for sale in Thetford

2 5 2
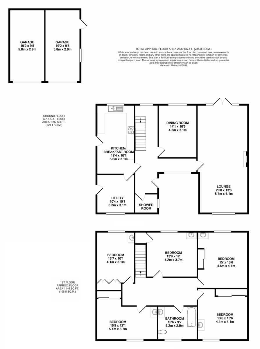
  • Substantial Detached House
  • Plot of Approximately 1 Acre (stms)
  • Five Bedrooms
  • 28ft Lounge and Spacious Second Reception Room
  • Modern Kitchen/Breakfast Room
  • Utility Room, Shower Room and Bathroom
  • Two Adjoined Garages
  • Gardens, patio and Orchard

A most substantial five bedroom detached family home sitting in approximately an acre (stms). The property was built in 1974 by the current owner to a Canadian design and has been a much loved family home ever since. The ground floor offers a 28ft lounge, second spacious reception room which could be used as dining room, snug, study or playroom, a kitchen/breakfast room which was updated four years ago with a Wren kitchen, spacious utility room and shower room. The first floor features five double bedrooms ‐ all of which have fitted storage and wash basins (the existing plumbing giving scope for the addition of en-suites). There is also a spacious landing and bathroom.

The exterior offers driveway to front which continues along the side of the house up to the garaging (two adjoined garages). There is a garden to the front and rear complete with two sheds, greenhouse and patio area. At the very rear is the orchard with a variety of fruit trees. The current owners have not investigated whether planning might be available on the orchard, but we would encourage potential buyers to consider this a future option.

If space is your priority both inside and out, then this is absolutely a property to consider. There is double glazing throughout as well as the updated kitchen, and whilst the décor is neutral through most of the property, this is also an opportunity to refurbish and update a family home to your own specification. 

GREAT MASSINGHAM The village of Great Cressingham is approximately 5 miles from Watton and has a village church and public house. The fantastic village green provides wonderful amenity space along with seating areas and the children's play area. Rural sports, country walks, two excellent golf courses (within 5 miles), stately homes and formalised bird watching centres are all available locally.

The market town of Watton has a range of amenities including a post office, supermarket, chemist, infant, junior and secondary schools. There is a weekly market with lots to offer. There is a sports centre which offers a fitness suite, all weather courts, badminton, squash and snooker facilities. Watton is surrounded by beautiful Norfolk countryside and woodlands including Thetford Forest and Wayland Wood.  

COUNCIL TAX Band F. 

SERVICES CONNECTED Mains electricity, water and drainage and oil fired central heating (new tank fitted 2017). Telephone connected. 

ENERGY EFFICIENCY RATING F. The reference number or full certificate can be obtained from Sowerbys upon request.
To retrieve the Energy Performance Certificate for this property please visit https://www.epcregister.com/ and enter in the reference number. 

Important Information

  • This is a Freehold property.

Property Ref: 59533_100439026712

Share:

Similar Properties

Ashill

3 Bedroom Barn Conversion | £425,000

SOLD OFF PLAN PRIOR TO RELEASE. A newly converted three bedroom barn with garage in a high quality small development of...

Ickburgh

4 Bedroom Detached House | Offers in excess of £400,000

*NO CHAIN* A spacious detached family home offering ample living space and field views to rear. Four bedrooms, master en...

Ickburgh

4 Bedroom Chalet | Offers in excess of £400,000

*Eco-friendly- Solar panels & air source heat pump generating £1800 per year rebate payment. *Under floor insu...

Watton

4 Bedroom Detached House | £450,000

An individual four bedroom property which sits on a plot in excess of 2 acres (stms). Requiring modernising and updating...

Merton

4 Bedroom Barn Conversion | £465,000

A brand new and spacious barn conversion which offers open-plan accommodation with vaulted ceilings and modern living ov...

Ovington

6 Bedroom Detached House | Guide Price £475,000

Guide Price £475,000 - £500,000. A spacious and immaculately presented family home which has undergone compl...

Sowerbys Watton (Watton)

54 High Street, Watton, Norfolk, IP25 6AE

01953 884522

How much is your home worth?

Use our short form to request a valuation of your property.

Request a Valuation

Mortgage Calculator

Amount Borrowed: £
Total Amount Repayable: £
Total Monthly Payment: £
©2026 The Guild of Property Professionals. All rights reserved. Terms and Conditions | Privacy Policy | Cookie Policy | Complaints Policy | Members Login
The Guild of Property Professionals Trading Address: 121 Park Lane, London W1K 7AG. GPEA Limited. Registered in England & Wales.  Company No: 02819824.  Registered Office Address: 2 St. Stephen's Court, St. Stephen's Road, Bournemouth, Dorset, England, BH2 6LA.  VAT Registration No: 576 8795 61
Book a Property Valuation Update Cookies Preferences